Das großzügig geschnittene Reihenmittelhaus liegt verkehrsgünstig, in zentraler Lage der großen Kreisstadt Erding. Fußläufig finden sich neben Einkaufsmöglichkeiten und dem Kinocenter auch ein sehr gutes gastronomisches Angebot.
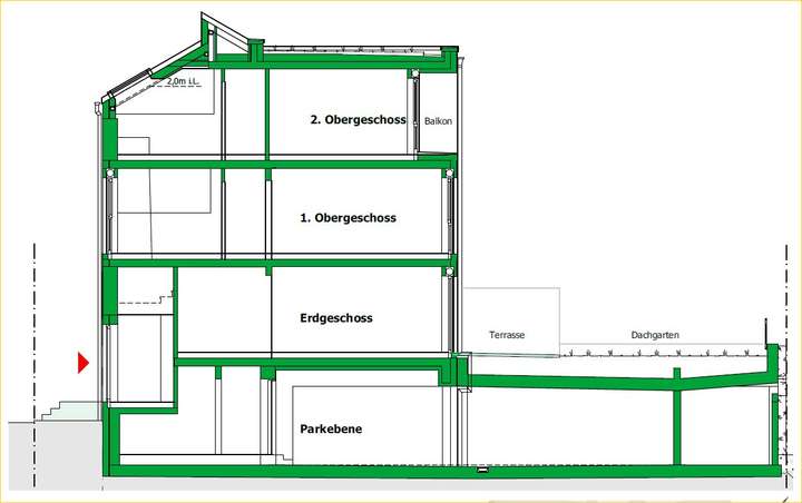
Durch die Haustüre betritt man die Diele des Hauses und erreicht über wenige Stufen das Erdgeschoss (Hochparterre) mit der offenen, modernen Küche und dem großzügigen Wohn-Esszimmer mit Zugang zur großen Terrasse.
Das Treppenhaus verbindet die Ebenen und führt von der Tiefgarage bis in die oberen Stockwerke.
Im ersten Obergeschoss befinden sich die beiden lichtdurchfluteten Kinderzimmer und ein großes Familienbadezimmer, welches keine Wünsche offen lässt. Der separate Abstellraum mit Waschmaschinenanschluss ist am Ende des Flurs.
Im Dachgeschoss liegt ein großes, helles Schlafzimmer mit bodentiefen Fenstern und Zugang zu einer Loggia. Das Schlafzimmer hat ein angrenzendes Duschbadezimmer. Ein Schmankerl ist die gemütliche, nicht einsehbare Dachterrasse in Ost-Ausrichtung.
Im Keller ist der Hauswirtschaftsraum und die Türe zur Tiefgarage.
Erding - modernes RMH mit super Grundriss
85435 Erding
Die vollständige Adresse der Immobilie erhalten Sie vom Anbieter.
Auf Karte anzeigen
Die vollständige Adresse der Immobilie erhalten Sie vom Anbieter.
Infos
| Haustyp | Reihenmittelhaus |
|---|---|
| Wohnfläche ca. | 146 m2 |
| Grundstücksfläche | 121,05 m2 |
| Bezugsfrei ab | 01.01.2026 |
| Zimmer | 4 |
| Schlafzimmer | 3 |
| Badezimmer | 2 |
| Haustiere | Nach Vereinbarung |
| Garage/Stellplatz | Tiefgarage |
| Anzahl Garage/Stellplatz | 2 |
Kosten
| Kaltmiete |
2.150 € |
|---|---|
| Nebenkosten | + 360 € |
| Heizkosten | in Nebenkosten enthalten |
| Gesamtmiete | 2.630 € |
| Miete für Garage/Stellplatz | 120 € |
| Kaution o. Genossenschaftsanteile | 2 Gesamtkaltmieten = 4.660,00 € |
Weiter mieten oder doch kaufen?
Wer in Miete wohnt, überweist dem Vermieter im Laufe der Jahre hohe Summen, die sich
auch in die eigenen vier Wände investieren lassen könnten.
Bausubstanz & Energieausweis
| Baujahr | 2023 |
|---|---|
| Objektzustand | Neuwertig |
| Qualität der Austattung | Gehoben |
| Heizungsart | Fußbodenheizung |
| Wesentliche Energieträger | Fernwärme |
| Energieausweis | liegt vor |
| Energieausweistyp | Bedarfsausweis |
| Energieverbrauchskennwert | 41,0 kWh/(m²*a) |
| Energieeffizienzklasse | A |
41,0
kWh/(m²*a)
Energieeffizienzklasse A
- A+
- A
- B
- C
- D
- E
- F
- G
- H
- 0
- 25
- 50
- 75
- 100
- 125
- 150
- 175
- 200
- 225
- >250
Beschreibung des Objekts
Ausstattung
- moderne Einbauküche
- Gäste-WC im Erdgeschoss
- Badezimmer mit Dusche und Wanne im 1. OG
- Handtuchheizkörper in den Bädern
- Bodentiefe Badezimmerfenster im 1. OG und DG
- Waschmaschinenanschluss im 1. OG
- elektrische Rollläden an allen Fenstern
- 3-fach-verglaste Schallschutzfenster (zur Straßenseite)
- Tiefgaragenstellplatz mit Wallbox / E-Mobilität
- Lüftungsanlage mit Wärmerückgewinnung
- Terrasse, Garten und Loggia in Westausrichtung
- gemütliche Dachterrasse
- moderne Einbauküche mit Geräten im Mietpreis enthalten
Miete: EUR 2.150,- zzgl. NK EUR 360,- zzgl. 2x TG EUR 120,- zzgl. EBK EUR 60,- = EUR 2.690,-
Lage
In nur wenigen Gehminuten ist die S-Bahn-Station Erding sowie der Busbahnhof und die Erdinger Altstadt erreichbar. Die Herzogstadt Erding mit über 38.000 Einwohnern ist große Kreisstadt des Landkreises Erding und wurde als „Stadt der Vielfalt“ ausgezeichnet.
Erding ist durch das Landratsamt, das Amtsgericht, das Kreiskrankenhaus und das Finanzamt sowohl das behördliche Zentrum des Landkreises als auch Mittelpunkt der wirtschaftlichen Interessen der Region. Weltbekannt ist Erding durch das „Erdinger Weißbier“ und wird seit Eröffnung des Flughafens München (Franz-Josef Strauß) im Erdinger Moos im Jahre 1992 damit in Verbindung gebracht. Für die Bewohner der Stadt und des Landkreises hat Erding Einiges zu bieten. Zum einen sind sehr vielfältige Freizeitmöglichkeiten vorhanden: Frei-und Hallenbad, Kronthaler Weiher, Eisstadion, Tennisplätze und –hallen, 2 Golfplätze in der Umgebung, Fitnessstudios, Volksfestplatz und als Highlight die Therme Erding mit der mächtigen Glaskuppel. Zum anderen ist Erding sehr gut in das regionale und überregionale Verkehrsnetz eingebunden. Der Flughafen München, die A 92 (München – Deggendorf) und die A 94 (München – Passau) sind in wenigen Fahrminuten über die Flughafentagente erreichbar. Mit der S-Bahn braucht man nur ca. 30 Minuten bis zum Münchner Ostbahnhof. Von dort aus stehen sämtliche Verbindungen des MVV in und um München zur Verfügung. Auch das Thema Bildung wird in Erding großgeschrieben, von Kita bis hin zur FOS/BOS ist alles ansässig in Erding.
Sonstige Angaben
Gerne übersenden wir Ihnen ein ausführliches Exposé mit zahlreichen Fotos und Außenansichten - bitte teilen Sie uns hierzu noch Ihren Namen, Ihre Anschrift und Ihre Festnetz-/Mobilnummer mit - vielen Dank!
Sperr & Zellner Immobilien GmbH
Büro Dorfen: Büro Neufinsing:
Haager Str. 16 Münchner Str. 4
84405 Dorfen 85464 Neufinsing
Tel. 0 80 81 / 9 55 88 0 Tel. 0 81 21 / 99 555 0
Fax 0 80 81 / 9 55 88 44 Fax 0 81 21 / 99 555 25
E-Mail: info@sperr-zellner.de
www.sperr-zellner.de
Grundriss
Erdgeschoss
>
>
1. Obergeschoss
>
>
2. Obergeschoss
>
>
Kellergeschoss - Parkebene
>
>
Schnitt
>
>
Adresse
85435 Erding
Interessante Orte
Preis- und Lageinformationen
Preistrend für Bestandsimmobilien in Erding