Bei diesem dreigeschossigen Haus handelt es sich um eine hochwertige und modern ausgestattete Doppelhaushälfte, die ab dem 01.04.2026 bezugsbereit ist.
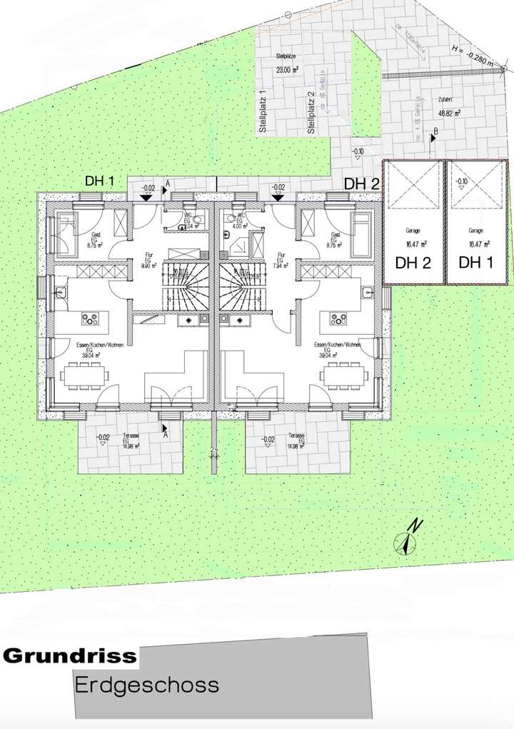
Die Immobilie verfügt über ca. 158 m² Wohnfläche, verteilt auf sechs gut geschnittene Zimmer, zwei Badezimmer sowie ein separates Gäste-WC. Der durchdachte Grundriss bietet ausreichend Platz für Familien, Homeoffice oder flexible Nutzungsmöglichkeiten.
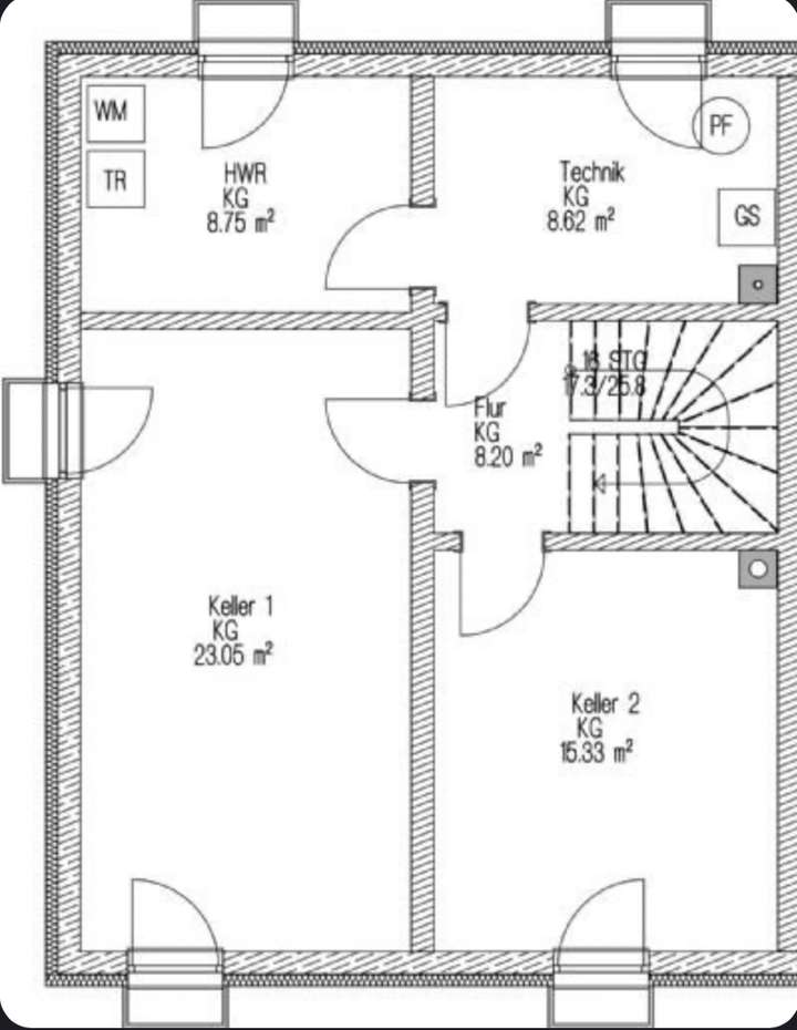
Ein besonderes Highlight ist der beheizte Keller mit zwei zusätzlichen Räumen sowie einem Hauswirtschaftsraum, der vielseitig nutzbar ist – z. B. als Arbeits-, Hobby- oder Gästebereich sowie für zusätzlichen Stauraum.
Zur Immobilie gehören außerdem:
- eine Terrasse mit Garten
- zwei Außenstellplätze
- ein ruhiges Wohnumfeld
- ein großer Spielplatz nebenan
Das Haus wurde 2024 fertiggestellt und entspricht dem KfW-55-Standard. Die Beheizung erfolgt über eine moderne Luft-Wasser-Wärmepumpe. Zusätzlich ist eine Photovoltaikanlage vorhanden, wodurch Mieterstrom möglich ist.
Dank der energieeffizienten Bauweise belaufen sich die Nebenkosten auf ca. 55 € monatlich (ohne Strom).
Die Lage in Burgkirchen an der Alz bietet eine gute Infrastruktur mit Einkaufsmöglichkeiten, Schulen, Kindergärten sowie eine gute Anbindung an die umliegenden Orte.
Moderne Doppelhaushälfte (Neubau 2024) mit Garten & beheiztem Keller – KfW 55
84508 Burgkirchen an der Alz
Die vollständige Adresse der Immobilie erhalten Sie vom Anbieter.
Auf Karte anzeigen
Die vollständige Adresse der Immobilie erhalten Sie vom Anbieter.
Infos
| Haustyp | Doppelhaushaelfte |
|---|---|
| Etagenzahl | 3 |
| Wohnfläche ca. | 155 m2 |
| Nutzfläche | 47 m2 |
| Grundstücksfläche | 345 m2 |
| Bezugsfrei ab | 1.4.2026 |
| Zimmer | 6 |
| Schlafzimmer | 5 |
| Badezimmer | 2 |
| Haustiere | Nach Vereinbarung |
| Garage/Stellplatz | Außenstellplatz |
| Anzahl Garage/Stellplatz | 2 |
Kosten
| Kaltmiete |
1.740 € |
|---|---|
| Nebenkosten | + 55 € |
| Heizkosten | keine Angabe |
| Gesamtmiete | 1.795 € (zzgl. Heizkosten) |
| Kaution o. Genossenschaftsanteile | 3500.0 |
Weiter mieten oder doch kaufen?
Wer in Miete wohnt, überweist dem Vermieter im Laufe der Jahre hohe Summen, die sich
auch in die eigenen vier Wände investieren lassen könnten.
Bausubstanz & Energieausweis
| Baujahr | 2024 |
|---|---|
| Objektzustand | Neuwertig |
| Qualität der Austattung | Gehoben |
| Heizungsart | Wärmepumpe |
| Wesentliche Energieträger | Strom |
| Energieausweis | liegt vor |
| Energieausweistyp | Bedarfsausweis |
| Energieverbrauchskennwert | 16,0 kWh/(m²*a) |
| Energieeffizienzklasse | A+ |
16,0
kWh/(m²*a)
Energieeffizienzklasse A+
- A+
- A
- B
- C
- D
- E
- F
- G
- H
- 0
- 25
- 50
- 75
- 100
- 125
- 150
- 175
- 200
- 225
- >250
Beschreibung des Objekts
Ausstattung
Fußbodenheizung in allen Wohnräumen
Wäscheschacht
Luft-Wasser-Wärmepumpe
Photovoltaikanlage (Mieterstrom möglich)
KfW-55-Standard
Elektrische Rollläden in allen Räumen
LAN-Anschluss in jedem Raum
Beheizter Keller mit zwei zusätzlichen Räumen
Hauswirtschaftsraum (HWR)
Zwei Badezimmer
eines mit Badewanne
eines mit bodengleicher, begehbarer Dusche
Separates Gäste-WC
Fliesen- und Vinylböden
Terrasse
Garten
Zwei Außenstellplätze
Neubau / Erstbezug
Ruhige Wohnlage
Lage
Die Immobilie befindet sich in Burgkirchen an der Alz. In der Umgebung liegen die Orte um die A94 in Richtung München wie Altötting, Neuötting, Burghausen & Mühldorf. Fußläufig von der Immobilie entfernt erreichen Sie die Grundschule, eine Bäckerei und ein Café . Auch einen Friseur, einen Hausarzt und eine Post können Sie bei einem Spaziergang erreichen. Verschiedene Einkaufsmöglichkeiten gibt es in Burgkirchen zur Genüge. Hier gibt es mehrere Lebensmittelgeschäfte, eine Drogerie, eine Tankstelle, Modegeschäfte oder Restaurants und Schnellimbisse. Außerdem bietet Burgkirchen diverse Sportangebote, eine gute medizinische Versorgung, Erholungsangebote und gute Ausgehmöglichkeiten erreichen Sie schließlich ebenfalls im Umkreis.
Sonstige Angaben
Die energieeffiziente Immobilie (KfW-55) entspricht dem aktuellen Baustandard und überzeugt durch eine moderne, hochwertige Ausstattung.
Das Haus bietet elektrische Rollläden, eine Terrasse mit Garten, ein Gästezimmer mit separatem Gäste-WC sowie eine Fußbodenheizung im gesamten Haus, einschließlich Keller und Dachgeschoss.
Ein Wäscheschacht vom Obergeschoss bis in den Keller sorgt für zusätzlichen Komfort im Alltag.
Dank LAN-Anschlüssen in allen Räumen ist eine optimale Internetversorgung gewährleistet.
Die Immobilie befindet sich in einer ruhigen, naturnahen Wohngegend und eignet sich ideal für Familien oder Paare mit Platzbedarf.
Grundriss
EG Grundriss
>
>
OG Grundriss
>
>
Keller Grundriss
>
>
Adresse
84508 Burgkirchen an der Alz
Interessante Orte
Preis- und Lageinformationen
Preistrend für Bestandsimmobilien in Burgkirchen an der Alz