Das Objekt, um das es sich hier handelt, besticht durch eine gehobene Innenausstattung. Es verfügt über eine Fußbodenheizung, Designbeläge aus Vynil, einer ebenerdigen Dusche sowie elektrische Rollläden. Gleichzeitig verfügt es über eine dezentrale Lüftungsanlage. Zum 01.01.2026 können Sie die freundliche, neuwertige, zweiundhalbgeschossige Doppelhaushälfte beziehen. Ein Badezimmer und ein separates Gäste-WC zählen neben fünf attraktiven Zimmern zu dem Haus. Die Immobilie ist außerdem barrierefrei zugängig. Durch die Auto-Stellplätze, die sich direkt am Objekt befinden, können Sie Ihre Wocheneinkäufe entspannt nach Hause tragen. Ein Stellplatz ist zusätzlich mit einer Wallbox ausgestattet. Das Haus verfügt über eine Terrasse und ist rundherum begrünt. Durch den KFW40 Standard sind die Nebenkosten auf ein Minimum reduziert.
Niedrigenergiehaus (KFW40) mit Photovoltaikanlage und 5 Zimmern
Zum Talblick 3a,
53797 Lohmar
Auf Karte anzeigen
Infos
| Haustyp | Doppelhaushaelfte |
|---|---|
| Etagenzahl | 3 |
| Wohnfläche ca. | 162 m2 |
| Grundstücksfläche | 269 m2 |
| Bezugsfrei ab | 1.3.2024 |
| Zimmer | 5 |
| Schlafzimmer | 3 |
| Badezimmer | 2 |
| Haustiere | Nach Vereinbarung |
| Garage/Stellplatz | Außenstellplatz |
| Anzahl Garage/Stellplatz | 2 |
Kosten
| Kaltmiete |
2.100 € |
|---|---|
| Nebenkosten | + 350 € |
| Heizkosten | in Nebenkosten enthalten |
| Gesamtmiete | 2.450 € |
| Kaution o. Genossenschaftsanteile | 6.3 |
Weiter mieten oder doch kaufen?
Wer in Miete wohnt, überweist dem Vermieter im Laufe der Jahre hohe Summen, die sich
auch in die eigenen vier Wände investieren lassen könnten.
Bausubstanz & Energieausweis
| Baujahr | 2023 |
|---|---|
| Objektzustand | Erstbezug |
| Qualität der Austattung | Gehoben |
| Heizungsart | Wärmepumpe |
| Wesentliche Energieträger | Strom |
| Energieausweis | liegt vor |
| Energieausweistyp | Bedarfsausweis |
| Energieverbrauchskennwert | 19,3 kWh/(m²*a) |
| Energieeffizienzklasse | A+ |
19,3
kWh/(m²*a)
Energieeffizienzklasse A+
- A+
- A
- B
- C
- D
- E
- F
- G
- H
- 0
- 25
- 50
- 75
- 100
- 125
- 150
- 175
- 200
- 225
- >250
Beschreibung des Objekts
Lage
Die Immobilie befindet sich in Lohmar. Die Buslinien 555 und 590 verkehren in der Nähe. Weiter entfernt gibt es verschiedene Einkaufsmöglichkeiten und einen Kindergarten. Einige Museen, eine gute medizinische Versorgung, verschiedene Erholungs- und Sportangebote und gute Ausgehmöglichkeiten erreichen Sie schließlich ebenfalls im Umkreis. Lohmar - Halberg besticht durch seine ländliche Lage mit direkter Waldanbindung. Gleichzeitig ist man mit dem Auto oder Bus in kürzester Zeit im Ortskern, welcher sich durch alle möglichen Geschäfte auszeichnet.
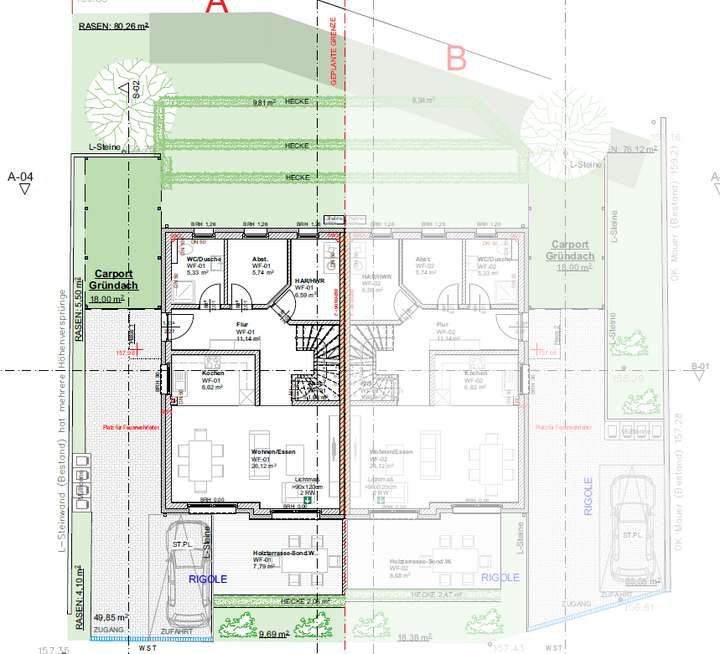
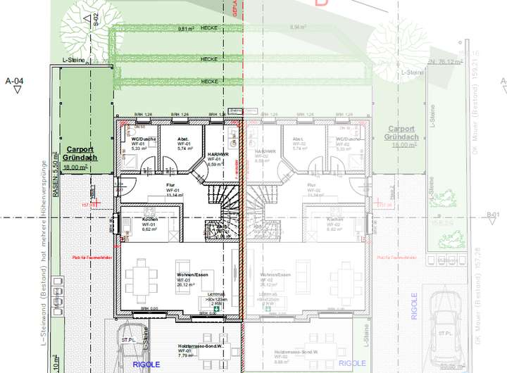
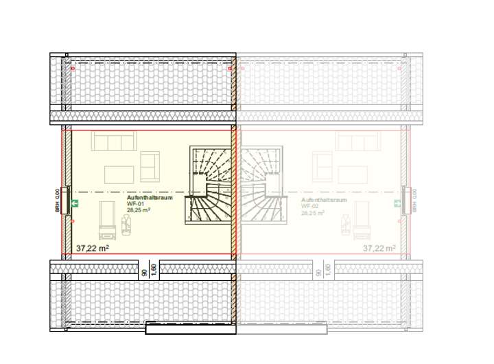
Grundriss
EG
>
>
1 OG
>
>
DG
>
>
Adresse
Zum Talblick 3a, 53797 Lohmar
Interessante Orte
Preis- und Lageinformationen
Preistrend für Bestandsimmobilien in Lohmar