Bei dieser Immobilie handelt es sich um eine zweistöckige, modernisierte Doppelhaushälfte. Das Objekt verfügt über eine gute Innenausstattung, einen Südbalkon, große Südterasse, sowie einen gemütlichen Kachelofen und eine Mini PV-Anlage. Die Immobilie ist vollständig gedämmt und hat 3-fach verglaste Fenster. Dadurch sind die Heiz- und Warmwasseraufbereitungskosten niedrig. Die Immobilie kann zum 01.04.2026 bezogen werden. Ein aktueller Energieausweis liegt vor. Das Haus verfügt über ein großzügig ausgebautes Dachgeschoß, eine gemütliche Wohnküche mit viel Licht und schönem Blick auf das freie Feld. Die vorhandene Einbauküche ist mit Miele Geräten (Geschirrspüler, Induktionsherd, Backrohr, Kühlschrank und Dunstabzugshaube) ausgestattet und bietet viel Platz. Neben den fünf Zimmern befinden sich ein Vorratsraum, zwei Badezimmer und ein Gäste WC im Haus. Eine Garage für Ihr Auto, zwei geräumige Gartenhäuser und ein schöner Garten mit Spielfläche und Obstbäumen stehen Ihnen zur Verfügung. Im Keller befindet sich ein Waschraum mit Dusche, ein Vorratsraum und ein großzügiger Hobbyraum. Geheizt wird das im Jahr 1969 gebaute und in 2011, 2014 und 2018 modernisierte und erweiterte Objekt mit einer Öl-Heizung. Die monatliche Warmmiete für die Immobilie mit Grundstück beträgt 2.340 Euro.
Modernisierte Doppelhaushälfte
85653 Aying
Die vollständige Adresse der Immobilie erhalten Sie vom Anbieter.
Auf Karte anzeigen
Die vollständige Adresse der Immobilie erhalten Sie vom Anbieter.
Infos
| Haustyp | Doppelhaushaelfte |
|---|---|
| Etagenzahl | 2 |
| Wohnfläche ca. | 149 m2 |
| Nutzfläche | 35 m2 |
| Grundstücksfläche | 388 m2 |
| Bezugsfrei ab | 1.4.2026 |
| Zimmer | 5 |
| Schlafzimmer | 4 |
| Badezimmer | 2 |
| Haustiere | Nach Vereinbarung |
| Garage/Stellplatz | Garage |
| Anzahl Garage/Stellplatz | 1 |
Kosten
| Kaltmiete |
2.220 € |
|---|---|
| Nebenkosten | + 120 € |
| Heizkosten | keine Angabe |
| Gesamtmiete | 2.340 € (zzgl. Heizkosten) |
| Kaution o. Genossenschaftsanteile | 6660 |
Weiter mieten oder doch kaufen?
Wer in Miete wohnt, überweist dem Vermieter im Laufe der Jahre hohe Summen, die sich
auch in die eigenen vier Wände investieren lassen könnten.
Bausubstanz & Energieausweis
| Baujahr | 1969 |
|---|---|
| Letzte Sanierung | 2018 |
| Objektzustand | Modernisiert |
| Qualität der Austattung | Gehoben |
| Heizungsart | Öl-Heizung |
| Wesentliche Energieträger | Öl |
| Energieausweis | liegt vor |
| Energieausweistyp | Verbrauchsausweis |
| Energieverbrauchskennwert | 80,0 kWh/(m²*a) |
| Energieeffizienzklasse | C |
80,0
kWh/(m²*a)
Energieeffizienzklasse C
- A+
- A
- B
- C
- D
- E
- F
- G
- H
- 0
- 25
- 50
- 75
- 100
- 125
- 150
- 175
- 200
- 225
- >250
Beschreibung des Objekts
Lage
Das Objekt liegt in Dürrnhaar. Die Bahnlinie S5 verkehrt in Reichweite und schließt Sie an den öffentlichen Nah- und Fernverkehr an. In Laufnähe gibt es einen Kindergarten und ein Restaurant. Weiter entfernt finden Sie außerdem mehrere Einkaufsmöglichkeiten und Schulen.
Weitere Dokumente
_Energieausweis DHGrundriss
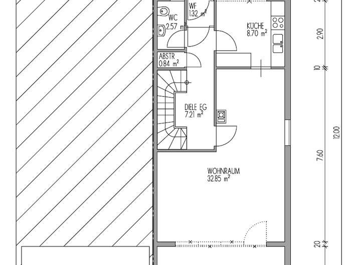
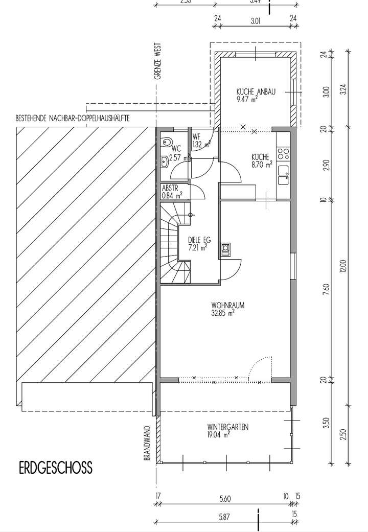
EG Dürrnhaar
>
>
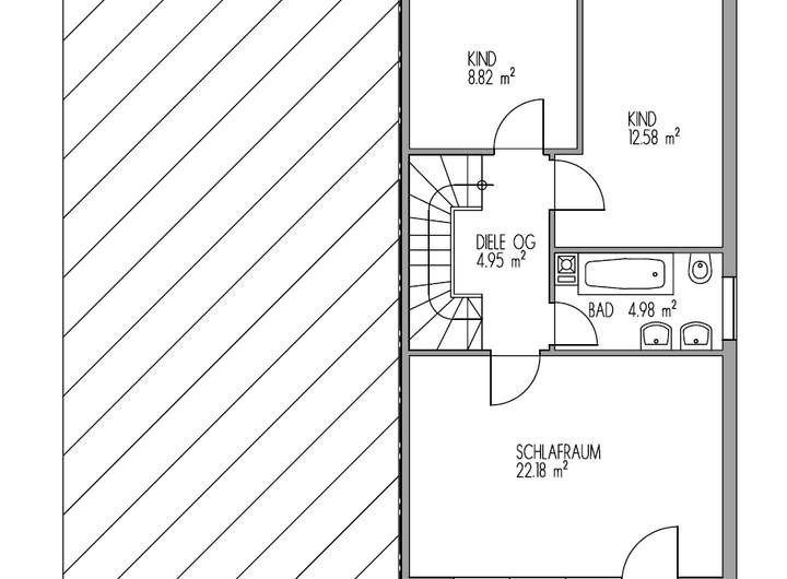
OG Dürrnhaar
>
>
DG Dürrnhaar
>
>
Keller Dürrnhaar
>
>
Adresse
85653 Aying
Interessante Orte
Preis- und Lageinformationen
Preistrend für Bestandsimmobilien in Aying