Die Ende 2024 errichteten Doppelhaushälften mit Garten in Wambach liegen im schönen Taunus, vor den Toren Wiesbadens.
Jedes der DHH verfügt über 3 Etagen mit einem großzügigen Wohnzimmer, Wohnküche und eigener Terrasse und Balkon.
Im Erdgeschoss und Dachgeschoss befinden sich insgesamt 3 Schlafzimmer. So finden sie mit zwei Kindern genügend Platz. Auch ein Homeoffice mit Ausblick ins Grüne ist denkbar.
Zur Verfügung steht Ihnen außerdem ein Keller.
Auf den modern gestalteten 135 Quadratmetern ist alles möglich.
Modernes Wohnen mitten im Grünen vom Taunus
Über den Wiesen 37,
65388 Schlangenbad
Auf Karte anzeigen
Infos
| Haustyp | Doppelhaushaelfte |
|---|---|
| Etagenzahl | 3 |
| Wohnfläche ca. | 135 m2 |
| Grundstücksfläche | 800 m2 |
| Bezugsfrei ab | 1.4.2026 |
| Zimmer | 4 |
| Schlafzimmer | 3 |
| Badezimmer | 2 |
| Haustiere | Nach Vereinbarung |
| Garage/Stellplatz | Garage |
| Anzahl Garage/Stellplatz | 1 |
Kosten
| Kaltmiete |
1.550 € |
|---|---|
| Nebenkosten | + 150 € |
| Heizkosten | keine Angabe |
| Gesamtmiete | 1.700 € (zzgl. Heizkosten) |
| Kaution o. Genossenschaftsanteile | 4650 |
Weiter mieten oder doch kaufen?
Wer in Miete wohnt, überweist dem Vermieter im Laufe der Jahre hohe Summen, die sich
auch in die eigenen vier Wände investieren lassen könnten.
Bausubstanz & Energieausweis
| Baujahr | 2024 |
|---|---|
| Objektzustand | Neuwertig |
| Qualität der Austattung | Gehoben |
| Heizungsart | Wärmepumpe |
Beschreibung des Objekts
Ausstattung
Die neu errichteten Häuser sind mit Fußbodenheizung und einem schönen Paketboden ausgestattet.
Die Terrasse, der Garten und der großzügige Balkon laden zum verweilen, Sonne tanken und entspannen ein.
In der vollständig ausgestatteten Einbauküche mit allen Elektrogeräten (Herd, Backofen, Spülmaschine, Kühl-Gefrierkombination, Dunstabzugshaube) bleiben keine Wüsche offen. Sie wird dem Mieter kostenfrei zur Verfügung gestellt.
Das große Badezimmer ist mit Waschbecken, WC, Dusche und Badewanne ausgestattet. Außerdem gibt es noch ein zweites Badezimmer mit Dusche in Erdgeschoss.
Durch den Garagen und Außenstellplatz auf dem Grundstück, können Sie Ihre Wocheneinkäufe entspannt nach Hause tragen.
Auf 3 Etagen findet so jeder seinen Rückzugsort.
Lage
Das Objekt liegt in Wambach Schlangenbad. Mehrere Buslinien verkehren in der Nähe. Fußläufig erreichbar gibt es einen Dorfladen, eine Tierhandlung, eine Postannahmestelle und einen Friseur. Mit dem Auto erreicht man mehrere Einkaufsmöglichkeiten, Schulen und Kindergärten. In Wiesbaden ist man in ca. 20min.
Ganz in der Nähe befindet sich außerdem das Taunus Wunderland.
Sonstige Angaben
Während des Bauablaufs gab es kleinere Änderungen im Grundriss. Überzeugen Sie sich gerne vor Ort von den Häusern.
Die DHH wird direkt vom Eigentümer vermietet. Ohne Makler und daher auch ohne Provision!
Haustiere sind - je nach Größe - nur nach Rücksprache möglich.
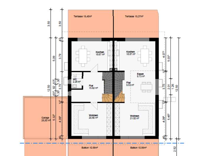
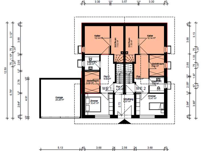
Grundriss
Grundriss EG
>
>
Grundriss 1OG
>
>
Grundriss DG
>
>
Adresse
Über den Wiesen 37, 65388 Schlangenbad
Interessante Orte
Preis- und Lageinformationen
Preistrend für Bestandsimmobilien in Schlangenbad