Diese imposante und luxuriöse Penthouse-Wohnung befindet sich im letzten Häuserblock des Wohnprojektes „Trio Grande“. Die drei baugleichen Niedrigenergie-Mehrfamilienhäuser wurden im Zeitraum 2020/2021 bezugsfertig errichtet. In jedem einzelnen Wohnkomplex finden sich insg. 8 Wohneinheiten. Die Mieterstruktur in diesem Hauseingang ist familiär geprägt und überwiegt der Eigennutzung.
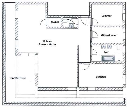
Die Wohnfläche der 4-Raum-Penthouse-Wohnung umfasst ca. 120,5 m². Die Raum-Aufteilung dieser stylischen Immobilie basiert auf dem Loft-Charakter und ist prädestiniert für die Nutzung als Zweipersonenhaushalt. Die perfekte Verarbeitung hochwertiger Materialien sowie modernen Akzenten spiegeln sich in der gesamten Wohneinheit als auch im Badezimmer und Gäste-WC wider. Der einheitliche Parkettboden und die dezente Farbwahl der Wände verleiht dem Objekt ein behagliches und hochwertiges Wohnambiente. Zentraler Mittelpunkt ist der offen gehaltene Wohnbereich mit Essecke und dem freien Blick auf die elegante Küche. Die neuwertige Schreinerküche mitsamt den Einbaugeräten steht den Mietern zur Verfügung. Die imposante Dachterrasse in süd/südwestlicher Ausrichtung bietet ausreichend Raum für individuelle Gestaltungsmöglichkeiten und einen traumhaften Ausblick an. Die Dachterrasse ist vom Wohnraum als auch vom Schlafzimmer aus begehbar.
Im Abstellraum befinden sich eingebaute Regalsysteme sowie der Waschmaschinenanschluss. Weiteren Stauraum bietet das eigene Kellerabteil. Per Personenaufzug sind alle Etagen inkl. Keller und Tiefgarage zu erreichen. Zwei TG-PKW-Stellplätze mit integrierter Wallbox runden dieses Mietangebot ab.
Aufgrund des bevorstehenden Umzuges wird auf die Veröffentlichung der derzeitigen Wohnungs-Innenaufnahmen verzichtet. Alle im Exposé aufgeführten Fotografien, stammen aus der damaligen Wohnungsübergabe. Aktuell weisen sämtliche Innenwände eine neutrale weiße Farbgebung auf.
Die Penthouse-Wohnung ist ab dem 01.03.2026 bezugsfrei.
Lifestyle auf höchstem Komfort – Exklusive Penthouse-Wohnung mit EBK, Dachterrasse und 2 TG-SP
69514 Laudenbach
Die vollständige Adresse der Immobilie erhalten Sie vom Anbieter.
Auf Karte anzeigen
Die vollständige Adresse der Immobilie erhalten Sie vom Anbieter.
Infos
| Wohnungskategorie | Penthouse |
|---|---|
| Etage | 3 von 3 |
| Wohnfläche ca. | 120 m2 |
| Nutzfläche | 10 m2 |
| Bezugsfrei ab | 01.03.2026 |
| Zimmer | 4 |
| Schlafzimmer | 2 |
| Badezimmer | 1 |
| Haustiere | Nein |
| Garage/Stellplatz | Tiefgarage |
| Anzahl Garage/Stellplatz | 2 |
Kosten
| Kaltmiete |
1.800 € |
|---|---|
| Nebenkosten | + 240 € |
| Heizkosten | in Nebenkosten enthalten |
| Gesamtmiete | 2.040 € |
| Miete für Garage/Stellplatz | 100 € |
| Kaution o. Genossenschaftsanteile | 5.400 Euro |
Weiter mieten oder doch kaufen?
Wer in Miete wohnt, überweist dem Vermieter im Laufe der Jahre hohe Summen, die sich
auch in die eigenen vier Wände investieren lassen könnten.
Bausubstanz & Energieausweis
| Baujahr | 2020 |
|---|---|
| Letzte Sanierung | 2024 |
| Objektzustand | Neuwertig |
| Qualität der Austattung | Luxus |
| Heizungsart | Fußbodenheizung |
| Wesentliche Energieträger | Gas |
| Energieausweis | liegt vor |
| Energieausweistyp | Bedarfsausweis |
| Energieverbrauchskennwert | 42,7 kWh/(m²*a) |
| Energieeffizienzklasse | A |
42,7
kWh/(m²*a)
Energieeffizienzklasse A
- A+
- A
- B
- C
- D
- E
- F
- G
- H
- 0
- 25
- 50
- 75
- 100
- 125
- 150
- 175
- 200
- 225
- >250
Beschreibung des Objekts
Ausstattung
• Dachterrasse mit Stromanschluss & Beleuchtung in Ausrichtung Süd/Süd-West
• Personenaufzug von TG bis zur Penthouse
• Fußbodenheizung
• Echtholzparkett
• Überwiegend bodentiefe Kunststoff-Fenster 3-fach verglast
• Elektrische Rollläden
• Maßangefertigte Schreinerküche mit hochwertigen Einbaugeräten & Weinkühlschrank
• Barhocker & Pendelleuchte an der Küchenhalbinsel
• Maßangefertigte Ankleideschränke in Schlafen, Gäste-Zimmer & Flurbereich
• Waschmaschinenanschluss im Abstellraum
• Deckenleuchten Lichtsystem Philips Hue
• TGL-Bad mit Großraum-Dusche, Marmorwand im Duschbereich, Glas-Duschwand, Wand-WC
• Fliesen halbhoch im Nassbereich, Doppel-Waschtisch, LED-Badspiegel, Design-Armaturen goldfarben
• Gäste-WC innenliegend, Wand-WC, Waschtisch, Design-Armaturen und Keramik in schwarz, Spiegel
• Fußbodenbeläge: Echtholzparkett, Großformat-Fliesen
• Innentüren: Holztüren weiß
• Innenwandbeläge: Feinputz gestrichen
• Decken: Feinputz, gestrichen
• Kellerabteil mit Leuchte & Steckdose
• Zwei TG-Stellplätze mit Wallbox
• Fahrradraum
• Sicherheitstechnik: Video-Gegensprechanlage & Türspion, diverse Leuchten mit Bewegungsmelder
Ca. Maße der einzelnen Räume:
Wohnen/Essen/Küche: 63,28 m²
Schlafen: 16,57 m²
Gästezimmer/Büro: 7,80 m²
Zimmer: 10,35 m²
Bad: 7,99 m²
Gäste-WC: 1,98 m²
Abstellraum: 2,03 m²
Dachterrasse: 41,92 m² = 25% WFL. = 10,48 m²
Lage
Laudenbach liegt am gleichnamigen Bach an der nördlichen badischen Bergstraße, direkt an der hessischen Landesgrenze. Angrenzende Städte sind Hemsbach, Lorsch & Heppenheim. Naheliegende Großstädte sind Mannheim und Heidelberg, welche sich durch die verkehrsgünstige Lage sehr gut per PKW (A5 & B3) oder Regionalbahnen erreichen lassen. Moderne und Tradition vereinen sich hier wunderbar. Laudenbach hat sich im Laufe der Zeit zu einem überaus attraktiven Wohngebiet entwickelt. Sie finden hier eine Grundschule, drei moderne Kindergärten sowie eine Sport- und Mehrzweckhalle. Die nähere Umgebung ist ausschließlich von Ein- und Mehrfamilienhäusern geprägt. In wenigen Gehminuten erreichen Sie Geschäfte des alltäglichen Bedarfs, Ärzte, Apotheken und kulinarische Adressen.
Sonstige Angaben
Als präferierte Mieterstruktur ist ein Zwei-Personen-Haushalt gewünscht. Ein festes Arbeitsverhältnis und der Nachweis einer Haftpflichtversicherung sowie ausreichend Bonität sind Voraussetzungen für eine Anmietung. Folgende Unterlagen werden bei einem Miet-Interesse benötigt:
Letzte 3 Gehaltsabrechnungen und/oder
Letzte Bilanz bei Selbstständigen
SCHUFA
Mieter-Selbstauskunft
Versicherungspolice der Haftpflichtversicherung
Gerne stehen wir Ihnen für weitere Informationen sowie der Vereinbarung zu einem individuellen Besichtigungstermin zur Verfügung. Sie erreichen uns Montag bis Freitag von 09:00 Uhr bis 18:00 Uhr, Samstag und Sonntag nach Vereinbarung.
Grundriss
Grundriss_Neu_PH_4ZKB_LDB_KCP
>
>
Adresse
69514 Laudenbach
Interessante Orte
Preis- und Lageinformationen
Preistrend für Bestandsimmobilien in Laudenbach