Diese hochwertige und liebevoll vollständig renovierte Wohnung in der 1. Etage überzeugt durch ihre moderne und gehobene Ausstattung. Der Einzug ist ab dem 01.04.2026 möglich.
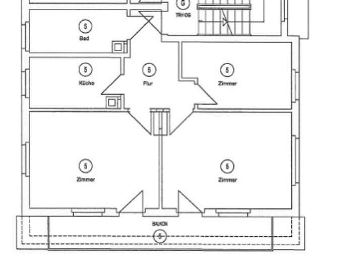
Die Wohnung verfügt über drei helle und großzügig geschnittene Zimmer, die vielfältige Nutzungsmöglichkeiten bieten. Ein besonderes Highlight ist der Balkon, der zum Entspannen und Abschalten vom Alltag einlädt.
Zur Immobilie gehören außerdem ein Außenstellplatz (monatlich 80€) sowie ein Kellerraum, der zusätzlichen Stauraum bietet. Eine moderne Einbauküche ist bereits vorhanden und rundet das attraktive Gesamtangebot ab.
Die Einbauküche kann auf Wunsch vom Vormieter übernommen oder für 120 € monatlich gemietet werden.
Bei Interesse freuen wir uns über Ihre Kontaktaufnahme für weitere Informationen oder zur Vereinbarung eines Besichtigungstermins.
English speakers are welcome.
Helle 3- Zimmer Wohnung in Gerlingen mit EBK und Stellplatz
70839 Gerlingen
Die vollständige Adresse der Immobilie erhalten Sie vom Anbieter.
Auf Karte anzeigen
Die vollständige Adresse der Immobilie erhalten Sie vom Anbieter.
Infos
| Wohnungskategorie | Etagenwohnung |
|---|---|
| Etage | 1 von 3 |
| Wohnfläche ca. | 72 m2 |
| Bezugsfrei ab | 01.04.2026 |
| Zimmer | 3 |
| Schlafzimmer | 2 |
| Badezimmer | 1 |
| Haustiere | Ja |
| Garage/Stellplatz | Außenstellplatz |
| Anzahl Garage/Stellplatz | 1 |
Kosten
| Kaltmiete |
1.220 € |
|---|---|
| Nebenkosten | + 320 € |
| Heizkosten | in Nebenkosten enthalten |
| Gesamtmiete | 1.540 € |
| Miete für Garage/Stellplatz | 80 € |
| Kaution o. Genossenschaftsanteile | 3900.0 |
Weiter mieten oder doch kaufen?
Wer in Miete wohnt, überweist dem Vermieter im Laufe der Jahre hohe Summen, die sich
auch in die eigenen vier Wände investieren lassen könnten.
Bausubstanz & Energieausweis
| Baujahr | 1957 |
|---|---|
| Letzte Sanierung | 2021 |
| Objektzustand | Vollständig Renoviert |
| Qualität der Austattung | Gehoben |
Beschreibung des Objekts
Lage
Die Wohnung befindet sich nur 250 Meter von der U-Bahn-Station Gerlingen entfernt und bietet eine ausgezeichnete Anbindung an den öffentlichen Nahverkehr.
In der Umgebung finden Sie viele Annehmlichkeiten, darunter DHL, Edeka, Lidl und zahlreiche Geschäfte und Cafés, die bequem zu Fuß erreichbar sind.
Zusätzlich gibt es in der Nähe sehr gute Schulen und Kindertagesstätten, ideal für Familien mit Kindern. Die Nachbarschaft zeichnet sich durch viele Spielplätze und Spazierwege aus, perfekt für ein familienfreundliches Umfeld.
Adresse
70839 Gerlingen
Interessante Orte
Preis- und Lageinformationen
Preistrend für Bestandsimmobilien in Gerlingen