Die angebotene Wohnung hat nach einer Komplettsanierung Mitte 2024 eine gehobene Ausstattung: Wohnzimmerfenster, Zimmertüren, Heizkörper, Badezimmer und Böden wurden ausgetauscht, Küche, Ess- und Wohnraum wurden verbunden.
- Diele mit Einbauschrank und indirekter Deckenbeleuchtung
- offene Küche mit separater Speisekammer
- große Fenster im Wohnraum, große, tiefe Fenster in den
Schlafzimmern
- Bad mit Badewanne und Decken-Dusche, Handtuch-Heizkörper
- separater Flur verbindet die Schlafzimmer und das Badezimmer
- alle Böden durchgängig verlegt
- überdachter Balkon / Loggia
- Hobbykeller
- Nutzung eines gemeinsamen Wäschekellers
Die Einbauküche kann von den Vormietern abgelöst werden.
Die Wohnung befindet sich im 1. Stock einer kleinen, ruhigen Wohnanlage mit 6 Parteien am Rande des Johannisplatz. 2 Kindergärten und Spielplätze in der Anlage, Grundschule und Schulzentrum in Laufnähe. Isarnähe.
Die Wohnung wird zum 01.02.2026 vermietet.
3-Zimmer-Wohnung in Geretsried 2024 komplett saniert
82538 Geretsried
Die vollständige Adresse der Immobilie erhalten Sie vom Anbieter.
Auf Karte anzeigen
Die vollständige Adresse der Immobilie erhalten Sie vom Anbieter.
Infos
| Wohnungskategorie | Etagenwohnung |
|---|---|
| Etage | 1 von 2 |
| Wohnfläche ca. | 74 m2 |
| Nutzfläche | 74 m2 |
| Bezugsfrei ab | 1.2.2026 |
| Zimmer | 3 |
| Schlafzimmer | 2 |
| Badezimmer | 1 |
| Haustiere | Nach Vereinbarung |
Kosten
| Kaltmiete |
1.200 € |
|---|---|
| Nebenkosten | + 350 € |
| Heizkosten | in Nebenkosten enthalten |
| Gesamtmiete | 1.550 € |
| Kaution o. Genossenschaftsanteile | 3600 |
Weiter mieten oder doch kaufen?
Wer in Miete wohnt, überweist dem Vermieter im Laufe der Jahre hohe Summen, die sich
auch in die eigenen vier Wände investieren lassen könnten.
Bausubstanz & Energieausweis
| Baujahr | 1969 |
|---|---|
| Letzte Sanierung | 2024 |
| Objektzustand | Erstbezug nach Sanierung |
| Qualität der Austattung | Gehoben |
| Heizungsart | Gas-Heizung |
| Energieausweis | liegt zur Besichtigung vor |
Beschreibung des Objekts
Lage
Die Immobilie befindet sich in Geretsried. Mehrere Buslinien verkehren in der Nähe. In Laufnähe gibt es verschiedene Ärzte, Bäckereien, Restaurants, Supermärkte und Cafés. Auch verschiedene Modegeschäfte, zwei Postannahmestellen, eine Buchhandlung, ein Fitnessstudio und ein Museum sind fußläufig gut zu erreichen. Weiter entfernt finden Sie zudem einen Kindergarten. Verschiedene Erholungs- und Sportmöglichkeiten sowie Angebote für die Abendgestaltung (wie Kinos oder Clubs) gibt es schließlich ebenfalls im größeren Umkreis.
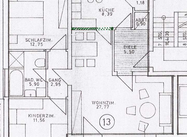
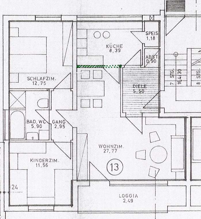
Grundriss
Grundriss
>
>
Adresse
82538 Geretsried
Interessante Orte
Preis- und Lageinformationen
Preistrend für Bestandsimmobilien in Geretsried