Neubau/ Reihenhaus
KFW 40 QNG / Niedrigenergiehaus
Miete beträgt gesamt 1620 € inkl. Photovoltaik/Wärmepumpe für Strom und Wärme, 2 Stellplätze. Nebenkosten ohne Einbauküche
!! 2 Monate mietfrei bezogen auf die Grundmiete und die Stellplätze von 1360,00€ !!
Kauf/Mietkauf:
Beispiel
1 Endreihenhaus 440.000€
Mittelreihenhaus ab 419.500€ bis 429.500€
Ca. 120 qm Grundstück, Südausrichtung
Ohne Einbauküche
Elektrische Rollläden
2 Bäder ( für Eltern und Kind/er getrennt )
2 Stellplätze
Ca. 120 qm Wohnfläche
Im Auftrag des Eigentümers bieten wir hier noch 1 End-und 5 Mittelreihenhäuser im Erstbezug an.
Die Häuser sind bezugsfertig.
Reservieren Sie sich noch heute einen Besichtigungstermin über unsere Online-Terminvergabe.
Gerne bieten wir Ihnen auch über unseren Finanzierungspartner Dr. Klein, ein individuelles Finanzierungskonzept für ihre persönliche Situation an, auch unter der Berücksichtigung von günstigen KfW-Fördermitteln (z.B. KfW 300, solange es sie noch gibt. Sprechen Sie uns einfach an und sichern Sie sich TOP-Finanzierungskonditionen.
Erstbezug Nur noch 4 Mittel-Reihenhäuser frei, Mieten oder Kauf, KFW 40 QNG 2 MM mietfrei
38448 Wolfsburg
Die vollständige Adresse der Immobilie erhalten Sie vom Anbieter.
Auf Karte anzeigen
Die vollständige Adresse der Immobilie erhalten Sie vom Anbieter.
Infos
| Haustyp | Reiheneckhaus |
|---|---|
| Wohnfläche ca. | 120 m2 |
| Grundstücksfläche | 120 m2 |
| Bezugsfrei ab | 01.12.2026 |
| Zimmer | 4 |
| Schlafzimmer | 3 |
| Badezimmer | 2 |
| Garage/Stellplatz | Außenstellplatz |
| Anzahl Garage/Stellplatz | 2 |
Kosten
| Kaltmiete |
1.360 € |
|---|---|
| Nebenkosten | + 80 € |
| Heizkosten | + 180 € |
| Gesamtmiete | 1.620 € (zzgl. Heizkosten) |
| Kaution o. Genossenschaftsanteile | 2,00 KM |
Weiter mieten oder doch kaufen?
Wer in Miete wohnt, überweist dem Vermieter im Laufe der Jahre hohe Summen, die sich
auch in die eigenen vier Wände investieren lassen könnten.
Bausubstanz & Energieausweis
| Baujahr | 2024 |
|---|---|
| Objektzustand | Erstbezug |
| Qualität der Austattung | Gehoben |
| Heizungsart | Wärmepumpe |
| Wesentliche Energieträger | Solarheizung, Strom |
| Energieausweis | liegt vor |
| Energieausweistyp | Verbrauchsausweis |
| Energieverbrauchskennwert | 26,1 kWh/(m²*a) |
| Energieeffizienzklasse | A+ |
26,1
kWh/(m²*a)
Energieeffizienzklasse A+
- A+
- A
- B
- C
- D
- E
- F
- G
- H
- 0
- 25
- 50
- 75
- 100
- 125
- 150
- 175
- 200
- 225
- >250
Beschreibung des Objekts
Ausstattung
Individuelle Ausstattungsmerkmale:
- KFW 40 QNG
Einfach einziehen mit sehr geringen Nebenkosten
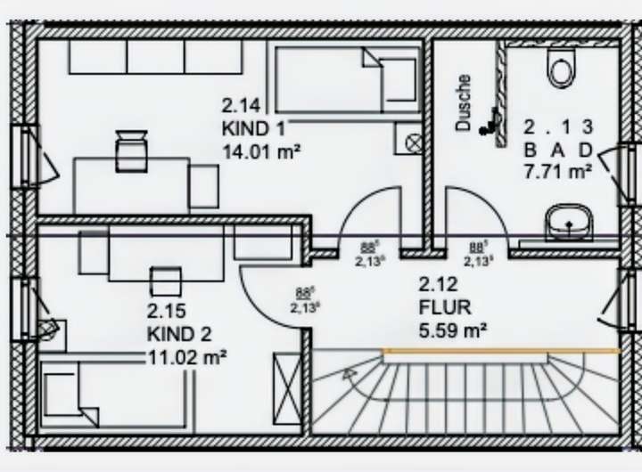
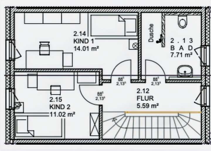
Auf zwei Ebenen haben Eltern und ggf. das/die Kind/er ihr eigenes Bad !
5 Zimmer ( 4 Zimmer plus Ankleide )
2 Bäder
1 G-WC
Elektrische Rollläden
Unterstand mit E-Anschluss vor dem Haus
Niedrigenergiehaus KFW 40 QNG
Wärmepumpe und Photovoltaik
siehe Baubeschreibung
Lassen Sie sich vor Ort überraschen :)
Lage
- Wolfsburg-Vorsfelde
- Nähe zum Naturschutzgebiet Drömling
- gute Infrastruktur in der Nähe
Sonstige Angaben
Besichtigungstermin
Über folgenden Link können Sie einen Besichtigungstermin vereinbaren:
https://besichtigung.sontona.de/selbstauskunft/da775106f0ad76ee
Hinweis: Der Link ist nicht direkt anklickbar, bitte kopieren und im Webbrowser einfügen.
Grundriss
EG
>
>
OG
>
>
DG
>
>
Adresse
38448 Wolfsburg
Interessante Orte
Preis- und Lageinformationen
Preistrend für Bestandsimmobilien in Vorsfelde