Entdecken Sie Ihr Traumhaus!
In der malerischen Stadt Hainburg an der Donau, einem Ort voller Geschichte und natürlicher Schönheit werden diese Doppelhaushälften mit Garten errichtet, die Mitte 2025 fertig gestellt werden und somit den neuesten Standards entsprechen. Das Projekt ist freifinanziert, an keine Staatsbürgerschaft und Einkommensgrenze gebunden.
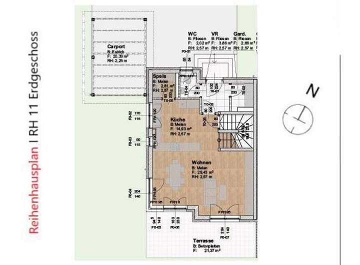
Die Doppelhaushälften mit einer Wohnflächen von ca. 111 m2, verfügen über 3 Schlafzimmer, Wohnküche, Bad mit Dusche und Wanne, 2 WC, Abstellraum, Vollkeller, Carport, Terrasse und Garten.
Die Verwertung des angebotenen Doppelhauses Nr. 11 erfolgt frei finanziert, auf Basis Miete mit Kaufoption.
Es kann zwischen zwei Finanzierungsvarianten gewählt werden:
Variante 1 (die hier angeboten):
Finanzierungsbeitrag € 99.931,62
Miete € 1.728,40
oder
Variante 2:
Finanzierungsbeitrag € 149.439,58
Miete € 1.596,44
Sie haben in beiden Fällen die Möglichkeit, Ihr Haus nach 5, 10 oder 15 Jahren zu kaufen!
Auch ein Sofortkauf ist möglich - bei näherem Interesse senden wir gerne die entsprechenden Unterlagen zu.
Als Erstbezug bieten diese Häuser sämtlichen Komfort und die Sicherheit eines Neubaus in Massivbauweise.
Die einzelnen Wohneinheiten erstrecken sich über 3 Etagen und zeichnen sich durch ihre moderne Architektur sowie durchdachte Raumgestaltung aus. Der Keller bietet einigen Stauraum und die Möglichkeit, Ihren Hobbys nachzugehen.
Innen erwarten Sie ansprechende Böden aus Laminat und Fliesen, die nicht nur für eine angenehme Atmosphäre sorgen, sondern auch pflegeleicht und langlebig sind. Die großzügige Terrasse lädt zu entspannten Stunden im Freien ein.
Sie haben jetzt Ihre WunschIMMObilie gefunden, aber noch nicht die optimale Finanzierungslösung?
Gerne vereinbart IMMOcontract für Sie ein unverbindliches Beratungsgespräch mit den Finanzierungsspezialisten bei unseren Kooperationspartnern - Volksbank Wien, Volksbank NÖ, Volksbank OÖ, Ärzte- und Apothekerbank sowie SPARDA-Bank ! Dank unserer exklusiven Kooperation erhalten Sie in deren Filialen optimale Konditionen und erstklassige Beratung rund um Ihre künftige Finanzierung.
Provisionsfrei - Doppelhaushälfte in Hainburg an der Donau zu mieten
2410 Hainburg an der Donau
Die vollständige Adresse der Immobilie erhalten Sie vom Anbieter.
Auf Karte anzeigen
Die vollständige Adresse der Immobilie erhalten Sie vom Anbieter.
Infos
| Haustyp | Doppelhaushaelfte |
|---|---|
| Etagenzahl | 3 |
| Wohnfläche ca. | 111 m2 |
| Grundstücksfläche | 461,63 m2 |
| Bezugsfrei ab | Kaufvertrag |
| Zimmer | 4 |
| Schlafzimmer | 3 |
| Badezimmer | 1 |
| Anzahl Garage/Stellplatz | 0 |
Kosten
| Kaltmiete |
1.728 € |
|---|---|
| Nebenkosten | keine Angabe |
| Heizkosten | keine Angabe |
| Gesamtmiete | 1.728 € (zzgl. Nebenkosten) |
Weiter mieten oder doch kaufen?
Wer in Miete wohnt, überweist dem Vermieter im Laufe der Jahre hohe Summen, die sich
auch in die eigenen vier Wände investieren lassen könnten.
Bausubstanz & Energieausweis
| Baujahr | 2025 |
|---|---|
| Objektzustand | Erstbezug |
| Heizungsart | Fußbodenheizung |
Beschreibung des Objekts
Ausstattung
• sparsame Fußbodenheizung mittels Luftwärmepumpe
• Badezimmer mit Dusche und Wanne
• Gäste-WC im Erdgeschoß
• Feinsteinzug in Bad und WC
• Parkettboden im Wohn- und Schlafbereich
• Außenrollläden
• Carport und zusätzliche PKW-Stellplätze
- 1 SAT-Anlage pro Haus
Lage
Die Anbindung an das öffentliche Verkehrsnetz ist mit der Nähe zu Bushaltestellen und dem Bahnhof von Hainburg ausgezeichnet, was eine schnelle und komfortable Verbindung sowohl in die nahegelegene Hauptstadt als auch nach Bratislava in der Slowakei ermöglicht. Über die Donaubrücke gelangen Sie rasch ins Marchfeld und Weinviertel.
Erleben Sie eine Symbiose aus fabelhaftem Lebensstil und ländlicher Ruhe in einem der schönsten Teile Österreichs. Hainburg an der Donau ist der ideale Ort für alle, die Wert auf Qualität, Komfort und eine exzellente Lage legen.