Bei der zweistöckigen Doppelhaushälfte handelt es sich um eine attraktive Immobilie in einem modernen Neubaugebiet, die durch eine gehobene Innenausstattung überzeugt und zum 01.12.2024 erstmals bezogen wurde. Die Immobilie bietet eine durchdachte Raumaufteilung mit hellen Wohnräumen und viel Platz für Familien.
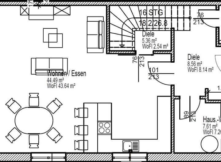
Neben vier einladenden Zimmern stehen ein Badezimmer sowie ein separates Gäste-WC zur Verfügung. Für Platz zum Gärtnern, Spielen oder zum Barbecue mit Freunden bietet der ca. 100 Quadratmeter große Garten ideale Möglichkeiten zum Entspannen.
Ein aktueller Energieausweis liegt vor. Die Immobilie ist barrierefrei zugänglich. Eine hochwertige Einbauküche ist vorhanden und im Mietumfang enthalten.
Zwei PKW-Stellplätze direkt am Haus ermöglicht ein komfortables Be- und Entladen, beispielsweise nach dem Wocheneinkauf. Das Haus wurde 2024 erbaut und wird über eine moderne Fußbodenheizung beheizt.
Zusätzlich verfügt die Immobilie über eine intelligente Photovoltaikanlage mit einem 15 kWh Speicher. Dadurch sind die Energiekosten langfristig gut kalkulierbar. Ein Teil der Energiekosten ist bereits in den Nebenkosten enthalten, ebenso die Nutzungsgebühr für die neue Einbauküche.
Bei Bedarf kann eine smarte Wallbox am Haus installiert werden.
Die Immobilie befindet sich in einem attraktiven Neubaugebiet in Ense. Kindergarten, Grundschule, Ärzte sowie Einkaufsmöglichkeiten sind fußläufig erreichbar. Sehr gute Verkehrsanbindung in Richtung Werl, Soest und Neheim.
Exklusive Neubau-Doppelhaushälfte mit Garten, PV-Anlage & Einbauküche in Toplage von Ense
Schreibers Hof 18a,
59469 Ense
Auf Karte anzeigen
Infos
| Haustyp | Doppelhaushaelfte |
|---|---|
| Etagenzahl | 1 |
| Wohnfläche ca. | 134 m2 |
| Grundstücksfläche | 100 m2 |
| Bezugsfrei ab | 1.12.2024 |
| Zimmer | 4 |
| Badezimmer | 1 |
| Haustiere | Nach Vereinbarung |
| Garage/Stellplatz | Außenstellplatz |
| Anzahl Garage/Stellplatz | 2 |
Kosten
| Kaltmiete |
1.680 € |
|---|---|
| Nebenkosten | + 400 € |
| Heizkosten | + 80 € |
| Gesamtmiete | 2.160 € (zzgl. Heizkosten) |
| Kaution o. Genossenschaftsanteile | 3200.0 |
Weiter mieten oder doch kaufen?
Wer in Miete wohnt, überweist dem Vermieter im Laufe der Jahre hohe Summen, die sich
auch in die eigenen vier Wände investieren lassen könnten.
Bausubstanz & Energieausweis
| Baujahr | 2024 |
|---|---|
| Objektzustand | Neuwertig |
| Qualität der Austattung | Gehoben |
| Heizungsart | Fußbodenheizung |
| Wesentliche Energieträger | Solarheizung, Strom |
| Energieausweis | liegt vor |
| Energieausweistyp | Bedarfsausweis |
| Energieeffizienzklasse | A+ |
Energieeffizienzklasse A+
- A+
- A
- B
- C
- D
- E
- F
- G
- H
- 0
- 25
- 50
- 75
- 100
- 125
- 150
- 175
- 200
- 225
- >250
Beschreibung des Objekts
Adresse
Schreibers Hof 18a, 59469 Ense
Interessante Orte
Preis- und Lageinformationen
Preistrend für Bestandsimmobilien in Ense