Dieses großzügige Einfamilienhaus in ruhiger Lage bietet idealen Raum für eine große Familie. Es verfügt über drei separate Wohneinheiten: eine 4-Zimmer-Wohnung im Erdgeschoss, ein Studio und eine 2,5-Zimmer-Wohnung im Obergeschoss.
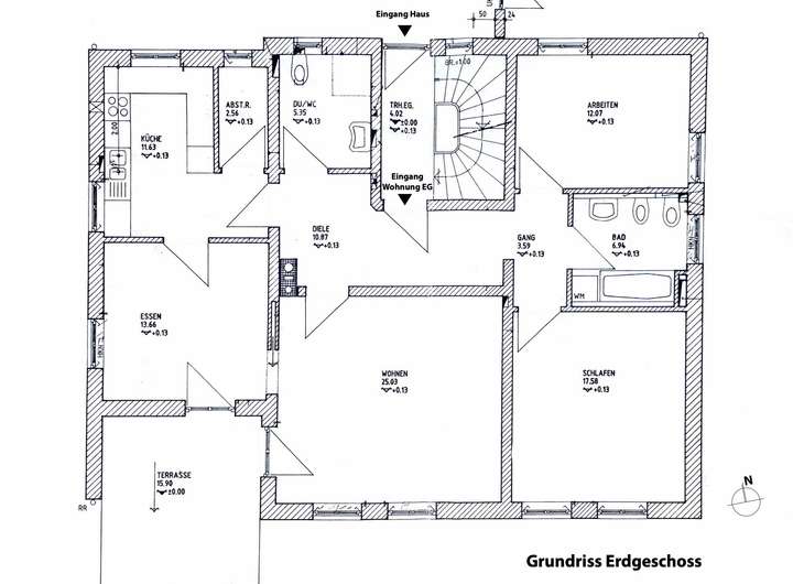
Die Erdgeschosswohnung besticht durch zwei Bäder, eines davon behindertengerecht ausgestattet, sowie eine moderne Küche mit hochwertiger Corian-Arbeitsplatte und angeschlossener Speisekammer. Das Wohnzimmer und Esszimmer haben direkten Zugang zum weitläufigen Garten, der sich rund um das Haus erstreckt.
Im Obergeschoss bietet die 2,5-Zimmer-Wohnung eine geräumige Wohnküche, ein großzügiges Wohnzimmer, ein ruhiges Schlafzimmer sowie ein großes Badezimmer mit Badewanne und Waschmaschinenanschluss. Vom sonnigen Balkon genießt man einen herrlichen Blick ins Grüne. Das ebenfalls separat zugängliche Studio verfügt über ein großes Zimmer und ein Bad mit Wanne.
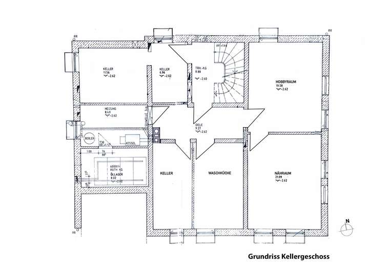
Der Keller bietet reichlich Stauraum: Neben einem Hobbyraum gibt es zwei große Lagerräume sowie eine geflieste Waschküche. Die Doppelgarage ist bequem vom Haus aus zugänglich und bietet zusätzlichen Platz für eine Werkbank oder Stauraum.
Hinweis: Das Haus wird für einen Zeitraum von 8 Jahren befristet vermietet.
Eckdaten:
- Großzügiger Garten auf ca. 1.100 m² Grundstück
- Wohnfläche ca. 193 m² (EG: 108 m², OG: 63 m², Studio: 22 m²)
- 3 separate Wohneinheiten, 7,5 Zimmer
- Hochwertige Ausstattung: Parkettböden, Holzfenster mit Jalousien, 4 Bäder
- Behindertenfreundliche Ausstattung im Erdgeschoss
- Großer Balkon im Obergeschoss
- Doppelgarage mit zusätzlichem Stauraum
- Keller mit Hobbyraum und Lagerräumen
- Satellitenschüssel für TV-Empfang
- Befristeter Mietvertrag auf 8 Jahre (wegen Eigennutzung)
Charmantes Einfamilienhaus für Mehrgenerationenwohnen – barrierefreundlich
94137 Bayerbach
Die vollständige Adresse der Immobilie erhalten Sie vom Anbieter.
Auf Karte anzeigen
Die vollständige Adresse der Immobilie erhalten Sie vom Anbieter.
Infos
| Haustyp | Einfamilienhaus |
|---|---|
| Etagenzahl | 2 |
| Wohnfläche ca. | 193 m2 |
| Nutzfläche | 360 m2 |
| Grundstücksfläche | 1.107 m2 |
| Bezugsfrei ab | 1.2.2026 |
| Zimmer | 7,5 |
| Schlafzimmer | 4 |
| Badezimmer | 4 |
| Haustiere | Nach Vereinbarung |
| Garage/Stellplatz | Garage |
| Anzahl Garage/Stellplatz | 2 |
Kosten
| Kaltmiete |
1.390 € |
|---|---|
| Nebenkosten | + 190 € |
| Heizkosten | keine Angabe |
| Gesamtmiete | 1.580 € (zzgl. Heizkosten) |
| Kaution o. Genossenschaftsanteile | 4.170 |
Weiter mieten oder doch kaufen?
Wer in Miete wohnt, überweist dem Vermieter im Laufe der Jahre hohe Summen, die sich
auch in die eigenen vier Wände investieren lassen könnten.
Bausubstanz & Energieausweis
| Baujahr | 1992 |
|---|---|
| Objektzustand | Vollständig Renoviert |
| Qualität der Austattung | Gehoben |
| Heizungsart | Öl-Heizung |
| Wesentliche Energieträger | Öl |
| Energieausweis | liegt vor |
| Energieausweistyp | Bedarfsausweis |
| Energieverbrauchskennwert | 140,7 kWh/(m²*a) |
| Energieeffizienzklasse | E |
140,7
kWh/(m²*a)
Energieeffizienzklasse E
- A+
- A
- B
- C
- D
- E
- F
- G
- H
- 0
- 25
- 50
- 75
- 100
- 125
- 150
- 175
- 200
- 225
- >250
Beschreibung des Objekts
Lage
Das Haus liegt in einer ruhigen Wohnstraße in Bayerbach/Rott, nur 6 km von Bad Birnbach entfernt.
Der staatlich anerkannte Erholungsort Bayerbach bietet Einkaufsmöglichkeiten für den täglichen Bedarf, Banken, Restaurants, Sportangebote sowie kulturelle Veranstaltungen. Der Bahnhof im Ort ermöglicht eine bequeme Anbindung an Passau, Pocking und Pfarrkirchen.
Weitere Dokumente
EnergieausweisGrundriss
Grundriss Erdgeschoss
>
>
Grundriss Obergeschoss
>
>
Grundriss Kellergeschoss
>
>
Adresse
94137 Bayerbach
Interessante Orte
Preis- und Lageinformationen
Preistrend für Bestandsimmobilien in Bayerbach