Frei ab dem 01.04.2026 (derzeit noch vermietet).
Einfamilienhaus in ruhiger Lage mit einer nach Süden ausgerichteten Terrasse, die sowohl vom Wohnbereich als auch vom Wintergarten aus zugänglich ist, sowie einem nach Westen ausgerichteten Balkon, der von den Schlafzimmern aus erreichbar ist.
Zimmeranzahl: 3 Schlafzimmer + UG-Gästezimmer, 2 Badezimmer, 1 Wohnzimmer
EG: Flur, Küche, Wohnen/Essen, Abstellraum + WC
OG (DG): 3 Zimmer, Bad
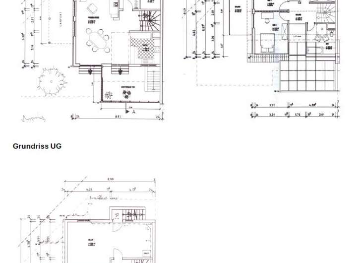
UG: eigener Zugang, Gästezimmer, Dusche/WC, Kellerraum
In der Miete inkludiert: die Küche und der Benjamini-Baum in der Galerie. Im Garten: der Mähroboter, das Kinderstelzenhaus und der Geräteschuppen inkl. Gartenutensilien.
Besondere Merkmale: Wintergarten, Galerie, Weinkeller, Carport/Terrasse. Grundstück mit Terrasse, Naturteich, Kinderstelzenhaus und Geräteschuppen.
Heizung: Gasheizung (2015), Solarthermie für Warmwasser, Kamin
Einfamilienhaus am Waldrand mit Panoramablick, Wintergarten und Kamin in Unterheinriet
74199 Untergruppenbach
Die vollständige Adresse der Immobilie erhalten Sie vom Anbieter.
Auf Karte anzeigen
Die vollständige Adresse der Immobilie erhalten Sie vom Anbieter.
Infos
| Haustyp | Reiheneckhaus |
|---|---|
| Etagenzahl | 3 |
| Wohnfläche ca. | 170 m2 |
| Nutzfläche | 170 m2 |
| Grundstücksfläche | 335 m2 |
| Bezugsfrei ab | 1.4.2026 |
| Zimmer | 5 |
| Schlafzimmer | 4 |
| Badezimmer | 2 |
| Haustiere | Nach Vereinbarung |
Kosten
| Kaltmiete |
1.570 € |
|---|---|
| Nebenkosten | + 146 € |
| Heizkosten | + 60 € |
| Gesamtmiete | 1.776 € (zzgl. Heizkosten) |
| Kaution o. Genossenschaftsanteile | 4710 |
Weiter mieten oder doch kaufen?
Wer in Miete wohnt, überweist dem Vermieter im Laufe der Jahre hohe Summen, die sich
auch in die eigenen vier Wände investieren lassen könnten.
Bausubstanz & Energieausweis
| Baujahr | 2000 |
|---|---|
| Objektzustand | Neuwertig |
| Qualität der Austattung | Gehoben |
| Heizungsart | Gas-Heizung |
| Wesentliche Energieträger | Gas |
| Energieausweis | liegt vor |
| Energieausweistyp | Bedarfsausweis |
| Energieverbrauchskennwert | 75,0 kWh/(m²*a) |
| Energieeffizienzklasse | B |
75,0
kWh/(m²*a)
Energieeffizienzklasse B
- A+
- A
- B
- C
- D
- E
- F
- G
- H
- 0
- 25
- 50
- 75
- 100
- 125
- 150
- 175
- 200
- 225
- >250
Beschreibung des Objekts
Ausstattung
In allen Zimmern wurde Parkett verlegt, außer im Eingangsbereich, in der Diele, in den Badezimmern und in der Küche, wo Fliesen verwendet wurden. Hochwertige Schüco Alu-Fenster und -Türen sorgen für edle Akzente. Eine hohe Galerie mit Somfy-Beschattung bildet das Zentrum des Hauses.
Lage
Die Immobilie befindet sich in einer ruhigen Lage, am Waldrand auf einer Anhöhe von Unterheinriet (Gemeinde Untergruppenbach), mit Sicht auf die Weinberge. Viele Parkplätze sind rund um das Haus vorhanden. In unmittelbarer Umgebung gibt es zwei tolle Spielplätze.
Mit dem Auto ist die A81 Autobahn etwa fünf Minuten entfernt. Dank der dazwischenliegenden Hügel gibt es glücklicherweise keine Lärmbelästigung. Direkt hinter dem Haus verläuft ein Bauernweg, über den Untergruppenbach mit dem Rad schnell erreichbar ist. Öffentlich verkehren folgende Buslinien: 641, 642, 645, 648 und 460 (siehe HNV).
Im Ortskern, ca. zehn Minuten zu Fuß entfernt, gibt es zwei Kindergärten, eine Krippe, eine Grundschule sowie die anliegende Sporthalle und Sportanlagen. An der Hauptstraße gibt es eine Bäckerei, einen Arzt, einen Friseur, eine Bank, ein Restaurant und einen Tante M Supermarkt. Der Ortskern verfügt zudem über eine Bibliothek und eine Postannahmestelle.
Grundriss
Grundrisse
>
>
Adresse
74199 Untergruppenbach
Interessante Orte
Preis- und Lageinformationen
Preistrend für Bestandsimmobilien in Untergruppenbach