Objektbeschreibung
Exklusiv | Energieeffizient | Modern: 4 Zimmer-Endreihen-Stadthaus.
Süd-Garten-Terrasse | Fußbodenheizung | Fernwärme | Carport.
Zentrale Lage | Direkte Nachbarschaft zu Hamburg und Pinneberg.
Besondere Ausstattungsmerkmale:
•Offene und hochwertig ausgestattete Einbauküche inkl. Backofen, Inselabzugshaube in Edelstahloptik, Cerankochfeld, Geschirrspülmaschine, Kühlschrank, Unter- und Oberschränke
•Modernes Tageslichtbad mit Badewanne und Fußbodenheizung im Obergeschoss, separates Duschbad mit Echtglasduschabtrennung, Fußbodenheizung im Staffelgeschoss/Dachstudio, Gäste-WC mit Fenster im Erdgeschoss
•Energieeffizienzklasse B
•Die Beheizung des Hauses erfolgt über Fernwärme (Blockheizkraftwerk).
•Fußbodenheizung im gesamten Haus
•Herrliches und lichtdurchflutetes Staffelgeschoss/Dachstudio
•Abstellräume auf allen Ebenen
•Geschmackvolle Bodenbeläge
•Fernseh- und LAN-Anschlüsse in allen Wohn-/Schlafräumen
•Terrasse in Sonnenausrichtung
•Fahrrad-/Abstellschuppen im Garten
•Alarmanlage im Erdgeschoss
•Carportstellplatz
Grundstück:
Die sonnige und eingefriedete Gartenfläche bietet allen Familienmitgliedern Freiheit und Raum für Spaß und Erholung. Während Sie Ihren Kindern beim Spielen im Garten zusehen, lädt der nach Süden ausgerichtete Terrassenbereich zum Sitzen und Verweilen ein.
Raumaufteilung
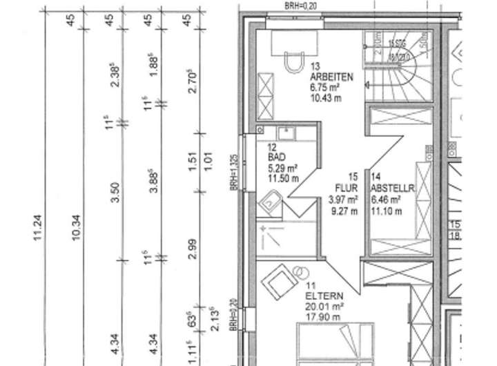
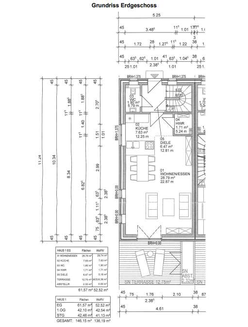
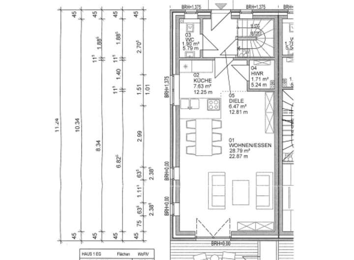
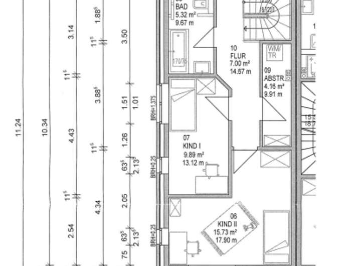
Das exklusive und familiengerechte 4 Zimmer Endreihen-Stadthaus wurde nach den 2013 geltenden Energiestandards über 3 Ebenen errichtet. Es bietet eine Wohnfläche von ca. 136,19m². Die Aufteilung der Wohnfläche erfolgt auf ca. 52,52m² im Erdgeschoss, ca. 45,54m² im Obergeschoss und ca. 41,13 im Staffelgeschoss/Dachstudio.
Exklusiv | Energieeffizient | Modern: 4-Zimmer-Reihenendhaus mit Garten | Ab 01.04.2026 verfügbar.
22869 Schenefeld
Die vollständige Adresse der Immobilie erhalten Sie vom Anbieter.
Auf Karte anzeigen
Die vollständige Adresse der Immobilie erhalten Sie vom Anbieter.
Infos
| Haustyp | Reiheneckhaus |
|---|---|
| Etagenzahl | 3 |
| Wohnfläche ca. | 136 m2 |
| Grundstücksfläche | 188 m2 |
| Bezugsfrei ab | 1.4.2026 |
| Zimmer | 4 |
| Schlafzimmer | 3 |
| Badezimmer | 2 |
| Haustiere | Nach Vereinbarung |
| Garage/Stellplatz | Carport |
| Anzahl Garage/Stellplatz | 1 |
Kosten
| Kaltmiete |
2.950 € |
|---|---|
| Nebenkosten | + 100 € |
| Heizkosten | keine Angabe |
| Gesamtmiete | 3.050 € (zzgl. Heizkosten) |
| Kaution o. Genossenschaftsanteile | 8.850 € |
Weiter mieten oder doch kaufen?
Wer in Miete wohnt, überweist dem Vermieter im Laufe der Jahre hohe Summen, die sich
auch in die eigenen vier Wände investieren lassen könnten.
Bausubstanz & Energieausweis
| Baujahr | 2012 |
|---|---|
| Letzte Sanierung | 2024 |
| Objektzustand | Vollständig Renoviert |
| Qualität der Austattung | Gehoben |
| Heizungsart | Fernwärme |
| Wesentliche Energieträger | Fernwärme |
| Energieausweis | liegt vor |
| Energieausweistyp | Verbrauchsausweis |
| Energieverbrauchskennwert | 60,9 kWh/(m²*a) |
| Energieeffizienzklasse | B |
60,9
kWh/(m²*a)
Energieeffizienzklasse B
- A+
- A
- B
- C
- D
- E
- F
- G
- H
- 0
- 25
- 50
- 75
- 100
- 125
- 150
- 175
- 200
- 225
- >250
Beschreibung des Objekts
Lage
Das exklusive und familienfreundliche Endreihen-Stadthaus befindet sich in einer ruhigen und zentralen Wohnlage (30´er Zone) von Schenefeld. Hochwertige Stadthaus-, Einfamilienhaus-, Doppelhaus- und Reihenhausbebauungen prägen die nähere Umgebung. Auch in unmittelbarer Umgebung, stehen viele Lebensmittelfachgeschäfte für den täglichen Bedarf zur Verfügung. Zu Fuß erreichen Sie ein paar Restaurants, Bäckereien, ein Café, einen Arzt und ein Einkaufszentrum. Außerdem gibt es verschiedene Grün- und Parkanlagen.
Sonstige Angaben
Besichtigungstermine | Einzug
Besichtigung: Besichtigungstermine gerne nach vorheriger Absprache.
Einzugstermin: ab 01.04.2026 möglich
Mietkonditionen:
Unbefristeter Hamburg-Index-Mietvertrag
€ 2.950,-- Netto-Kalt-Miete
€ 100,-- Betriebskosten
Mieter direkt: Strom-, Wasser- und Heizkosten (Fernwärme) rechnet Mieter direkt mit den Versorgern ab.
____________________________________________________________________
€3.050,-- An den Vermieter zu zahlende monatliche Gesamtmiete
Mietkaution: 3 Netto-Kalt-Mieten
Grundriss
Grundriss Erdgeschoss
>
>
Adresse
22869 Schenefeld
Interessante Orte
Preis- und Lageinformationen
Preistrend für Bestandsimmobilien in Schenefeld