!! Anfragen bitte nur schriftlich über das Kontaktformular von ImmoScout - Bitte fügen Sie in Ihrer Anfrage einige Informationen über sich selbst hinzu !!
Willkommen in Ihrem neuen Zuhause im zentral gelegenen Wohn- und Geschäftshaus von Raesfeld. Diese modernen Mietwohnungen bieten erstklassigen Wohnkomfort, innovative Technologien und individuelle Gestaltungsmöglichkeiten.
Highlights der Wohnungen:
- Nachhaltige Bauweise: Errichtet nach dem KfW40-Standard, berücksichtigt die Bauweise die LCA-Ökobilanz und garantiert Umweltfreundlichkeit und Energieeffizienz.
- Effiziente Heizung und Kühlung: Beheizung und Warmwasserbereitung erfolgen über eine moderne Abluftwärmepumpe. Die Wärmepumpe sorgt in Kombination mit der Fußbodenheizung im Sommer für angenehme Kühlung.
- Dezentrale Lüftungsanlage: Jede Wohnung ist mit einer eigenen Lüftungsanlage ausgestattet, die zusammen mit der Wärmepumpe für ein gesundes Raumklima sorgt.
- Komfortable Fußbodenheizung: Genießen Sie den Komfort der Fußbodenheizung in allen Räumen. Im Sommer erfolgt ggfs. eine Kühlung über die Rohre der Fußbodenheizung.
- Hochwertige Fenster: 3-fach verglaste Fenster bieten exzellente Wärme- und Schalldämmung.
- Außenbereiche: Jede Wohnung verfügt über einen Balkon, der zu entspannten Stunden im Freien einlädt. Eine Nutzung der riesigen Dachterrasse mit Blick über Raesfeld ist nach Absprache möglich.
- Bequemlichkeit und Erreichbarkeit: Das Gebäude ist mit einem Aufzug ausgestattet, der den Zugang zu Ihrer Wohnung und zur Tiefgarage erleichtert.
- Gestaltungsmöglichkeiten: Bei frühzeitiger Festlegung haben Sie die Möglichkeit, bei der Umsetzung Ihrer Wohnung mitzusprechen und individuelle Wünsche zu äußern.
Lassen Sie sich schon jetzt für diese begehrten Wohnungen vormerken, um sich Ihre Traumwohnung zu sichern.
Diese Wohnungen kombinieren modernes Wohnen mit Nachhaltigkeit und bieten die Möglichkeit, Ihr Zuhause nach Ihren Vorstellungen zu gestalten.
Aktuell ist eine Besichtigung leider noch nicht möglich.
Moderne Mietwohnung mit Aufzug im Herzen von Raesfeld
46348 Raesfeld
Die vollständige Adresse der Immobilie erhalten Sie vom Anbieter.
Auf Karte anzeigen
Die vollständige Adresse der Immobilie erhalten Sie vom Anbieter.
Infos
| Wohnungskategorie | Etagenwohnung |
|---|---|
| Wohnfläche ca. | 90 m2 |
| Bezugsfrei ab | 31.12.2025 |
| Zimmer | 3 |
| Schlafzimmer | 1 |
| Badezimmer | 1 |
| Haustiere | Nach Vereinbarung |
| Garage/Stellplatz | Tiefgarage |
| Anzahl Garage/Stellplatz | 1 |
Kosten
| Kaltmiete |
1.260 € |
|---|---|
| Nebenkosten | + 150 € |
| Heizkosten | in Nebenkosten enthalten |
| Gesamtmiete | 1.410 € |
| Miete für Garage/Stellplatz | 60 € |
| Kaution o. Genossenschaftsanteile | 2 Monatskaltmieten |
Weiter mieten oder doch kaufen?
Wer in Miete wohnt, überweist dem Vermieter im Laufe der Jahre hohe Summen, die sich
auch in die eigenen vier Wände investieren lassen könnten.
Bausubstanz & Energieausweis
| Objektzustand | Erstbezug |
|---|---|
| Qualität der Austattung | Gehoben |
| Heizungsart | Wärmepumpe |
| Wesentliche Energieträger | Strom |
| Energieausweis | liegt zur Besichtigung vor |
Beschreibung des Objekts
Ausstattung
Weitere Details:
- Gäste-WC möglich
- Video-Sprechanlage
- Bäder mit bodentiefer Dusche
- Luftwärmepumpe mit Fußbodenheizung und Kühlung im Sommer
- Lüftungsanlage
- Aufzugsanlage
- Balkone
- moderne Ausstattung
- PKW-Stellplatz in der Tiefgarage
- Fahrradraum
- elektrische Rollladen
- Treppenhausreinigung
- Internet: Glasfaser
Die Nebenkosten können zum aktuellen Zeitpunkt noch nicht genau beziffert werden.
Lage
Das Objekt liegt im Dorfkern von Raesfeld.
Diverse Einrichtungen des täglichen Bedarf befinden sich in unmittelbarer Umgebung.
--------------------------------
Raesfeld ist eine Gemeinde mit ca. 12.500 Einwohnern und hat eine gute Anbindung an die A31 (ca. 10km), A43 (ca. 20km).
5 Kindergärten, 1 Grund- und Gesamtschule sind vorhanden. Die weiterführenden Schulen und Gymnasien sowie Berufsschulen etc. befinden sich in der Nachbarstadt Borken ca. 10km.
Das schöne Raesfelder Wasserschloss ist ca. 10 Minuten Fußweg entfernt und bietet sich mit seinen nahe liegenden Wald- und Felderlandschaft für erholsame Spaziergänge sowie Fahrrad-Touren in der freien Natur an.
Sonstige Angaben
Alle Angaben zum Objekt beruhen auf Informationen des Vermieter. Eine Haftung für diese Angaben kann nicht übernommen werden.
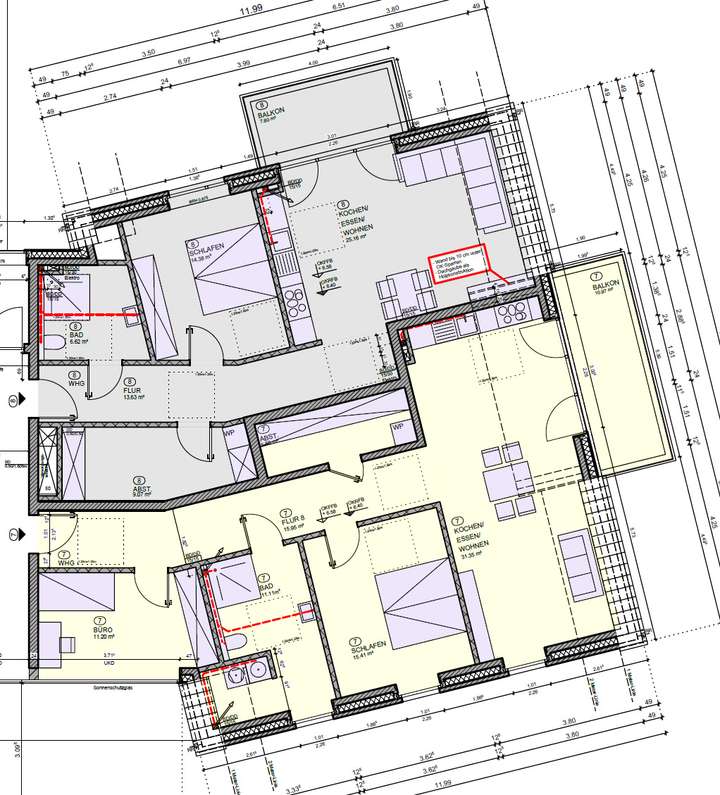
Grundriss
Grundriss WE 4
>
>
Grundriss WE 5-6
>
>
Grundriss WE 7-8
>
>
Grundriss WE 9
>
>
Adresse
46348 Raesfeld
Interessante Orte
Preis- und Lageinformationen
Preistrend für Bestandsimmobilien in Raesfeld