Dieses tolle Einfamilienhaus in Leipzig Portitz steht ab Februar 2025 zur Vermietung!
Betreten Sie diese tolle Immobilie entweder durch den Haupteingang, welcher sich vorne am Haus befindet oder bequem nach dem parken in der sehr großen Garage, welche sich direkt rechts am Gebäude befindet und einen eigenen Durchgang zum Eingangsbereich/ Flur im Erdgeschoss hat.
Der einladende Eingangsbereich im Erdgeschoss, welcher durch Marmorfußboden besticht, führt Sie zu den Haupträumen des Hauses.
Sie erreichen durch eine große gläserne Flügeltür das großzügige Wohnzimmer, welches sich ideal in einen Essbereich und einen Wohnbereich untergliedern lässt. Von hier aus haben Sie Zugang zum Garten und auf die Terrasse.
Vom Eingangsbereich und vom Essbereich aus gelangen Sie in die Küche, welche Ihnen ebenfalls viel Platz zur kreativen Entfaltung ermöglicht.
Des Weiteren finden Sie einen Hauswirtschaftsraum mit Waschmaschinenanschluss sowie ein Badezimmer mit WC und Dusche im Erdgeschoss.
Über eine ebenfalls marmorierte Wendeltreppe erreichen Sie die oberen Etagen Ihres neuen Zuhauses.
Im Obergeschoss gehen vom raumspendenden Flur ein großes lichtdurchflutetes Masterbad mit Doppelwaschbecken, Wanne und Dusche, sowie 4 weitere Wohnräume ab. Ideal nutzbar als Schlaf, Kinder, Gäste- oder Arbeitszimmer.
Eine Abstellkammer mit Fenster komplementiert das Obergeschoss und bietet noch einmal zusätzlichen Stauraum.
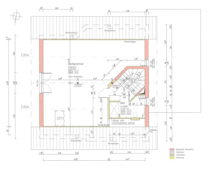
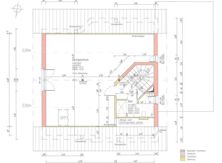
Im Dachgeschoss finden Sie noch einmal ein Gäste WC mit WC und Waschbecken ausgestattet sowie einen sehr großen ausgebauten Wohnraum. Hier sind der individuellen Nutzung keine Grenzen gesetzt.
Die Wohnräume sind mit hochwertigem Vinylboden ausgestattet, die Bäder bestechen mit modernen Fliesen.
Das Haus besticht mit einem tollen Garten, welcher viel Platz zur kreativen Gestaltung lässt.
Die Wohnfläche ist mit 229 m² angegeben kann aber auf ca. 308 m² Nutzfläche durch Garage und Dachschrägen deutlich mehr bieten, als man denken könnte.
Infos
| Haustyp | Einfamilienhaus |
|---|---|
| Etagenzahl | 2 |
| Wohnfläche ca. | 229 m2 |
| Nutzfläche | 308 m2 |
| Grundstücksfläche | 360 m2 |
| Bezugsfrei ab | sofort |
| Zimmer | 6 |
| Schlafzimmer | 5 |
| Badezimmer | 2 |
| Garage/Stellplatz | Garage |
| Anzahl Garage/Stellplatz | 1 |
Kosten
| Kaltmiete |
2.475 € |
|---|---|
| Nebenkosten | keine Angabe |
| Heizkosten | keine Angabe |
| Gesamtmiete | 2.675 € (zzgl. Nebenkosten) |
| Miete für Garage/Stellplatz | 100 € |
| Kaution o. Genossenschaftsanteile | 7725.0 |
Weiter mieten oder doch kaufen?
Wer in Miete wohnt, überweist dem Vermieter im Laufe der Jahre hohe Summen, die sich
auch in die eigenen vier Wände investieren lassen könnten.
Bausubstanz & Energieausweis
| Baujahr | 2018 |
|---|---|
| Objektzustand | Gepflegt |
| Qualität der Austattung | Gehoben |
| Heizungsart | Fußbodenheizung |
| Wesentliche Energieträger | Erdgas schwer |
| Energieausweis | liegt vor |
| Energieausweistyp | Bedarfsausweis |
| Energieverbrauchskennwert | 37,0 kWh/(m²*a) |
| Energieeffizienzklasse | A |
37,0
kWh/(m²*a)
Energieeffizienzklasse A
- A+
- A
- B
- C
- D
- E
- F
- G
- H
- 0
- 25
- 50
- 75
- 100
- 125
- 150
- 175
- 200
- 225
- >250
Beschreibung des Objekts
Ausstattung
- 6 Zimmer
- 2 Bäder
- 1 Gäste-WC
- Garage & Stellplatz
- Garten
- Balkon
- Fußbodenheizung
- Marmor-, Fliesen-, Vinylboden
- Hausanschlussraum mit Waschmaschinenanschluss
- Abstellkammer
Lage
Portitz hat zum größten Teil den Charakter einer Gartenstadt und liegt etwa acht Kilometer vom Leipziger Stadtzentrum entfernt. Seine Nachbarn sind im Osten die Stadt Taucha und weiter im Uhrzeigersinn die Leipziger Stadtteile Paunsdorf, Thekla und Plaußig.
Die Siedlungen liegen zu beiden Seiten der als Hauptstraße des Ortes anzusehenden Tauchaer Straße, die auf Portitzer Gebiet fast zwei Kilometer lang ist und die Verbindung nach Taucha und den inneren Bereichen Leipzigs darstellt. Über die Buslinien 81 und 82 ab Thekla ist Portitz mit dem Leipziger ÖPNV-Netz verbunden; die Linie 81 verkehrt bis Taucha. Für den Fernverkehr ist die Anschlussstelle Leipzig-Nordost der Autobahn 14 in ein bis zwei Kilometern zu erreichen.
Sonstige Angaben
Wir haben die Angaben in diesem Exposé nach bestem Wissen und Gewissen erstellt. Gleichwohl können fehlerhafte Angaben nicht vollkommen ausgeschlossen werden. Wir bitten daher um Verständnis, dass wir für unsere hier gemachten Angaben keinerlei Gewähr übernehmen können. Im Fall eines Vertragsabschlusses über das hier offerierte Objekt gilt ausschließlich der Inhalt des zwischen den Parteien vereinbarten Mietvertrages.
Möchten Sie eine Immobilie kaufen oder verkaufen, mieten oder vermieten ?
Über Ihre Kontaktaufnahme würde ich mich freuen.
+++ Wir bitten Sie hiermit von einer Anfrage abzusehen, wenn Sie bereits anderweitige Wohnungsanfragen laufen haben und ein Mietvertragsabschluss abzusehen ist. Aufgrund der aktuell sehr hohen Nachfrage schaffen wir es ohne hin nicht mehr allen Anfragenden gerecht zu werden. Es ist schade um Ihre und unsere Zeit. Wir bitten um Ihr Verständnis! +++
Grundriss
Erdgeschoss
>
>
Obergeschoss
>
>
Dachgeschoss
>
>
Adresse
Kästnerbogen 33, 04349 Leipzig
Interessante Orte
Preis- und Lageinformationen
Preistrend für Bestandsimmobilien in Plaußig-Portitz