Wir bieten eine charmante Doppelhaushälfte mit ca. 290 m² Wohnfläche in Altgarbsen mit Blick auf den Mittellandkanal zur Miete an. Das Haus, das auf eine rund 100-jährige Geschichte zurückblickt, wurde über die Jahre hinweg umfassend modernisiert. Es verfügt über eine effiziente Gasheizung mit Solarthermie, die mit der benachbarten Doppelhaushälfte geteilt wird.
Die gesamte Wohnfläche verteilt sich auf zwei eigenständige Wohneinheiten:
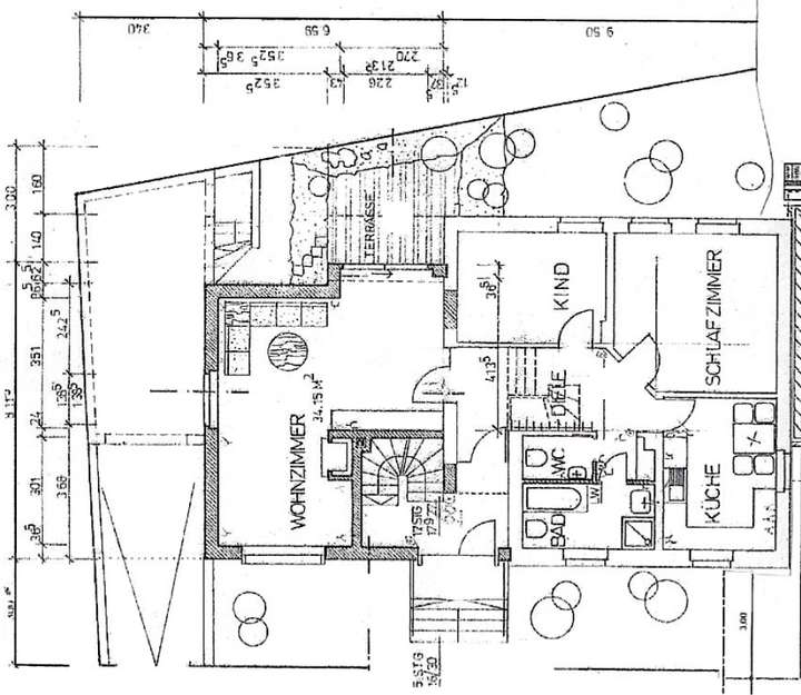
• Untere Wohnung: ca. 130 m² Wohnfläche auf einer Ebene mit kleinem Garten. Diese Einheit wurde 2015 umfassend renoviert, ist seitdem wenig genutzt und in einem sehr guten Zustand.
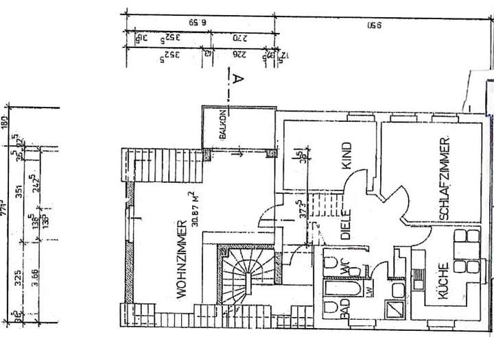
• Obere Wohnung: ca. 160 m² Wohnfläche, verteilt auf zwei Etagen (1. Etage und Dachgeschoss mit Schrägen). Die Wohnung verfügt über eine moderne Küche und bietet großzügigen Wohnraum.
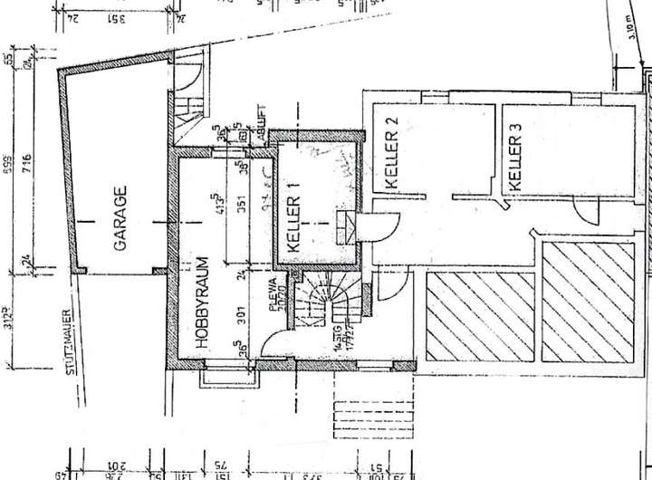
Zusätzlich gehören 4 Kellerräume, 4 Stellplätze vor dem Haus sowie (optional) eine große Garage zum Mietobjekt. Einer der Kellerräume ist so ausgestattet, dass er z.B. gut als Hobbyraum genutzt werden könnte.
Das Haus verfügt aktuell über zwei voll ausgestattete Küchen; wie damit verfahren wird, besprechen wir im persönlichen Gespräch.
Ein positives und freundliches Miteinander ist uns besonders wichtig, da Sie als zukünftige Mieter nicht nur Bewohner, sondern auch unsere direkten Nachbarn wären. Einige Ressourcen wie [z. B. Heizungsanlage und Satellitenschüssel] werden gemeinsam genutzt. Für Sie bedeutet dies den Vorteil, dass wir bei Fragen oder Problemen schnell und direkt ansprechbar sind.
Großzügige Doppelhaushälfte mit moderner Ausstattung zu vermieten
Im Ostereschfeld 6,
30823 Garbsen
Auf Karte anzeigen
Infos
| Haustyp | Doppelhaushaelfte |
|---|---|
| Etagenzahl | 3 |
| Wohnfläche ca. | 290 m2 |
| Nutzfläche | 105 m2 |
| Grundstücksfläche | 320 m2 |
| Bezugsfrei ab | 1.4.2026 |
| Zimmer | 6 |
| Schlafzimmer | 4 |
| Badezimmer | 4 |
| Haustiere | Nach Vereinbarung |
| Garage/Stellplatz | Garage |
| Anzahl Garage/Stellplatz | 4 |
Kosten
| Kaltmiete |
1.950 € |
|---|---|
| Nebenkosten | + 600 € |
| Heizkosten | in Nebenkosten enthalten |
| Gesamtmiete | 2.550 € |
| Miete für Garage/Stellplatz | 50 € |
| Kaution o. Genossenschaftsanteile | 5850 |
Weiter mieten oder doch kaufen?
Wer in Miete wohnt, überweist dem Vermieter im Laufe der Jahre hohe Summen, die sich
auch in die eigenen vier Wände investieren lassen könnten.
Bausubstanz & Energieausweis
| Baujahr | unbekannt |
|---|---|
| Letzte Sanierung | 2023 |
| Objektzustand | Modernisiert |
| Qualität der Austattung | Normal |
| Heizungsart | Gas-Heizung |
| Wesentliche Energieträger | Gas |
| Energieausweis | liegt zur Besichtigung vor |
Beschreibung des Objekts
Ausstattung
Obere Wohnung:
• Fußboden: Teppich, Klickvinyl, Fliesen und Holz (Dachgeschoss)
• Moderne Küche
• Alkoven
• Klimaanlage
• Ausgebauter Dachboden perfekt als Schlafzimmer nutzbar
• Balkon
• Ausblick auf den Kanal
Untere Wohnung:
• Fußboden: Klickvinyl, Fliesen und PVC (Küche)
• Schöne Terrasse
• Kleiner Garten
• Moderne und neuwertige Einrichtung
• Zugang zur Garage über den Garten
Keller:
• Großzügiger Hobbyraum
• Mehrere kleinere Kellerräume
• Waschküche
Lage
Das Haus liegt in einer ruhigen idyllischen Lage direkt an der Masch und wenige Gehminuten vom Mittellandkanal entfernt (z.B. ideal für Hundebesitzer). Eine Bushaltestelle ist innerhalb von 2 Minuten fußläufig erreichbar. Einkaufsmöglichkeiten, Schulen, Kindergärten und Restaurants befinden sich ebenfalls in der Nähe.
Sonstige Angaben
Highlights:
• Lage: Direkt an der Masch und trotzdem zentral gelegen
• Wohnfläche: ca. 290 m²
• Heizung: Gasheizung mit Solarthermie
• Umfassende Modernisierungen, u. A.:
○ Dämmung, Elektrik und Heizung erneuert.
○ Teile des Dachs saniert (2023).
○ Moderne Velux-Fenster eingebaut (2016).
Grundriss
Hausansicht
>
>
Grundriss Erdgeschoss
>
>
Grundriss Obergeschoss
>
>
Adresse
Im Ostereschfeld 6, 30823 Garbsen
Interessante Orte
Preis- und Lageinformationen
Preistrend für Bestandsimmobilien in Garbsen