Auf einen Blick:
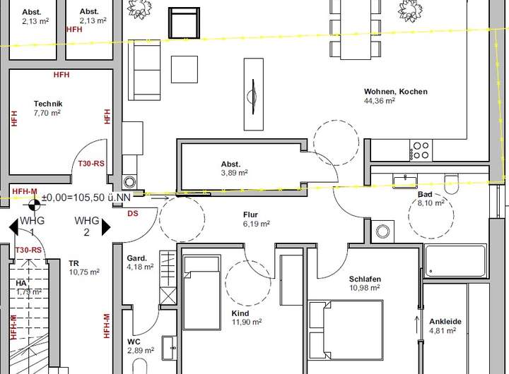
Die Wohnung verfügt über 1 Wohn/Essbereich mit offener Küche, 2 Schlafzimmer – davon 1 mit angrenzender Ankleide, 1 Duschbad, 1 Gäste WC, 1 Abstellraum, privater Garten mit sehr großer Terrasse, Garage, Fahrradgarage für alle Bewohner.
Wir bieten Ihnen in einer zurückgelegenen Hofanlage eine schöne und lichtdurchflutete 3- Zimmerwohnung in einem 2023 fertiggestellten Neubau. Diese befindet sich im Erdgeschoss eines 6 – Parteienhauses, mit großer Terrasse und direktem Zugang zum eigenen Garten. Der Garten hat einen weiteren Abstellraum am Haus.
Das Haus wurde massiv erbaut, die Hausfassade mit einem ansprechenden Klinkerriemchen versehen. Der neu angelegte Innenhof ist durch eine Torzufahrt erreichbar. Jeder Wohnung ist eine Garage zugeordnet, die im Rahmen der E-Mobilität vorbereitet wurde, sodass die Möglichkeit der Installation einer eigenen Ladestation besteht.
Ein hochmodernes Luft-Wärmepumpensystem und eine Lüftungsanlage mit Wärmerückgewinnung und die Bauweise als Effizienzhaus 40, sorgen für maximale Energieeffizienz beim Heizen. Sie werden staunen, wie gering Ihre Heizkosten sind.
Eine begehbare Dusche befindet sich im großzügigen Bad welches großzügig und modern gefliest wurde.
Die Wohnung überzeugt durch den großen, lichtdurchfluteten Wohn-/Essbereich, mit offener Küche. Die Räume sind mit bodentiefen, 3-fach verglasten Kunststofffenstern ausgestattet und bieten dadurch genügend Lichteinfall.
Die Installation eines Schornsteins ist vorhanden und somit der Anschluss eines Kaminofens möglich. Hier können Sie gemütliche Abende vor dem Feuer ausklingen l
Ausrichtung der Terrasse für abendliche Sonnenuntergänge
Treppenhausreinigung und Hausmeisterservice
Unmittelbare lange Spazierwege für Hund und Mensch
Die Fotos sind von einer anderen Mietswohnung. Fotos der betroffenen Erdgeschosswohnung werden in Kürze nachgereicht. Es handelt sich jedoch um den gleichen Baustil.
Erdgeschosswohnung mit Garten als Neubau mit Wärmepumpe
Rektor-Meller-Str, 5b,
50374 Erftstadt
Auf Karte anzeigen
Infos
| Wohnungskategorie | Erdgeschosswohnung |
|---|---|
| Etage | 0 von 3 |
| Wohnfläche ca. | 111 m2 |
| Nutzfläche | 0 m2 |
| Bezugsfrei ab | 1.3.2026 |
| Zimmer | 3,5 |
| Schlafzimmer | 2 |
| Badezimmer | 1 |
| Haustiere | Ja |
| Garage/Stellplatz | Garage |
| Anzahl Garage/Stellplatz | 1 |
Kosten
| Kaltmiete |
1.490 € |
|---|---|
| Nebenkosten | + 250 € |
| Heizkosten | in Nebenkosten enthalten |
| Gesamtmiete | 1.740 € |
| Miete für Garage/Stellplatz | 100 € |
| Kaution o. Genossenschaftsanteile | 4980.0 |
Weiter mieten oder doch kaufen?
Wer in Miete wohnt, überweist dem Vermieter im Laufe der Jahre hohe Summen, die sich
auch in die eigenen vier Wände investieren lassen könnten.
Bausubstanz & Energieausweis
| Baujahr | 2023 |
|---|---|
| Letzte Sanierung | 2023 |
| Qualität der Austattung | Gehoben |
| Heizungsart | Fußbodenheizung |
| Energieausweis | liegt zur Besichtigung vor |
Beschreibung des Objekts
Ausstattung
- Energieeffizienzklasse A+, KFW 40 Bauweise
- Hochmoderne Luft-Wärmepumpe
- Wärmerückgewinnungstechnologie in der Belüftungsanlage
- Fenster/Lüftungssystem
- Bodentiefe 3-fach verglaste Kunststofffenster
- Alle Fenster mit elektr. Rollläden
- Große, steingraue Fliesen in allen Räumen
- Weiße, moderne Türen
- Duschbad
- Ankleideraum
- Südlich ausgerichtete Terrasse und Garten
- Garage mit Vorrichtung für Installation einer Ladestation
- Anschluss für Kaminofen
- Deckeneinbauleuchten in Flur und Bad
Lage
50374 Herrig ist ein Ortsteil von Erftstadt.
Diverse Einkaufsmöglichkeiten, wie Lidl, Rewe etc. sind in wenigen Minuten im angrenzenden Lechenich, Erp oder Gymnich erreichbar. Ärzte fast aller Bereiche sind ebenso, wie Schulen, Kindergärten und Apotheken etc. vorhanden.
Die Autobahn kann über Gymnich oder Lechenich in ca. 5-10 Minuten erreicht werden. Köln, und Bonn als Arbeitgeber sind in Kürze erreichbar.
Busverbindungen sind nur wenige Meter vom Haus entfernt und Fahrradwege führen in die Nachbarortschaften
Hier vereint sich Zivilisation und Natur
Zudem bietet die Natur vor der Türe lange Spaziergänge oder Fahrradtouren an.
Adresse
Rektor-Meller-Str, 5b, 50374 Erftstadt
Interessante Orte
Preis- und Lageinformationen
Preistrend für Bestandsimmobilien in Erftstadt