Diese stilvolle Erdgeschosswohnung überzeugt durch ihre gehobene Ausstattung, eine clevere Raumaufteilung über zwei Ebenen und den besonderen Charme, dass Sie hier Erstmieter werden können.
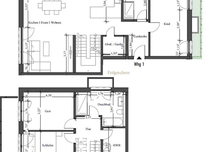
Im Erdgeschoss erwartet Sie ein großzügiger Wohn- und Essbereich mit offener Küche – der ideale Mittelpunkt für gemeinsame Stunden mit Familie und Freunden. Ergänzt wird die Ebene durch ein helles Kinderzimmer sowie ein modernes Badezimmer.
Ein echtes Highlight ist das lichtdurchflutete Elternschlafzimmer im Souterrain. Durch seine ruhige Lage und das angrenzende, großzügige Badezimmer mit Wanne entsteht ein privater Rückzugsort, der Erholung und Wohlfühlatmosphäre garantiert.
Die Wohnräume im Erdgeschoss bieten direkten Zugang zur Terrasse und Garten, die wie ein zweites Wohnzimmer im Freien genutzt werden kann. Ein praktischer Kellerraum sorgt zusätzlich für Stauraum.
Es erwartet Sie hier ein Zuhause, das modernes Wohnen, Privatsphäre und Komfort auf ideale Weise verbindet.
Haus in Haus: Exklusive 4-Zimmer-EG-Wohnung in Seligenstadt
Jügesheimer Weg 31,
63500 Seligenstadt
Auf Karte anzeigen
Infos
| Wohnungskategorie | Erdgeschosswohnung |
|---|---|
| Etage | 0 von 2 |
| Wohnfläche ca. | 132 m2 |
| Bezugsfrei ab | 1.3.2026 |
| Zimmer | 4 |
| Schlafzimmer | 3 |
| Badezimmer | 2 |
| Haustiere | Nach Vereinbarung |
| Garage/Stellplatz | Außenstellplatz |
| Anzahl Garage/Stellplatz | 2 |
Kosten
| Kaltmiete |
1.900 € |
|---|---|
| Nebenkosten | + 330 € |
| Heizkosten | in Nebenkosten enthalten |
| Gesamtmiete | 2.230 € |
| Miete für Garage/Stellplatz | 40 € |
| Kaution o. Genossenschaftsanteile | 5000.0 |
Weiter mieten oder doch kaufen?
Wer in Miete wohnt, überweist dem Vermieter im Laufe der Jahre hohe Summen, die sich
auch in die eigenen vier Wände investieren lassen könnten.
Bausubstanz & Energieausweis
| Baujahr | 2025 |
|---|---|
| Letzte Sanierung | 2025 |
| Objektzustand | Erstbezug |
| Qualität der Austattung | Gehoben |
| Heizungsart | Wärmepumpe |
| Wesentliche Energieträger | Strom |
| Energieausweis | liegt zur Besichtigung vor |
Beschreibung des Objekts
Ausstattung
Die Ausstattung ist modern und durchdacht:
- Hochwertiger Vinylboden in trendiger Eicheoptik
- Wärmepumpe mit Kühlfunktion – nachhaltig und komfortabel
- Stilvolles Bad mit modernen Armaturen
- Separates Gäste-WC
- Walk-in Dusche
- Badewanne
- Praktischer Abstellraum mit Platz für Waschmaschine und Trockner
- Aufzug im Haus für bequemen Zugang
- bei Bedarf kann auch ein 2. Parkplatz angemietet werden
- Satelittenempfang
- Glasfaseranschluss
- großer Mieterkeller von knapp 4m²
- abschließbare Fahrradgaragen auf dem Grundstück, auch für E-Bikes
- Hausmeisterdienst inklusive - Sie müssen sich um nichts kümmern
Lage
Das Objekt befindet sich in einer ruhigen Sackgasse in Seligenstadt Froschhausen. Die Anbindung zur Autobahn ist ideal.
Die Buslinien 58 und OF-85 sind fußläufig zu erreichen.
In Laufnähe gibt es einige Restaurants, ein Café und einen Arzt. Eine Grün- und Parkanlage, eine Postannahmestelle, eine Apotheke und einen Friseur finden Sie ebenfalls vor Ort.
Sonstige Angaben
Wir freuen uns über Ihr Interesse an der Wohnung. Damit wir uns ein besseres Bild machen können, bitten wir Sie, in Ihrer Anfrage ein paar Worte über sich zu schreiben (z. B. Beruf, Lebenssituation, Anzahl der einziehenden Personen, etc.). So können wir schneller einschätzen, ob die Wohnung gut zu Ihnen passt. Vielen Dank für Ihre Mühe!
Die Inserat bezieht sich auf Wohnung 2 im Expoée. Wohnung 1 ist ebenfalls verfügbar. Diese ist etwas größer und verfügt über einen größeren Garten. Bei Interesse bitten wir Sie uns einfach anzuschreiben.
Adresse
Jügesheimer Weg 31, 63500 Seligenstadt
Interessante Orte
Preis- und Lageinformationen
Preistrend für Bestandsimmobilien in Seligenstadt