Die Walzenmühle gilt als das älteste Fabrikgebäude in Delitzsch, welches im Jahr 1875 mit der Walzengetreidemühle und einer Wohnvilla erbaut wurde.
Zusammen mit der Gestaltung der Außenanlage und Errichtung eines Parkhauses unweit des Objektes im Areal Wasserturm, wird hier ein ansprechendes Wohnquartier entstehen.
Modernes Wohnen in der historischen Walzenmühle Delitzsch
Leipziger Straße 24 f,
04509 Delitzsch
Auf Karte anzeigen
Infos
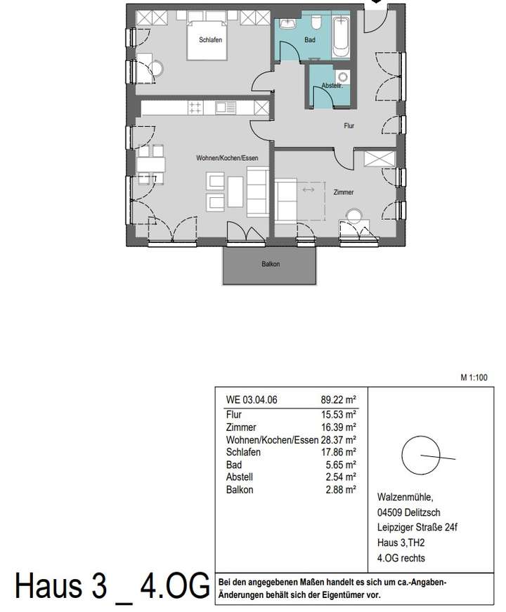
| Wohnungskategorie | Etagenwohnung |
|---|---|
| Etage | 2 von 5 |
| Wohnfläche ca. | 89 m2 |
| Bezugsfrei ab | sofort |
| Zimmer | 3 |
| Schlafzimmer | 2 |
| Badezimmer | 1 |
| Haustiere | Nach Vereinbarung |
Kosten
| Kaltmiete |
1.179 € |
|---|---|
| Nebenkosten | + 223 € |
| Heizkosten | in Nebenkosten enthalten |
| Gesamtmiete | 1.402 € |
| Kaution o. Genossenschaftsanteile | 3.537 |
Weiter mieten oder doch kaufen?
Wer in Miete wohnt, überweist dem Vermieter im Laufe der Jahre hohe Summen, die sich
auch in die eigenen vier Wände investieren lassen könnten.
Bausubstanz & Energieausweis
| Baujahr | 2025 |
|---|---|
| Letzte Sanierung | 2025 |
| Objektzustand | Erstbezug |
| Qualität der Austattung | Gehoben |
| Heizungsart | Gas-Heizung |
| Wesentliche Energieträger | Gas |
| Energieausweis | liegt vor |
Beschreibung des Objekts
Ausstattung
Bad:
- mit Wanne
Wohnzimmer:
-Vinyl-Designfußbodenbelag, offener Küchenbereich, Zugang zum Balkon
Küche:
-offener Küchenbereich im Wohnzimmer
Schlafzimmer:
-Vinyl-Designfußbodenbelag
Abstellraum:
- mit WM-Anschluss
Lage
Das Objekt Leipziger Straße 24 f befindet sich am südlichen Ortseingang der historischen Kreisstadt Delitzsch. Die ruhige Lage ermöglicht kurze Wege zu Behörden, Schulen, Kitas, kulturellen und medizinischen Einrichtungen, sowie zu Geschäften des täglichen Bedarfs. Die Kleinstadt mit ca. 25.000 Einwohnern ist optimal an Bundesautobahn, Bundes- und Landesstraßen angebunden, um Großstädte wie z.B. Leipzig oder Halle/Saale schnell zu erreichen.
Sonstige Angaben
Bei Abschluss eines Mietvertrages wird zwischen beiden Parteien ein Kündigungsausschluss von 2 Jahren vereinbart.
Alle Angaben sind ohne Gewähr und basieren ausschließlich auf Informationen, die uns von unserem Auftraggeber zur Verfügung gestellt wurden. Wir übernehmen keine Gewähr für die Vollständigkeit, Richtigkeit und Aktualität dieser Angaben.
Die Angaben zum Energieausweis können beim Vermieter erfragt haben.
Weitere Dokumente
Mieterselbstauskunft_Renta NEUGrundriss
Grundriss
>
>
Adresse
Leipziger Straße 24 f, 04509 Delitzsch
Interessante Orte
Preis- und Lageinformationen
Preistrend für Bestandsimmobilien in Delitzsch