Anfragen werden nur mit vollständigen Angaben zu Beruf, Familieneinkommen und Personenanzahl berücksichtigt.
Vermietung ausschließlich an Berufstätige oder Rentner.
Objektbeschreibung:
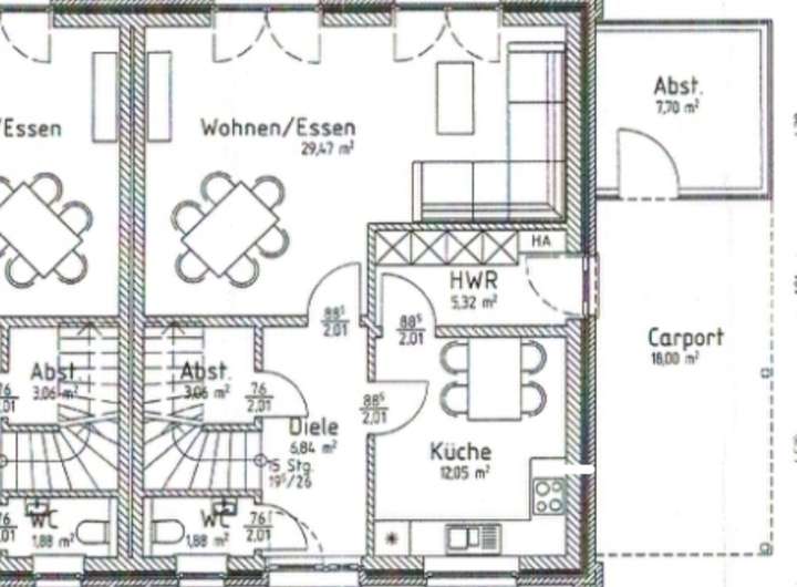
Diese moderne Doppelhaushälfte, erbaut im Jahr 2020, bietet höchsten Wohnkomfort und eine hochwertige Ausstattung.
Ausstattung:
Großzügiges Wohnzimmer mit Terrasse
Einbauküche
Hauswirtschaftsraum mit Abstellmöglichkeit
Gäste-WC
Fußbodenheizung (EG & Bad OG)
Drei Schlafzimmer
Badezimmer mit Wanne & Dusche
Elektrische Rollläden
Carport mit Abstellraum
Mietkonditionen:
Kaltmiete: 1050 €
Nebenkosten: 145 € (inkl. Wasser & Abwasser)
Kaution: 2100 €
Heizung & Strom: müssen vom Mieter selbst angemeldet und bezahlt werden.
Voraussetzungen für die Wohnungsanmietung.
Folgende Unterlagen werden benötigt:
- Gehalts- oder Lohnabrechnungen der letzten drei Monate
- Bestätigung des aktuellen Vermieters über regelmäßige Mietzahlungen
- Aktuelle Schufa-Auskunft
- Vollständig ausgefüllte Mieterselbstauskunft
Doppelhaushälfte mit EBK in Schwaförden zu vermieten
27252 Schwaförden
Die vollständige Adresse der Immobilie erhalten Sie vom Anbieter.
Auf Karte anzeigen
Die vollständige Adresse der Immobilie erhalten Sie vom Anbieter.
Infos
| Haustyp | Doppelhaushaelfte |
|---|---|
| Etagenzahl | 2 |
| Wohnfläche ca. | 114 m2 |
| Grundstücksfläche | 370 m2 |
| Bezugsfrei ab | 1.5.2026 |
| Zimmer | 4 |
| Schlafzimmer | 3 |
| Badezimmer | 1 |
| Haustiere | Nach Vereinbarung |
Kosten
| Kaltmiete |
1.050 € |
|---|---|
| Nebenkosten | + 145 € |
| Heizkosten | keine Angabe |
| Gesamtmiete | 1.195 € (zzgl. Heizkosten) |
| Kaution o. Genossenschaftsanteile | 2100 |
Weiter mieten oder doch kaufen?
Wer in Miete wohnt, überweist dem Vermieter im Laufe der Jahre hohe Summen, die sich
auch in die eigenen vier Wände investieren lassen könnten.
Bausubstanz & Energieausweis
| Baujahr | 2020 |
|---|---|
| Letzte Sanierung | 2020 |
| Objektzustand | Neuwertig |
| Qualität der Austattung | Normal |
| Energieausweis | liegt zur Besichtigung vor |
Beschreibung des Objekts
Lage
Das Objekt liegt in Schwaförden. In der Nähe befindet sich Sulingen. Die Buslinie 123 verkehrt unweit der Immobilie. Fußläufig von der Immobilie entfernt gibt es einen Arzt. Zwei Fitnessstudios, eine Grün- und Parkanlage, eine Postannahmestelle und ein Tierarzt sind ebenso in der Nähe vorhanden. Weiter entfernt finden Sie darüber hinaus mehrere Einkaufsmöglichkeiten und Kindergärten. Interessante Kultureinrichtungen und ein breit gefächertes Abendgestaltungsangebot erreichen Sie schließlich ebenfalls im größeren Umkreis.
Grundriss
IMG_20250323_091518
>
>
IMG_20250325_082553
>
>
IMG_20250325_082708
>
>
IMG_20250325_084318
>
>
IMG_20250325_084216
>
>
Adresse
27252 Schwaförden
Interessante Orte
Preis- und Lageinformationen
Preistrend für Bestandsimmobilien in Schwaförden