Freifinanzierte Doppelhäuser in Bad Fischau - MIETE MIT KAUFOPTION
Mein Zuhause. Zum Ankommen, zum Abschalten, zum Leben, zum Lieben. Genau das ist unser Ziel. Wir brauchen Wohnträume und Lebensräume, in denen sich unsere zukünftigen Mieter wohlfühlen.
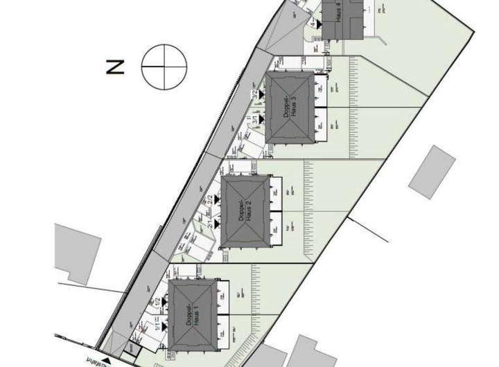
In der lebenswerten Marktgemeinde Bad Fischau errichtet die Neue Eisenstädter eine Reihenhausanlage mit 3 Doppelhäusern und einem Einzelhaus.
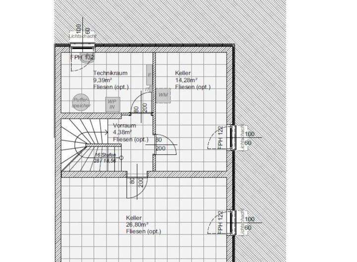
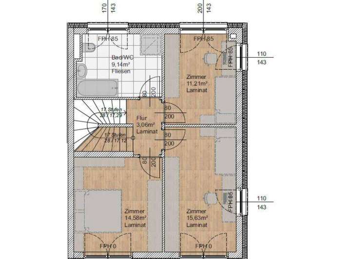
Die Marktgemeinde liegt am Südhang der Thermenlinie, rund 30 Autominuten von Wien entfernt. Das Juwel von Bad Fischau ist das romantische Thermalbad mit seinem historischen Ambiente. Die Häuser untergliedern sich in Keller-, Erd-, Ober- und Dachgeschoss und verfügen alle über einen großzügigen Garten. Ein zusätzliches Highlight ist das Atelier, welches zusätzlich Stauraum im Haus bietet.
Lassen Sie sich diese einmalige Gelegenheit nicht entgehen – Ihr neues Traumhaus wartet auf Sie!
ZUERST MIETE – NACH 10 JAHREN KAUF MÖGLICH
Mit Bezahlung des Finanzierungsbeitrages erwerben Sie das Optionsrecht auf Kauf des gemieteten Reihenhauses gem. den Bestimmungen des Wohnungsgemeinnützigkeitsgesetzes, dem die NEUE EISENSTÄDTER als gemeinnütziger Bauträger unterliegt.
Die Kaufoption kann erstmals nach Ablauf von fünf Jahren nach Abschluss des Mietvertrages ausgeübt werden, indem Sie einen Antrag auf Übertragung des Reihenhauses ins Eigentum stellen. Ein derartiger Antrag kann danach noch zwei Mal jeweils nach Ablauf von fünf Jahren gestellt werden.
Auch die Abwicklung des Kaufes unterliegt den gesetzlichen Bestimmungen des Wohnungsgemeinnützigkeitsgesetzes (Kaufpreisermittlung zum Zeitpunkt des Kaufes etc.).
Freifinanziertes Bauprojekt
Da für die Errichtung des gegenständlichen Objektes keine Wohnbauförderung in Anspruch genommen wird, muss hier:
nicht die österreichische Staatsbürgerschaft gegeben sein (EU-Bürger) keine Einkommensgrenze eingehalten werden. Der Vertragsnehmer hat jedoch den Hauptwohnsitz zu begründen!
Folgende Wohneinheiten stehen im Moment zur Verfügung:
DH 2-1
Wohnfläche: 139,70 m2
Eigengarten: 177,96 m2
Finanzierungsbeitrag: € 68.439,17
Gesamtmiete: 1.930,87
DH 2-2
Wohnfläche: 139,70 m2
Eigengarten: 238,73 m2
Finanzierungsbeitrag: € 73.921,63
Gesamtmiete: 1.941,92
H 4
Wohnfläche: 142,39 m2
Eigengarten: 514,55 m2
Finanzierungsbeitrag: € 85.065,51
Gesamtmiete: 2.343,12
Die monatliche Gesamtmiete setzt sich zusammen
aus der Miete = der Tilgung der Darlehen (Bankdarlehen + EM GBV)aus den Betriebskostenden Instandhaltungs- und Verwaltungskostender gesetzlichen Mehrwertsteuersowie den PKW-Stellplätzen
Die Betriebskosten beinhalten
Gebäudeversicherung Grundsteuer Allgemeinstrom Winterdienst-Privatstraße Kaltwasser und Kanal
Die Kosten für Müll. Strom und Heizung werden von den Betreibern direkt mit dem Mieter verrechnet. Es gibt eine Sammelstelle für den Müllplatz, die Bewohner müssen die Tonnen zu den Terminen an den dafür vorgesehenen Müllsammelplatz bringen.
Für später notwendige Instandsetzungsarbeiten am Gebäude und an den Außenanlagen wird ein „Erhaltungs- und Verbesserungsbeitrag (EVB)“ einbehalten. Der Erhaltungs- und Verbesserungsbeitrag wird ebenso wie die Höhe der Verwaltungskosten nach den gesetzlichen Bestimmungen festgelegt.
Die Gesamtmiete enthält weiters die gesetzliche Mehrwertsteuer.
In der Gesamtmiete ist auch die PKW-Stellplätze enthalten
Unsere Angaben erfolgen aufgrund der Informationen und Unterlagen, welche uns vom Abgeber oder dessen Beauftragten zur Verfügung gestellt wurden und sind ohne Gewähr.
Für Rückfragen und Besichtigung stehe ich Ihnen unter der Tel. Nr. [Telefonnummer entfernt] selbstverständlich gerne zur Verfügung.
Ihre Immobilienträume.
Unser Ziel!
www.realbrokers.at
Wir weisen darauf hin, dass zwischen dem Vermittler und dem zu vermittelnden Dritten ein familiäres oder wirtschaftliches Naheverhältnis besteht.
Der Immo
Freifinanzierte Doppelhäuser in Bad Fischau - MIETE MIT KAUFOPTION
2721 Bad Fischau-Brunn
Die vollständige Adresse der Immobilie erhalten Sie vom Anbieter.
Auf Karte anzeigen
Die vollständige Adresse der Immobilie erhalten Sie vom Anbieter.
Infos
| Haustyp | Doppelhaushaelfte |
|---|---|
| Wohnfläche ca. | 139 m2 |
| Grundstücksfläche | 378,43 m2 |
| Bezugsfrei ab | Herbst 2025 |
| Zimmer | 5 |
| Badezimmer | 1 |
| Garage/Stellplatz | Außenstellplatz |
| Anzahl Garage/Stellplatz | 2 |
Kosten
| Kaltmiete |
1.942 € |
|---|---|
| Nebenkosten | keine Angabe |
| Heizkosten | keine Angabe |
| Gesamtmiete | 1.942 € (zzgl. Nebenkosten) |
Weiter mieten oder doch kaufen?
Wer in Miete wohnt, überweist dem Vermieter im Laufe der Jahre hohe Summen, die sich
auch in die eigenen vier Wände investieren lassen könnten.
Bausubstanz & Energieausweis
| Baujahr | 2024 |
|---|---|
| Objektzustand | Neuwertig |
| Heizungsart | Fußbodenheizung |