Sichern Sie sich die letzte Erdgeschoss-Wohnung in unserem Neubau!
Willkommen in Ihrem neuen Zuhause! In der Ziegelackerstraße 5 und 7 entstanden 16 moderne 3-Zimmer-Wohnungen, die keine Wünsche offenlassen. Diese exklusiven Erstbezug-Wohnungen bieten Ihnen höchsten Wohnkomfort und eine erstklassige Ausstattung.
Ideal für Familien, Paare oder Singles, die mehr Platz wünschen.
Die Tiefgarage bietet komfortables Parken direkt im Haus.
Klimafreundlich und zukunftsorientiert: Mit kostengünstiger Pelletheizung und begrünter Fassade für ein gesundes Wohnklima und ein gutes Gewissen
Moderne Neubauwohnung in klimafreundlichem Haus - Barrierearm
Ziegelackerstr. 5,
95030 Hof
Auf Karte anzeigen
Infos
| Wohnungskategorie | Erdgeschosswohnung |
|---|---|
| Etage | 0 von 3 |
| Wohnfläche ca. | 76 m2 |
| Bezugsfrei ab | ab sofort |
| Zimmer | 3 |
| Schlafzimmer | 1 |
| Badezimmer | 1 |
| Haustiere | Nach Vereinbarung |
| Garage/Stellplatz | Tiefgarage |
| Anzahl Garage/Stellplatz | 1 |
Kosten
| Kaltmiete |
917 € |
|---|---|
| Nebenkosten | + 95 € |
| Heizkosten | + 95 € |
| Gesamtmiete | 1.167 € (zzgl. Heizkosten) |
| Miete für Garage/Stellplatz | 60 € |
| Kaution o. Genossenschaftsanteile | Genossenschaftsanteile 800,00 |
Weiter mieten oder doch kaufen?
Wer in Miete wohnt, überweist dem Vermieter im Laufe der Jahre hohe Summen, die sich
auch in die eigenen vier Wände investieren lassen könnten.
Bausubstanz & Energieausweis
| Baujahr | 2025 |
|---|---|
| Objektzustand | Erstbezug |
| Qualität der Austattung | Gehoben |
| Heizungsart | Zentralheizung |
| Wesentliche Energieträger | Pelletheizung |
| Energieausweis | liegt vor |
| Energieausweistyp | Bedarfsausweis |
| Energieverbrauchskennwert | 74,0 kWh/(m²*a) |
| Energieeffizienzklasse | B |
74,0
kWh/(m²*a)
Energieeffizienzklasse B
- A+
- A
- B
- C
- D
- E
- F
- G
- H
- 0
- 25
- 50
- 75
- 100
- 125
- 150
- 175
- 200
- 225
- >250
Beschreibung des Objekts
Ausstattung
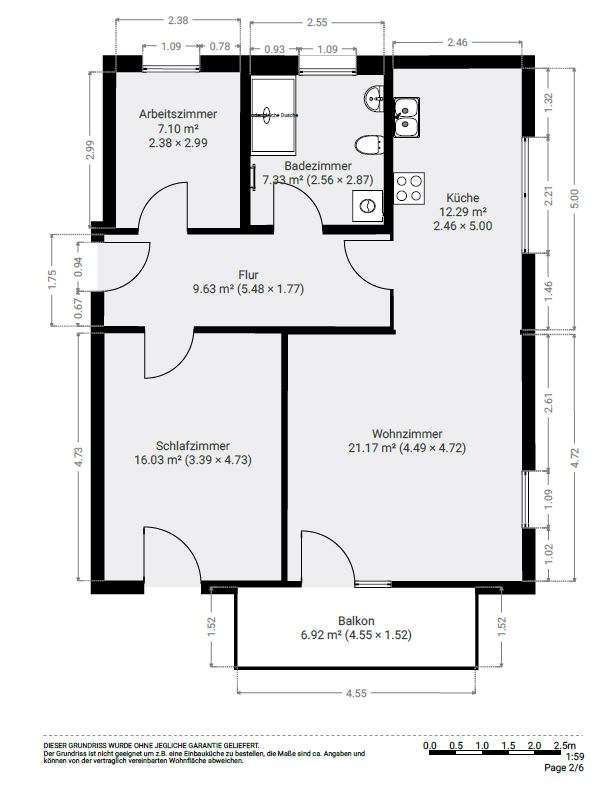
Die Wohnung besticht durch ihre großzügige Raumaufteilung und eine offene Küche, die nahtlos in das helle Wohnzimmer übergeht. Vom Wohnzimmer aus gelangen Sie direkt auf den Balkon. Zudem verfügt die Wohnung über ein geräumiges Schlafzimmer mit bodentiefem Fenster, sowie einem Arbeitszimmer, das ideal für konzentriertes Arbeiten oder kreative Projekte geeignet ist.
Das Badezimmer ist mit einer bodengleichen Dusche ausgestattet und bietet zudem einen Stellplatz für die Waschmaschine.
In allen Räumen sorgt eine Fußbodenheizung für behagliche Wärme. Der hochwertige Echtholzparkettboden verleiht der Wohnung eine elegante und warme Atmosphäre.
Zusätzlich verfügt jede Wohnung über einen eigenen Stellplatz in der Tiefgarage.
Alle Balkone sind für das Anbringen von Balkonkraftwerken geeignet, die nötigen Steckdosen sind bereits vorhanden.
Lage
Die Ziegelackerstraße liegt im Wohngebiet Neuhof, am nordwestlichen Stadtrand von Hof. Diese Lage bietet hervorragende Einkaufsmöglichkeiten, Schulen und Kindergärten sowie optimale Stadtbusverbindungen. Das Theater und die Freiheitshalle sind bequem in wenigen Minuten zu Fuß erreichbar.
Sonstige Angaben
Serviceleistungen:
Haus- und Gehsteigreinigung, sowie Winterdienst, Hausmeisterbetreuung und 24-Stunden-Notdienst auch an den Wochenenden und Feiertagen.
Weitere Dokumente
Wohnungsbewerbungsbogen_01_202Grundriss
Neubau EG Grundriss
>
>
Adresse
Ziegelackerstr. 5, 95030 Hof
Interessante Orte
Preis- und Lageinformationen
Preistrend für Bestandsimmobilien in Innenstadt