Attraktive Immobilie in Planung. Mietkauf möglich. Machen Sie den Check: Jetzt prüfen ob Sie Miet-Kauf berechtigt sind!
Raus aus der Alt-Immobilie - Rein in die eigenen vier Wände
- Ohne Eigenkapital
- Trotz Schulden
Vereinbaren Sie jetzt Ihren Termin mit unseren Miet-Kauf-Spezialisten!
Preiswerte Mietkaufimmobilie abzugeben. Ohne Eigenkapital möglich.
41844 Wegberg
Die vollständige Adresse der Immobilie erhalten Sie vom Anbieter.
Auf Karte anzeigen
Die vollständige Adresse der Immobilie erhalten Sie vom Anbieter.
Infos
| Haustyp | Einfamilienhaus |
|---|---|
| Wohnfläche ca. | 126 m2 |
| Nutzfläche | 0 m2 |
| Grundstücksfläche | 530 m2 |
| Zimmer | 3 |
| Schlafzimmer | 3 |
| Badezimmer | 1 |
| Anzahl Garage/Stellplatz | 0 |
Kosten
| Kaltmiete |
1.850 € |
|---|---|
| Nebenkosten | keine Angabe |
| Heizkosten | keine Angabe |
| Gesamtmiete | 1.850 € |
Weiter mieten oder doch kaufen?
Wer in Miete wohnt, überweist dem Vermieter im Laufe der Jahre hohe Summen, die sich
auch in die eigenen vier Wände investieren lassen könnten.
Bausubstanz & Energieausweis
| Baujahr | 2026 |
|---|---|
| Qualität der Austattung | Gehoben |
| Heizungsart | Wärmepumpe |
Beschreibung des Objekts
Ausstattung
THINK WHITE – Do it yourself.
- Fertige Gebäudehülle – du entscheidest über den Innenausbau
- Maximale Individualität – für kreative Köpfe & Macher
- Ideal für Eigenleistung – handwerkliches Geschick spart bares Geld
- Optimierte Grundrisse – smarte Wohnkonzepte für flexible Gestaltung
- Hochwertige Bauweise – modern, nachhaltig & energieeffizient
- Zugang zu staatlichen Förderprogrammen – clever finanzieren & sparen
Für alle, die ihr Zuhause selbst gestalten wollen!
Lage
Der Grundstückspreis ist im Angebot enthalten zzgl. der Baunebenkosten, die abhängig sind von der Lage, der Größe und kann daher variieren.
Das Grundstücksangebot (Verkauf/Vermittlung) erfolgt über einen kooperierenden Makler gem. §34cGewO.
Sie suchen für Ihr Traumhaus noch Ihr Wunschgrundstück?
Durch unsere Kooperationspartner bekommen auch Sie sicherlich für Ihr Bauvorhaben das passende Grundstück.
Sprechen Sie uns an.
Die von uns gemachten Informationen beruhen auf Angaben des Verkäufers bzw. der Verkäuferin. Für die Richtigkeit und Vollständigkeit der Angaben kann keine Gewähr bzw. Haftung übernommen werden. Ein Zwischenverkauf und Irrtümer sind vorbehalten.
Sonstige Angaben
Die Finanzierung Ihres Traumhauses ist ohne Eigenkapital möglich, bestehende Schulden sind kein Hindernis – Bonität vorausgesetzt.
Rufen Sie noch heute an und fragen Sie nach unserem Miet-Kauf-Modell.
Die dargestellten Bilder und Grundrisse sind Beispiele und können Sonderausstattungen enthalten, die nicht im Preis enthalten sind. Die Kaufnebenkosten sind nicht im Preis enthalten. Alle Angaben ohne Gewähr.
Bitte haben Sie Verständnis, dass nur vollständig ausgefüllte Anfragen bearbeitet werden können.
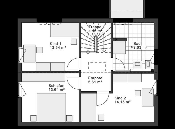
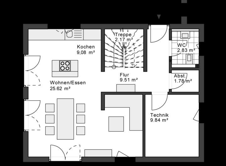
Grundriss
Grundriss EG
>
>
Grundriss OG
>
>
Adresse
41844 Wegberg
Interessante Orte
Preis- und Lageinformationen
Preistrend für Bestandsimmobilien in Wegberg