Willkommen in einem einzigartigen Zuhause, das Tradition und modernen Luxus auf unvergleichliche Weise vereint: Dieses aufwendig sanierte Fachwerkhaus aus der Jahrhundertwende präsentiert sich als stilvolle Rückzugsoase im Herzen von Lengerich – eingebettet in ein weitläufiges, grünes Grundstück von 1.000 m².
Erstbezug nach aufwendiger Kernsanierung:
Ursprüngliche Holzbalken und charmante Details der alten Baukunst wurden sorgfältig erhalten und mit modernster Wohntechnik kombiniert. Hochwertige Materialien, eine luxuriöse Innenausstattung und durchdachte Raumkonzepte schaffen ein einmaliges Wohnerlebnis, das höchsten Ansprüchen gerecht wird.
Raumaufteilung und Highlights:
- 8 großzügige Zimmer, lichtdurchflutet durch Sprossenfenster
- 2 elegante Bäder
- Stilvolle offene Küche mit Wohn- und Essbereich
- Hochwertige Keramikböden und Holzdielen im Obergeschoss
- Fußbodenheizung im gesamten Haus
- Liebevoll angelegter Gartenbereich mit Platz für Ruhe und Geselligkeit
- Doppelgarage und großzügige Außenstellflächen
Wir freuen uns auf Ihre aussagekräftige Anfrage und einen persönlichen Besichtigungstermin – erleben Sie Wohnen auf höchstem Niveau!
Historisches Fachwerkjuwel im Grünen – exklusiv modernisiert und bezugsbereit
49525 Lengerich
Die vollständige Adresse der Immobilie erhalten Sie vom Anbieter.
Auf Karte anzeigen
Die vollständige Adresse der Immobilie erhalten Sie vom Anbieter.
Infos
| Haustyp | Einfamilienhaus |
|---|---|
| Etagenzahl | 2 |
| Wohnfläche ca. | 194 m2 |
| Grundstücksfläche | 1.000 m2 |
| Bezugsfrei ab | 13.9.2025 |
| Zimmer | 8 |
| Schlafzimmer | 3 |
| Badezimmer | 2 |
| Haustiere | Nach Vereinbarung |
| Garage/Stellplatz | Garage |
| Anzahl Garage/Stellplatz | 4 |
Kosten
| Kaltmiete |
2.600 € |
|---|---|
| Nebenkosten | + 200 € |
| Heizkosten | in Nebenkosten enthalten |
| Gesamtmiete | 2.800 € |
| Kaution o. Genossenschaftsanteile | 5200 |
Weiter mieten oder doch kaufen?
Wer in Miete wohnt, überweist dem Vermieter im Laufe der Jahre hohe Summen, die sich
auch in die eigenen vier Wände investieren lassen könnten.
Bausubstanz & Energieausweis
| Letzte Sanierung | 2025 |
|---|---|
| Objektzustand | Erstbezug |
| Qualität der Austattung | Luxus |
| Heizungsart | Fußbodenheizung |
| Wesentliche Energieträger | Erdwärme |
Beschreibung des Objekts
Lage
Idyllisch im Grünen gelegen und dennoch perfekt angebunden: Lengerich liegt strategisch günstig zwischen Münster (ca. 30 km südwestlich) und Osnabrück (ca. 16 km nordöstlich) an der A1. Über den nahegelegenen Bahnhof auch mit den Bahnlinien RB66 und RE2 hervorragend erreichbar. Der Flughafen Münster/Osnabrück (FMO) ist etwa 18 km entfernt . Diese Lage macht Lengerich besonders attraktiv für Pendler, die die Ruhe des ländlichen Raums schätzen und dennoch kurze Wege zu den urbanen Zentren bevorzugen.
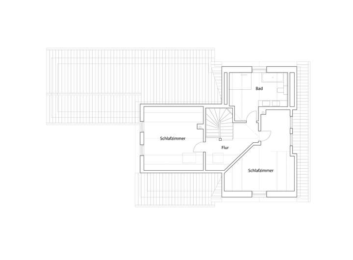
Grundriss
JohannemannsStraße 7
>
>
JohannemannsStraße 71
>
>
Adresse
49525 Lengerich
Interessante Orte
Preis- und Lageinformationen
Preistrend für Bestandsimmobilien in Lengerich