Zum Hauptinhalt springen
1/5
2/5
3/5
4/5
5/5
Junge erwachsene Frau in urbaner Umgebung, in die Ferne schauend. Mit Angebot zu Tagesgeldkonto im Overlay.
Tagesgeldkonto
Neu: jetzt mit 1,00% Zinsen p.a.
Sonderzinsen sichern!

Mach aus deiner Miete Wohneigentum!

95352 Marktleugast
Die vollständige Adresse der Immobilie erhalten Sie vom Anbieter.
Auf Karte anzeigen
Logo ImmoScout24 Logo ImmoScout24

Infos

Haustyp Einfamilienhaus
Wohnfläche ca. 120 m2
Nutzfläche 0 m2
Grundstücksfläche 681 m2
Zimmer 3
Schlafzimmer 3
Badezimmer 1
Anzahl Garage/Stellplatz 0

Kosten

Kaltmiete 1.523 €
Nebenkosten keine Angabe
Heizkosten keine Angabe
Gesamtmiete 1.523 €

Weiter mieten oder doch kaufen?

Wer in Miete wohnt, überweist dem Vermieter im Laufe der Jahre hohe Summen, die sich auch in die eigenen vier Wände investieren lassen könnten.
In Ihrem Bundesland müssen Sie mit % Nebenkosten rechnen. Diese werden von dem finalen Betrag abgezogen.

Ihr Ergebnis

Mit diesen Zahlen können wir nicht rechnen.
Glückwunsch!
Sie können sich Ihr Traumzuhause im Wert von 308.894 € leisten!
Bitte geben Sie ein höheres Eigenkapital an. In der aktuell von Ihnen eingegebenen Konstellation sind die angenommenen Nebenkosten höher als das von Ihnen eingebrachte Eigenkapital.
*Basierend auf einem Zinssatz von % / % anfängliche Tilgung
Der Rechner soll Sie bei der Beantwortung der Frage: „Wie viel Haus kann ich mir eigentlich leisten?“ unterstützen. Das Ergebnis wird auf Grundlage der von Ihnen eingegebenen Daten und angenommenen pauschalisierten Werten errechnet. Für eine auf Sie zugeschnittene Aussage empfehlen wir Ihnen eine persönliche Beratung.

Details zur Berechnung

Bausubstanz & Energieausweis

Baujahr 2025
Qualität der Austattung Gehoben
Heizungsart Wärmepumpe

Beschreibung des Objekts

                FEELS LIKE HOME. LOOKS LIKE YOU.

Ein Zuhause, das deine Handschrift trägt – individuell, durchdacht und bezahlbar. 
Dein Traum vom Eigenheim ist näher, als du denkst. 
Warum warten? 

START YOUR HOME JOURNEY TODAY.
            

Lage

                Das erschlossene Grundstück liegt im Gemeindeteil Mannsflur. In nur wenigen Minuten sind Sie in Marktleugast mit Einkaufsmöglichkeiten. Genießen Sie in Ihrer Freizeit die Natur rund um den Ort.
                

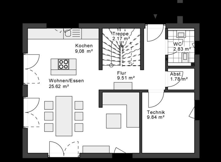
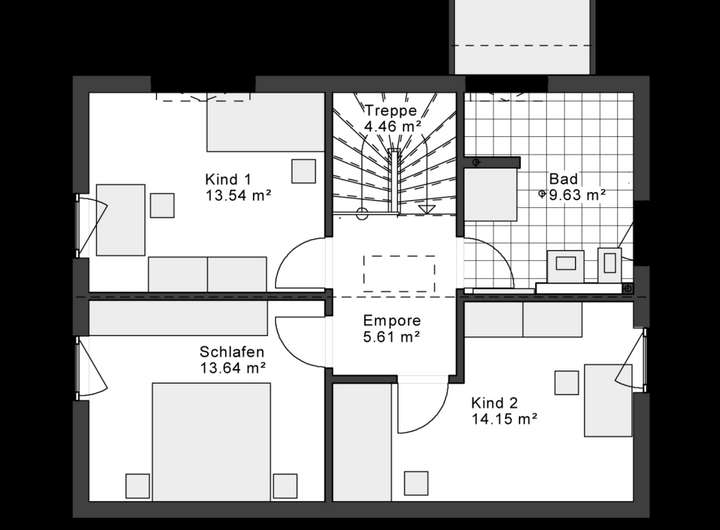
Grundriss

Grundriss EG Grundriss EG >
Grundriss OG Grundriss OG >

Adresse

95352 Marktleugast

Interessante Orte

Bäckereien
Schulen
Ärzte

Preis- und Lageinformationen

Preistrend für Bestandsimmobilien in Marktleugast
Sept. 2022 Sept. 2023 Sept. 2024 Sept. 2025 7,08 €/m² 7,50 €/m² 5,93 % 7,47 %

Dieser Zeitraum ist nur für eingeloggte User sichtbar.

Jetzt einloggen

Ansprechpartner