Zum Hauptinhalt springen
1/7
2/7
3/7
4/7
5/7
6/7
7/7
Junge erwachsene Frau in urbaner Umgebung, in die Ferne schauend. Mit Angebot zu Tagesgeldkonto im Overlay.
Tagesgeldkonto
Neu: jetzt mit 1,00% Zinsen p.a.
Sonderzinsen sichern!

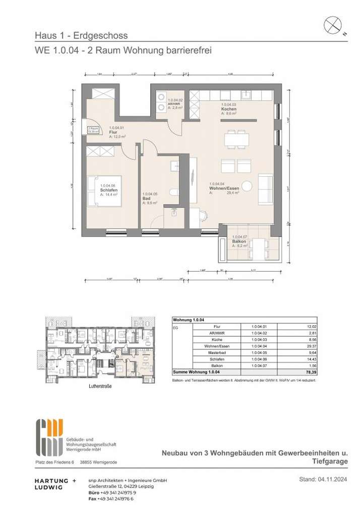
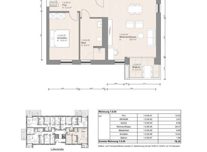
*Neubauprojekt Lutherstraße* - 2-Raum-Wohnung

Lutherstraße 6, 38855 Wernigerode
Auf Karte anzeigen
Logo ImmoScout24 Logo ImmoScout24

Infos

Wohnungskategorie Etagenwohnung
Etage 1 von
Wohnfläche ca. 78 m2
Bezugsfrei ab sofort
Zimmer 2
Haustiere Nach Vereinbarung

Kosten

Kaltmiete 1.058 €
Nebenkosten + 205 €
Heizkosten keine Angabe
Gesamtmiete 1.264 €
Kaution o. Genossenschaftsanteile 3174.81

Weiter mieten oder doch kaufen?

Wer in Miete wohnt, überweist dem Vermieter im Laufe der Jahre hohe Summen, die sich auch in die eigenen vier Wände investieren lassen könnten.
In Ihrem Bundesland müssen Sie mit % Nebenkosten rechnen. Diese werden von dem finalen Betrag abgezogen.

Ihr Ergebnis

Mit diesen Zahlen können wir nicht rechnen.
Glückwunsch!
Sie können sich Ihr Traumzuhause im Wert von 308.894 € leisten!
Bitte geben Sie ein höheres Eigenkapital an. In der aktuell von Ihnen eingegebenen Konstellation sind die angenommenen Nebenkosten höher als das von Ihnen eingebrachte Eigenkapital.
*Basierend auf einem Zinssatz von % / % anfängliche Tilgung
Der Rechner soll Sie bei der Beantwortung der Frage: „Wie viel Haus kann ich mir eigentlich leisten?“ unterstützen. Das Ergebnis wird auf Grundlage der von Ihnen eingegebenen Daten und angenommenen pauschalisierten Werten errechnet. Für eine auf Sie zugeschnittene Aussage empfehlen wir Ihnen eine persönliche Beratung.

Details zur Berechnung

Bausubstanz & Energieausweis

Baujahr 2025
Objektzustand Erstbezug
Qualität der Austattung Gehoben

Ausstattung

                -Aufzug
-Abstellraum
-Fußbodenheizung
-Balkon
-Tageslichtbad mit ebenerdiger Dusche und Badewanne
-Designbelag in Holzoptik
-weiße Innentüren
-verputzte Wände
-Keller
-optional mit Tiefgaragenstellplatz
               

Sonstige Angaben

                Neubauobjekt, Bezug ab Juni 2025
Zwischenzeitliche Vermietungen behalten wir uns vor!
           

Grundriss

EG 1.0.04 EG 1.0.04 >

Adresse

Lutherstraße 6, 38855 Wernigerode

Interessante Orte

Bäckereien
Schulen
Ärzte

Preis- und Lageinformationen

Preistrend für Bestandsimmobilien in Wernigerode
Sept. 2022 Sept. 2023 Sept. 2024 Sept. 2025 7,02 €/m² 7,25 €/m² 3,28 % 3,45 %

Dieser Zeitraum ist nur für eingeloggte User sichtbar.

Jetzt einloggen

Ansprechpartner