Erwerben Sie jetzt Ihr neues Zuhause und zahlen Sie eine Miete, die Ihnen gehört.
Hier fängt Ihr Traum an!
Miet-Kauf möglich.
Altschulden oder Verbindlichkeiten kein Hindernis. (Bonität vorausgesetzt)
Sie möchten erfahren ob Sie Miet-Kauf berechtigt sind?
Unser Miet-Kauf-Experte prüft dies gerne bei einem persönlichen Gespräch.
Jetzt mit Miet | Kauf den Traum vom Eigenheim erfüllen!
36355 Grebenhain
Die vollständige Adresse der Immobilie erhalten Sie vom Anbieter.
Auf Karte anzeigen
Die vollständige Adresse der Immobilie erhalten Sie vom Anbieter.
Infos
| Haustyp | Einfamilienhaus |
|---|---|
| Wohnfläche ca. | 140 m2 |
| Nutzfläche | 0 m2 |
| Grundstücksfläche | 430 m2 |
| Zimmer | 4 |
| Schlafzimmer | 3 |
| Badezimmer | 1 |
| Anzahl Garage/Stellplatz | 0 |
Kosten
| Kaltmiete |
1.330 € |
|---|---|
| Nebenkosten | keine Angabe |
| Heizkosten | keine Angabe |
| Gesamtmiete | 1.330 € |
Weiter mieten oder doch kaufen?
Wer in Miete wohnt, überweist dem Vermieter im Laufe der Jahre hohe Summen, die sich
auch in die eigenen vier Wände investieren lassen könnten.
Bausubstanz & Energieausweis
| Baujahr | 2025 |
|---|---|
| Qualität der Austattung | Gehoben |
| Heizungsart | Wärmepumpe |
Beschreibung des Objekts
Ausstattung
Jedes unserer Fertighäuser wird speziell für Sie geplant und ist perfekt auf die Anforderungen und Vorgaben Ihres Bauvorhabens angepasst – Bebauungspläne, eine besondere Grundstückslage und die gewünschten Eigenleistungen werden im Detail geprüft und berücksichtigt.
Jedes technik-fertige White & Black Traumhaus verfügt standardmäßig über:
- Heizungstechnik auf Ihre Wünsche hin konfigurierbar
- Fußbodenheizung mit Kühleffekt im Sommer
- Elektroinstallation fertig hergestellt
- Hochwertige Ausstattung mit Markenfabrikaten
- 3-Scheiben-Wärmeschutzglas
- Rollläden im Standard enthalten, auf Wunsch auch mit Elektroantrieb lieferbar
- Schwimmender Estrich mit Wärmedämmung verlegt
- Sanitär-Rohinstallation enthalten
In Eigenleistung von Ihnen sind folgende Gewerke selbst auszuführen:
Malern
Fliesen
Bodenbeläge
Innentüren
Sanitärobjekte
Diesem Angebot liegt die beliebte White & Black-Ausbaustufe "technik-fertig" zugrunde. Diese kann selbstverständlich noch entsprechend Ihrer geplanten Eigenleistungen angepasst werden.
White & Black ist ein Home Concept der Firmen Schwabenhaus & Danhaus.
Lage
Grebenhain liegt im Herzen des hessischen Vogelsbergs und zeichnet sich durch seine idyllische, naturnahe Lage aus. Die Immobilie befindet sich in einer ruhigen, gepflegten Wohngegend, die eine angenehme Nachbarschaft und eine hohe Lebensqualität bietet.
In der näheren Umgebung finden Sie alles, was das tägliche Leben erleichtert: Einkaufsmöglichkeiten, Supermärkte, Apotheken sowie Schulen und Kindergärten sind bequem erreichbar. Die Region ist bekannt für ihre vielfältigen Wander- und Radwege, die direkt vor der Haustür beginnen und zu Erkundungen in der Natur einladen. Das nahegelegene Vogelsberg-Gebirge bietet zahlreiche Freizeitmöglichkeiten wie Wandern, Mountainbiking und Naturerkundungen.
Die gute Anbindung an die Autobahnen A5 und A45 sowie an den öffentlichen Nahverkehr ermöglicht eine schnelle Erreichbarkeit der umliegenden Städte wie Fulda, Gießen oder Bad Hersfeld. Grebenhain verbindet somit die Ruhe und Schönheit der Natur mit einer guten Infrastruktur und einer lebendigen Gemeinschaft.
Diese Lage ist ideal für alle, die das ländliche Leben in einer naturnahen Umgebung schätzen, ohne auf eine gute Erreichbarkeit verzichten zu wollen.
Sonstige Angaben
Vereinbare einen persönlichen Beratungstermin, um über unser Miet-Kauf Modell zu sprechen.
Bitte beachte, dass die dargestellten Bilder und Grundrisse nur beispielhaft sind und unter Umständen Sonderbauteile enthalten, die nicht im angegebenen Preis enthalten sind.
Hab außerdem bitte Verständnis dafür, dass weitere Details zum angebotenen Grundstück erst nach einem persönlichen Gespräch bekanntgegeben werden und nur vollständige Anfragen bearbeitet werden können.
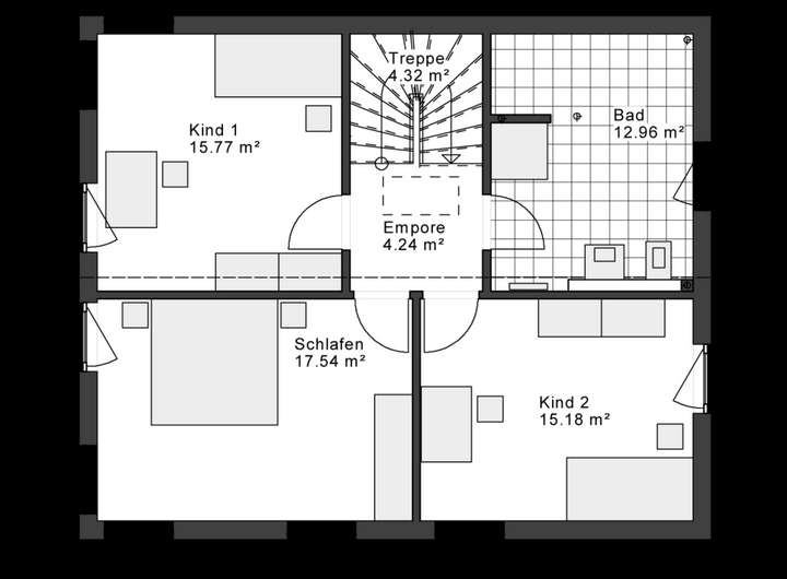
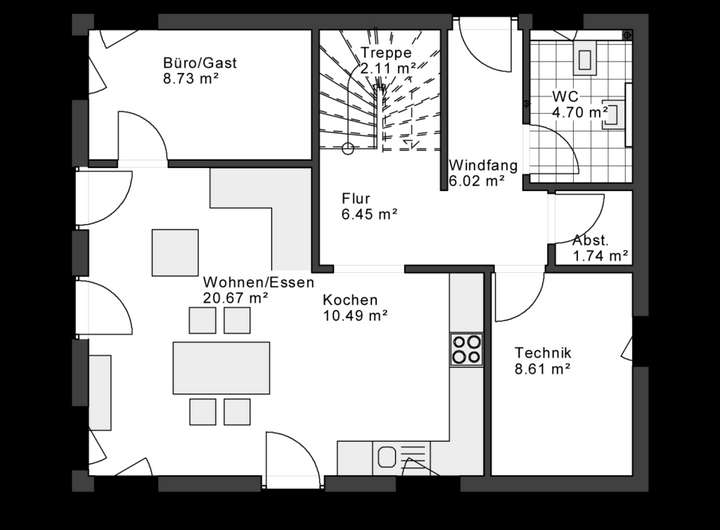
Grundriss
Grundriss EG
>
>
Grundriss OG
>
>
Adresse
36355 Grebenhain
Interessante Orte
Preis- und Lageinformationen
Preistrend für Bestandsimmobilien in Grebenhain