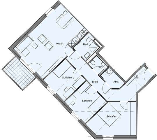
Diese großzügige und modern geschnittene 4-Zimmer-Wohnung befindet sich in einem Neubau in Köln-Merheim und bietet mit 100,23 m² Wohnfläche viel Platz und Komfort – sowohl für Familien als auch für Wohngemeinschaften.
Die Wohnung überzeugt durch ihren durchdachten Grundriss: Drei separate Schlafzimmer, ein helles und großzügiges Wohnzimmer mit Zugang zum Balkon, eine separate Küche, ein modernes Tageslichtbad sowie ein zusätzliches Gäste-WC bieten ideale Wohnbedingungen. Eine praktische Abstellkammer in der Wohnung sorgt für zusätzlichen Stauraum. Die zentrale Diele verbindet alle Räume und schafft eine angenehme Wohnatmosphäre.
Der Balkon lädt zum Verweilen im Freien ein und rundet das Wohnkonzept ab.
ERSTBEZUG in Köln-Merheim: 4-Zimmer-Wohnung – ideal für Familie oder WG
Ostmerheimer Str. 214,
51109 Köln
Auf Karte anzeigen
Infos
| Wohnungskategorie | Etagenwohnung |
|---|---|
| Etage | 1 von 7 |
| Wohnfläche ca. | 100 m2 |
| Bezugsfrei ab | 15.08.2025 |
| Zimmer | 4 |
| Schlafzimmer | 3 |
| Badezimmer | 1 |
| Haustiere | Nach Vereinbarung |
Kosten
| Kaltmiete |
1.490 € |
|---|---|
| Nebenkosten | + 215 € |
| Heizkosten | in Nebenkosten enthalten |
| Gesamtmiete | 1.705 € |
| Kaution o. Genossenschaftsanteile | 4470 |
Weiter mieten oder doch kaufen?
Wer in Miete wohnt, überweist dem Vermieter im Laufe der Jahre hohe Summen, die sich
auch in die eigenen vier Wände investieren lassen könnten.
Bausubstanz & Energieausweis
| Baujahr | 2025 |
|---|---|
| Objektzustand | Erstbezug |
| Qualität der Austattung | Normal |
| Heizungsart | Elektro-Heizung |
| Wesentliche Energieträger | Strom |
| Energieausweis | liegt vor |
| Energieausweistyp | Bedarfsausweis |
| Energieverbrauchskennwert | 21,1 kWh/(m²*a) |
| Energieeffizienzklasse | A+ |
21,1
kWh/(m²*a)
Energieeffizienzklasse A+
- A+
- A
- B
- C
- D
- E
- F
- G
- H
- 0
- 25
- 50
- 75
- 100
- 125
- 150
- 175
- 200
- 225
- >250
Beschreibung des Objekts
Ausstattung
Hier nur einige Ausstattungsmerkmale:
- ERSTBEZUG IM NEUBAU!
- moderne 4 Zimmerwohnung
- Balkon
- bodentiefe Fenster
- ein direkter Internet Glasfaseranschluss mit bis zu 1 Gigabit ist in der Wohnung verlegt
- Vinyl-Designbelag in Holzdielenoptik
- modernes Duschbad
- Aufzug
- Waschmöglichkeiten im Haus (Nutzung gegen Gebühr)
Lage
Die Ostmerheimer Straße 214 befindet sich im Stadtteil Merheim im rechtsrheinischen Köln. Die Lage zeichnet sich durch eine ruhige Wohnumgebung mit guter Anbindung an die Kölner Innenstadt und umliegende Stadtteile aus. Merheim ist ein überwiegend von Wohnbebauung geprägter Stadtteil mit einer Mischung aus Mehrfamilienhäusern und Einfamilienhäusern. Die Umgebung bietet eine hohe Lebensqualität mit zahlreichen Grünflächen und Naherholungsmöglichkeiten. In der Nähe befinden sich Einkaufsmöglichkeiten für den täglichen Bedarf, Schulen und Kindergärten. Die Anbindung an den öffentlichen Nahverkehr ermöglicht eine schnelle Erreichbarkeit der Innenstadt und anderer Stadtteile. • Öffentliche Verkehrsmittel: Die Haltestelle „Ostmerheimer Str.“ wird von den Buslinien 157 und 158 bedient (unmittelbar vor der Tür). Weitere nahegelegene Haltestellen sind „Broichstraße“ und „Merheim“ (ca. 5 Minuten Fußweg). • Straßenanbindung: Über die nahegelegene Ostheimer Straße besteht Anschluss an die Bundesstraße 8, die eine wichtige Verkehrsachse in Köln darstellt. Die Autobahnen A3, A4 und A559 sind über die benachbarten Stadtteile schnell erreichbar. In unmittelbarer Nähe befinden sich verschiedene Einrichtungen des täglichen Bedarfs, darunter Supermärkte, Apotheken und Ärzte. Das Stadtteilzentrum von Merheim bietet zudem weitere Einkaufsmöglichkeiten, Restaurants und Cafés. Für Familien gibt es mehrere Schulen und Kindergärten in der Umgebung. Die Nähe zum Klinikum Merheim sorgt für eine gute medizinische Versorgung. Merheim verfügt über mehrere Grünflächen und Parks, die zu Spaziergängen und Freizeitaktivitäten einladen. Der Bereich um die Ostmerheimer Straße 214 a-f ist Teil eines vorhabenbezogenen Bebauungsplans, der eine städtebauliche Entwicklung und Verbesserung der Infrastruktur in diesem Gebiet vorsieht. Insgesamt bietet die Ostmerheimer Straße 214 in Köln-Merheim eine attraktive Lage für Wohnzwecke mit guter Anbindung an den öffentlichen Nahverkehr, einer soliden Infrastruktur und einer hohen Lebensqualität.
Sonstige Angaben
Zusätzlich zur Wohnung kann Folgendes optional dazu gemietet werden:
- TG-PKW-Stellplatz
- TG-Fahrradstellplatz
- Kellerraum
- Einbauküche (nach Rücksprache)
Grundriss
Grundriss
>
>
Adresse
Ostmerheimer Str. 214, 51109 Köln
Interessante Orte
Preis- und Lageinformationen
Preistrend für Bestandsimmobilien in Merheim