Diese einmalige Penthousewohnung ist eine wahre Rarität. Hier finden Sie Ihr persönlichen Raum der Entspannung im Herzen von Gerlingen nicht unweit des Rathauses. Dabei lässt diese Immobilie keine Wünsche offen.
Die Wohnung befindet sich im Obergeschoss eines primär gewerblich genutzten Objektes. Über einen Personenaufzug gelangen Sie in den dritten Stock.
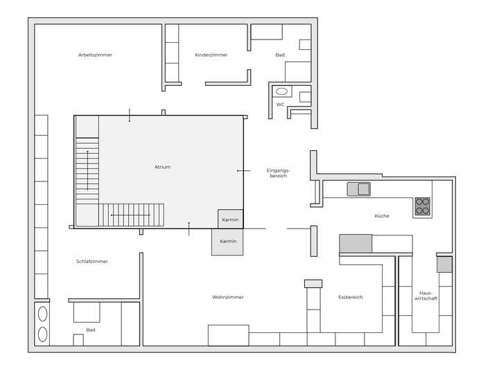
Bereits beim Betreten überzeugt die Wohnung durch ihre einmalige Bauweise. Alle Räume der Wohnung sind um ein großzügiges Atrium herum gebaut, welches von drei Seiten betreten werden kann.
Vom Eingangsbereich, in welchem bereits zwei Garderoben eingebaut sind, gelangt man nicht nur direkt in das separate Gäste-WC, man kann ebenso in beiden Richtungen die weiteren Räumlichkeiten der Wohnung betreten.
Auf der linken Seite gelangt man in die voll ausgestattete neuwertige Küche. Sie verfügt nicht nur über ein zusätzliches Oberlicht, von ihr kann man zudem den Hauswirtschaftsraum betreten, welcher ausreichend Stauraum für Vorräte und Wasch- bzw. Trockengeräte bietet. Geht man von der Küche aus in der selben Richtung weiter erreicht man den weitläufigen Wohn- und Essbereich. Hier hat man einen traumhaften Blick auf den offenen Kamin, der für besondere Gemütlichkeit sorgt. Auch dieser Raum ist mit Einbauschränken und damit ausreichend Stauraum versehen.
Vom Wohn- und Essbereich gelangt man, als letzten Raum dieser Seite, zum elterlichen Schlafzimmer oder Master-Bedroom mit weiteren Einbauschränken und direkt angrenzendem En-Suite Tageslichtbad. Welches über eine Dusche, eine große Badewanne, ein WC sowie zwei Waschbecken verfügt.
Über einen mit weiteren Einbauschränken versehenen Gang gelangt man am Atrium entlang zum nächsten Raum. Dieser wurde zum Atrium hin geöffnet und ist daher besonders hell, mit tollem Blick in das Atrium. Dieser Raum eignet sich hervorragend als Büro.
Geht man am Atrium weiter entlang, gelangt man zum Kinder- oder Gästezimmer sowie dem zweiten Tageslichtbad mit Dusche und WC, welche ebenso wie alle anderen Räume mit Einbauschränken versehen sind.
Von dort gelangt man zum Abschluss der Runde wieder in den Eingangsbereich. Hier und an einer weiteren Stelle kann man das 35m² große Atrium betreten. Dieses versorg die gesamte Wohnung mit Tageslicht, verfügt über Markisen und einen weiteren Außenkarmin. Dieser Ort lädt zum Sonnen, entspannen und gemütlichen Beisammensein ein.
Das Atrium bietet zusätzlich den Zugang zur 180m² großen Dachterrasse. Hier können Sie über den Dächern von Gerlingen Ihre eigene Oase einrichten und die Ruhe genießen. Die Dachterrasse überzeugt nicht nur durch ihre Größe oder ihren Ausblick, sie verfügt zusätzlich über eine Außenküche, die ein ganz neues Gefühl von Outdoor-Living im Sommer möglich macht. Ein Traum für Familien, Feiern und große Partys.
Zum Objekt gehört zudem ein Stellplatz in der weitläufigen Garage.
Einmalige Penthouse Wohnung mit großer Dachterrasse in der Gerlinger Innenstadt
70839 Gerlingen
Die vollständige Adresse der Immobilie erhalten Sie vom Anbieter.
Auf Karte anzeigen
Die vollständige Adresse der Immobilie erhalten Sie vom Anbieter.
Infos
| Wohnungskategorie | Penthouse |
|---|---|
| Etage | 3 von 3 |
| Wohnfläche ca. | 184 m2 |
| Nutzfläche | 180 m2 |
| Bezugsfrei ab | 01.08.2025 |
| Zimmer | 5 |
| Schlafzimmer | 2 |
| Badezimmer | 2 |
| Haustiere | Nein |
| Garage/Stellplatz | Tiefgarage |
| Anzahl Garage/Stellplatz | 1 |
Kosten
| Kaltmiete |
2.950 € |
|---|---|
| Nebenkosten | + 470 € |
| Heizkosten | in Nebenkosten enthalten |
| Gesamtmiete | 3.420 € |
| Miete für Garage/Stellplatz | 80 € |
| Kaution o. Genossenschaftsanteile | 10.350 EUR |
Weiter mieten oder doch kaufen?
Wer in Miete wohnt, überweist dem Vermieter im Laufe der Jahre hohe Summen, die sich
auch in die eigenen vier Wände investieren lassen könnten.
Bausubstanz & Energieausweis
| Baujahr | 1973 |
|---|---|
| Letzte Sanierung | 2023 |
| Objektzustand | Neuwertig |
| Qualität der Austattung | Gehoben |
| Heizungsart | Zentralheizung |
| Wesentliche Energieträger | Öl |
| Energieausweis | liegt vor |
| Energieausweistyp | Verbrauchsausweis |
| Energieverbrauchskennwert | 190,6 kWh/(m²*a) |
| Energieeffizienzklasse | F |
190,6
kWh/(m²*a)
Energieeffizienzklasse F
- A+
- A
- B
- C
- D
- E
- F
- G
- H
- 0
- 25
- 50
- 75
- 100
- 125
- 150
- 175
- 200
- 225
- >250
Beschreibung des Objekts
Ausstattung
Wie bereits erwähnt lässt diese Wohnung keine Wünsche offen. Das Objekt verfügt über eine Klimaanlage, sowie eine Fußbodenheizung. Alle Räume sind mir hochwertigen Einbauschränken ausgestattet.
Eines der Highlights sind die zwei Karmine im Wohnbereich und im Atrium (Außenbereich) für besonders viel Gemütlichkeit.
Die Wohnung verfügt über zwei vollständig ausgestattete Küchen. Die Große der zwei Küchen ist direkt an den praktischen Hauswirtschafsraum angeschlossen. Die kleinere der zwei Küchen ist eine Außenküche auf der Dachterrasse.
Alle Bodenbeläge sind hochwertig. Es wurden Naturstein, Fliesen und Vinyl verlegt.
Lage
Das Objekt befindet sich in belebter Wohnlage Mitten im Herzen von Gerlingen. Betritt man jedoch die Wohnung oder gar die Dachterrasse ist es erstaunlich ruhig.
In direkter Nähe gibt es alle Annehmlichkeiten die man sich wünschen kann: einige Restaurants, Bäckereien, Ärzte, Supermärkte und zwei Cafés. Auch ein paar Grün- und Parkanlagen erreichen Sie in Kürze.
Sonstige Angaben
Der Anbieter benötigt eine vollständige Mieterselbstauskunft
sowie eine SCHUFA-Auskunft als Bewerbungsunterlagen für diese
Immobilie.
Sie haben Fragen? Wir freuen uns auf Ihre Nachricht.
Grundriss
Grundriss Wohnung
>
>
Grundriss Dachterrasse
>
>
Adresse
70839 Gerlingen
Interessante Orte
Preis- und Lageinformationen
Preistrend für Bestandsimmobilien in Gerlingen