Bei dieser ansprechenden Immobilie handelt es sich um eine Erdgeschosswohnung, die durch eine gehobene Innenausstattung besticht.
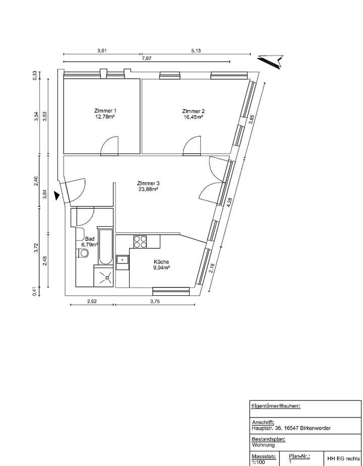
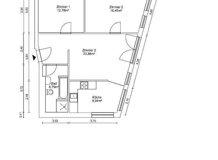
Zu dem Apartment zählen drei schöne, große und neu sanierte Zimmer, ein Badezimmer mit Badewanne und Dusche, sowie eine gehobene Einbauküche.
Besonders attraktiv wird die Immobilie dadurch, dass es nicht einen Balkon gibt, sondern Sie durch eine Terrasse mit Gartennutzung die frische Luft genießen können. Aufgrund der ruhigen Lage im Hinterhaus, bleiben die Sommernächte ungestört.
Ebenfalls vorteilhaft und zeitsparend ist der zum Objekt gehörende Tiefgaragenstellplatz für Ihr Auto, der lästiges Parkplatzsuchen unnötig macht. Diesen Stellplatz können Sie Optional dazu mieten.
Interesse? Dann senden Sie uns bitte ausschließlich Ihre vollständige Bewerbermappe mit den unten geforderten Unterlagen und dem Hinweis des gewünschten Einzugsdatums an unsere E-Mailadresse.
Geforderte Unterlagen:
- Selbstauskunft + Anschreiben
- Einkommensnachweise: Gehaltsabrechnungen der letzten drei Monate
- SCHUFA-Auskunft nicht älter als 2 Monate
- Mietschuldenfreiheitsbescheinigung
- Personalausweis oder Reisepass
Sammelbesichtigung: Samstag, den 06.12.2025 um 12:00Uhr in 16547 Birkenwerder!
Hauptstraße 36,
16547 Birkenwerder
Auf Karte anzeigen
Infos
| Wohnungskategorie | Erdgeschosswohnung |
|---|---|
| Etage | 0 von 2 |
| Wohnfläche ca. | 69 m2 |
| Nutzfläche | 69,84 m2 |
| Bezugsfrei ab | 27.10.2025 |
| Zimmer | 3 |
| Schlafzimmer | 1 |
| Badezimmer | 1 |
| Haustiere | Nach Vereinbarung |
| Garage/Stellplatz | Tiefgarage |
| Anzahl Garage/Stellplatz | 1 |
Kosten
| Kaltmiete |
1.187 € |
|---|---|
| Nebenkosten | + 225 € |
| Heizkosten | + 225 € |
| Gesamtmiete | 1.637 € (zzgl. Heizkosten) |
| Miete für Garage/Stellplatz | 100 € |
| Kaution o. Genossenschaftsanteile | 3.561,84 |
Weiter mieten oder doch kaufen?
Wer in Miete wohnt, überweist dem Vermieter im Laufe der Jahre hohe Summen, die sich
auch in die eigenen vier Wände investieren lassen könnten.
Bausubstanz & Energieausweis
| Baujahr | 1992 |
|---|---|
| Letzte Sanierung | 2025 |
| Objektzustand | Erstbezug nach Sanierung |
| Qualität der Austattung | Gehoben |
| Heizungsart | Gas-Heizung |
| Wesentliche Energieträger | Erdgas schwer |
| Energieausweis | liegt vor |
Beschreibung des Objekts
Lage
Lage: im Hinterhaus, ruhige Lage mit Innenhof, Terrasse und Gartennutzung, zentral und idyllisch.
- gegenüber von großer Grünanlage
- Hermes Paketshop in der Nähe
- Amazon Locker auf dem Grundstück
- 4 Min. Fußweg bis zu "Netto"
- 1 Min. Fußweg bis zu "Clever Fit"
- 3 Min. Fußweg bis zu "Das Kaffee Haus Birkenwerder"
- 3 Min. Fußweg bis zur Kleintierpraxis
Grundriss
Grundriss HH EG Birkenwerder
>
>
Adresse
Hauptstraße 36, 16547 Birkenwerder
Interessante Orte
Preis- und Lageinformationen
Preistrend für Bestandsimmobilien in Birkenwerder