Willkommen in dieser geräumigen Doppelhaushälfte, errichtet in Massivbauweise, das auf einem ca. 430 m² großen Grundstück eine gelungene Kombination aus Tradition und Moderne bietet. Mit einer großzügigen Wohnfläche von ca. 178 m² und zusätzlichen 40 m² Nutzfläche im Kellergeschoss vereint diese Immobilie gekonnt den Charme des ländlichen Lebens mit den modernen Annehmlichkeiten eines Hauses aus dem Jahr 2001.
Diese charmante Doppelhaushälfte erstreckt sich über zwei Etagen und bietet modernen Wohnkomfort. Sie ist mit einer angenehmen Fußbodenheizung ausgestattet und verfügt über einen Keller, der zusätzlich wertvollen Stauraum oder vielseitige Nutzungsmöglichkeiten bietet.
Auch als Wohn- und Geschäftshaus eignet sich die Immobilie hervorragend, da sich Wohnen und Arbeiten problemlos unter einem Dach verbinden lassen.
Die Innenräume sind je nach Nutzung mit Fliesen- oder Laminatböden ausgestattet, die für ein angenehmes Wohngefühl sorgen. Die Fensterflächen lassen viel Tageslicht herein und schaffen eine freundliche Atmosphäre. Der weitläufige Außenbereich bietet Raum für Erholung und Freizeit – sei es ein liebevoll angelegter Garten, ein Spielbereich oder gemütliche Sitzgelegenheiten. Die Teilung des Gartens zum Nachbarhaus welches ebenfalls angeboten wird erfolgt noch.
Die Immobilie verbindet auf perfekte Weise historischen Charme mit modernem Wohnkomfort. Dieses Haus passt sich flexibel Ihren Bedürfnissen an und bietet vielseitige Möglichkeiten. Lassen Sie sich von diesem besonderen Anwesen begeistern!
Schöne Doppelhaushälfte mit viel Platz & Ortsrandblick ideal für Ihre Familie
86989 Steingaden
Die vollständige Adresse der Immobilie erhalten Sie vom Anbieter.
Auf Karte anzeigen
Die vollständige Adresse der Immobilie erhalten Sie vom Anbieter.
Infos
| Haustyp | Doppelhaushaelfte |
|---|---|
| Wohnfläche ca. | 178 m2 |
| Nutzfläche | 40 m2 |
| Grundstücksfläche | 430 m2 |
| Bezugsfrei ab | Sofort |
| Zimmer | 5 |
| Badezimmer | 1 |
| Haustiere | Ja |
| Garage/Stellplatz | Garage |
| Anzahl Garage/Stellplatz | 1 |
Kosten
| Kaltmiete |
1.780 € |
|---|---|
| Nebenkosten | + 300 € |
| Heizkosten | in Nebenkosten enthalten |
| Gesamtmiete | 2.080 € |
| Kaution o. Genossenschaftsanteile | 3560 |
Weiter mieten oder doch kaufen?
Wer in Miete wohnt, überweist dem Vermieter im Laufe der Jahre hohe Summen, die sich
auch in die eigenen vier Wände investieren lassen könnten.
Bausubstanz & Energieausweis
| Baujahr | 2001 |
|---|---|
| Letzte Sanierung | 2023 |
| Objektzustand | Gepflegt |
| Heizungsart | Fußbodenheizung |
| Wesentliche Energieträger | Öl |
| Energieausweis | liegt vor |
| Energieausweistyp | Bedarfsausweis |
| Energieverbrauchskennwert | 115,8 kWh/(m²*a) |
| Energieeffizienzklasse | D |
115,8
kWh/(m²*a)
Energieeffizienzklasse D
- A+
- A
- B
- C
- D
- E
- F
- G
- H
- 0
- 25
- 50
- 75
- 100
- 125
- 150
- 175
- 200
- 225
- >250
Beschreibung des Objekts
Ausstattung
Die Immobilie umfasst insgesamt 5 Zimmer. Ein separates Gäste-WC und ein gepflegtes Bad lassen keine Wünsche offen.
Die Doppelhaushälfte bietet großzügigen Wohnraum und eine nachhaltige Ausstattung. Die moderne Ölheizung (2001) wird mit Solarthermie unterstützt und sorgt für eine kosteneffiziente Energieversorgung. Zusätzlich schafft ein Holzofen eine behagliche Atmosphäre.
Ein besonderes Highlight ist die 16,4 kWp Photovoltaikanlage mit 10 kW Speicher und 11 kW Wallbox, die Solarstromnutzung und das Laden eines Elektrofahrzeugs ermöglicht.
Das 430 m² große Grundstück verfügt über eine überdachte Terrasse mit Ortsrandblick – ideal für gesellige Abende oder entspannte Stunden. Eine Garage und zwei Stellplätze bieten ausreichend Platz für Fahrzeuge. Von der Terrasse aus genießen Sie einen wunderschönen Ortsrandblick auf die umliegenden Wiesen und Wälder.
Das Haus wurde laufend modernisiert. 2001 wurden das Dach gedämmt, die Heizungsanlage samt Brenner, Kessel und Heizkörper erneuert sowie neue Leitungen für Heizung, Wasser und Strom installiert. Auch eine Drainage wurde gelegt.
2020 bis 2023 erfolgten weitere zahlreiche Renovierungen: Maler- und Tapezierarbeiten, neue Bodenbeläge sowie Verputzarbeiten. 2021/2022 wurden Bäder, Fenster und Türen erneuert. Auch die Außenanlagen wurden liebevoll instandgesetzt.
Diese Immobilie überzeugt mit modernster Technik, hohem Wohnkomfort und viel Platz – perfekt für die große Familie. Wir freuen uns auf Ihre Anfrage und vereinbaren gerne einen Besichtigungstermin mit Ihnen.
Lage
Die angebotene Immobilie befindet sich in 86989 Steingaden/Lauterbach, verkehrsgünstig an der B17 zwischen Schongau und Füssen. Diese Lage vereint die Vorzüge des ländlichen Wohnens mit einer guten Erreichbarkeit der umliegenden Städte und bietet eine ideale Kombination aus Natur und Infrastruktur.
Steingaden liegt im reizvollen bayerischen Voralpenland, umgeben von sanften Hügeln, Wiesen und Wäldern. Trotz der naturnahen Umgebung ist die Anbindung hervorragend. Schongau mit Einkaufsmöglichkeiten, Schulen und Freizeiteinrichtungen ist in wenigen Minuten erreichbar. Auch Füssen, bekannt für seine historische Altstadt und das Schloss Neuschwanstein, liegt nur eine kurze Autofahrt entfernt. Die Autobahn A96 sorgt für eine schnelle Verbindung nach München oder zum Bodensee.
Die Infrastruktur bietet alles für den täglichen Bedarf. In Peiting, etwa drei Kilometer entfernt, gibt es mehrere Supermärkte, Fachgeschäfte sowie weitere Einkaufsmöglichkeiten. Auch Schulen und Kindergärten sind in der Umgebung gut vertreten. Steingaden verfügt über eine Grund- und Mittelschule, während Peiting mit mehreren Grundschulen sowie einer Mittelschule eine weitere schulische Versorgung bietet. In Schongau gibt es zudem die Pfaffenwinkel-Realschule und das Welfen-Gymnasium, die weiterführende Bildungswege ermöglichen. Ärzte und Apotheken sind gut erreichbar, und für eine umfassende medizinische Betreuung sorgt das Krankenhaus in Schongau.
Die Region ist reich an Freizeit- und Erholungsmöglichkeiten. Die berühmte Wieskirche, ein UNESCO-Weltkulturerbe, liegt in unmittelbarer Nähe. Zahlreiche Badeseen wie der Forggensee und der Bannwaldsee laden zum Schwimmen und Entspannen ein. Wander- und Radwege führen durch eine atemberaubende Landschaft, und im Winter stehen Langlaufloipen sowie Skigebiete in der Umgebung zur Verfügung.
Sonstige Angaben
Über uns:
Als Familienunternehmen mit über 35 Jahren Erfahrung und mehr als 2.500 erfolgreich vermittelten Immobilien sind wir seit zwei Generationen Ihr vertrauensvoller Partner in allen Immobilienangelegenheiten. Vielen Dank für Ihre Zusammenarbeit mit Immobilien Herfeldt.
Wichtige rechtliche Hinweise:
Die hier aufgeführten Informationen und Angaben stammen vom Eigentümer oder von Dritten. Trotz regelmäßiger Überprüfung von Daten, Bildern und Informationen übernehmen wir keine Haftung für die Richtigkeit der Angaben. Wir bestätigen jedoch, dass wir im Auftrag des jeweiligen Vertragspartners provisionspflichtig tätig sind.
Finanzierungsunterstützung:
Wir ermöglichen Ihnen Zugang zu erstklassigen Finanzierungskonditionen durch unseren Partner, den größten Finanzierer in Deutschland. Dieser fragt bei über 600 Banken an und kann Ihnen als Alternative zu Ihrer Hausbank attraktive Angebote unterbreiten. Kontaktdaten auf Anfrage.
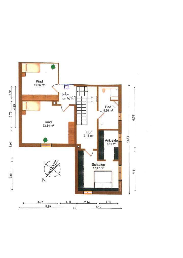
Grundriss
Erdgeschoss Grundriss
>
>
Obergeschoss Grundriss
>
>
Dachgeschoss Grundriss
>
>
Adresse
86989 Steingaden
Interessante Orte
Preis- und Lageinformationen
Preistrend für Bestandsimmobilien in Steingaden