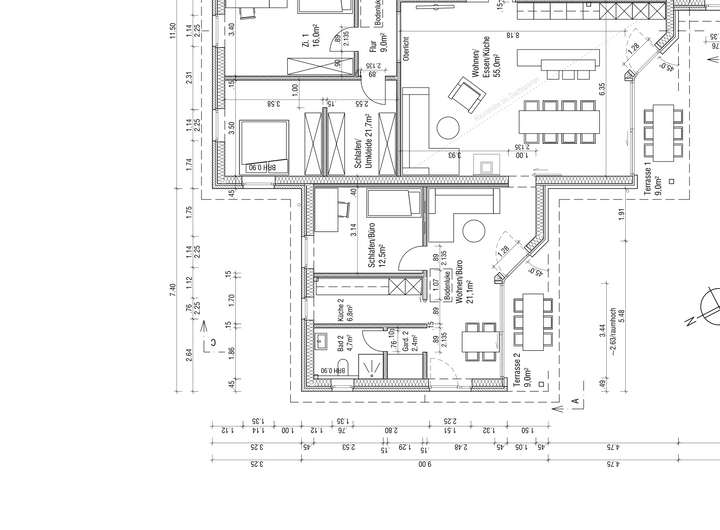
Das Einfamilienhaus mit Einliegerwohnung bietet mit Erstbezug nach Neubau zum 1.3.2026 ein weitläufiges Refugium für die Familie mit Einliegerwohnung als separates Homeoffice oder als Wohneinheit für die Großeltern. Das Energieeffizienzhaus mit Solaranlage und Geothermieheizung in Holzrahmenbau vereint nachhaltiges und ökologisches Wohnen. Die attraktive Immobilie teilt sich auf in eine Vier-Zimmer-Wohnung mit Kaminofen und großzügigem, bis unters Dach geöffnetem Wohn-Essbereich, der sich zu einer geräumigen, halbüberdachten Terrasse öffnet. Mit separatem Eingang umfasst das Gebäude eine in sich geschlossene Zwei-Zimmer-Einliegerwohnung. Das alleinstehende Haus ist eingebettet in ein großzügiges Grundstück von 826 Quadratmetern, das bei schönem Wetter zu einem regelrechten Outdoor-Zimmer werden kann. Das Grundstück liegt in einer Sackgasse, besonders ruhig und doch im historischen Ortskern zentral in Wettmar. Beachten Sie, dass es sich hierbei um ein barrierefreies Objekt handelt. Eine Einbauküche je Wohneinheit steht Ihnen außerdem zur Verfügung. Die Garage verfügt über eine Wallbox. Der monatliche Gesamtmietpreis beträgt 2.960 Euro.
Erstbezug: Einfamilienhaus mit Einliegerwohnung, zentral in Wettmar und ruhig in Sackgasse gelegen
Richard-Bartels-Straße 10,
30938 Burgwedel
Auf Karte anzeigen
Infos
| Haustyp | Einfamilienhaus |
|---|---|
| Etagenzahl | 1 |
| Wohnfläche ca. | 201 m2 |
| Nutzfläche | 201 m2 |
| Grundstücksfläche | 826 m2 |
| Bezugsfrei ab | 1.2.2026 |
| Zimmer | 6 |
| Schlafzimmer | 4 |
| Badezimmer | 3 |
| Haustiere | Nein |
| Garage/Stellplatz | Garage |
| Anzahl Garage/Stellplatz | 2 |
Kosten
| Kaltmiete |
2.800 € |
|---|---|
| Nebenkosten | + 160 € |
| Heizkosten | keine Angabe |
| Gesamtmiete | 2.960 € (zzgl. Heizkosten) |
| Miete für Garage/Stellplatz | 100 € |
| Kaution o. Genossenschaftsanteile | 8.400,00 |
Weiter mieten oder doch kaufen?
Wer in Miete wohnt, überweist dem Vermieter im Laufe der Jahre hohe Summen, die sich
auch in die eigenen vier Wände investieren lassen könnten.
Bausubstanz & Energieausweis
| Baujahr | 2025 |
|---|---|
| Letzte Sanierung | 2025 |
| Objektzustand | Erstbezug |
| Qualität der Austattung | Gehoben |
| Heizungsart | Fußbodenheizung |
| Wesentliche Energieträger | Erdwärme |
| Energieausweis | liegt vor |
| Energieausweistyp | Bedarfsausweis |
| Energieverbrauchskennwert | 27,4 kWh/(m²*a) |
| Energieeffizienzklasse | A+ |
27,4
kWh/(m²*a)
Energieeffizienzklasse A+
- A+
- A
- B
- C
- D
- E
- F
- G
- H
- 0
- 25
- 50
- 75
- 100
- 125
- 150
- 175
- 200
- 225
- >250
Beschreibung des Objekts
Ausstattung
Fußbodenheizung, Kamin, Doppelgarage mit anschließenden Hauswirtschaftsraum, Solaranlage, Wall-Box, Erdthermieheizung, Terrassen mit Süd-Westlage, Sackgassenlage, Kaminofen.
Lage
Die Immobilie liegt in Wettmar. In Laufnähe gibt es verschiedene Bäckereien, Ärzte, ein Restaurant und Supermärkte. Auch ein Fitnessstudio, eine Grün- und Parkanlage, eine Bibliothek, ein Physiotherapeut und eine Postannahmestelle sind fußläufig gut zu erreichen. Grundschule und Kindergarten sind in Wettmar verortet. Großburgwedel im weiteren Umkreis bietet weiterhin interessante Kultureinrichtungen und ein breit gefächertes Abendgestaltungsangebot.
Grundriss
Grundriss
>
>
Adresse
Richard-Bartels-Straße 10, 30938 Burgwedel
Interessante Orte
Preis- und Lageinformationen
Preistrend für Bestandsimmobilien in Burgwedel