Die 3-Zimmerwohnung in der Sperberstraße 42 überzeugt durch ihre attraktive und gut angebundene Lage in einem ruhigen, gepflegten Wohngebiet.
Hier profitieren Mieter von einer gelungenen Kombination aus urbaner Nähe und naturnahem Wohnen. Die Umgebung ist geprägt von Einfamilienhäusern, modernen Wohnanlagen und Grünflächen, die zum Verweilen einladen.
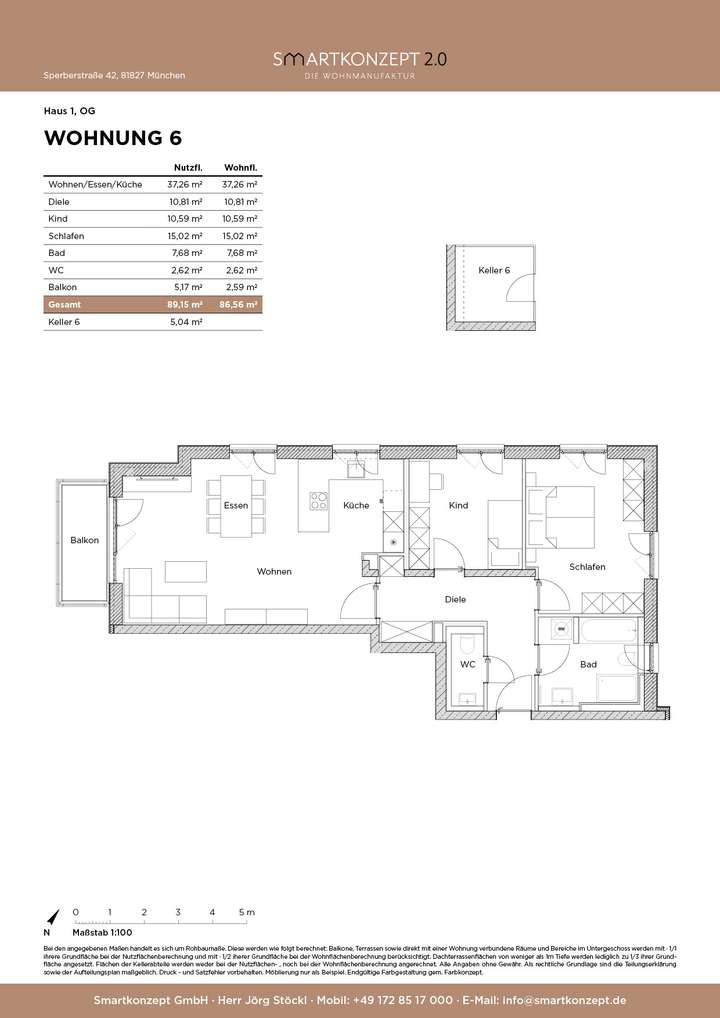
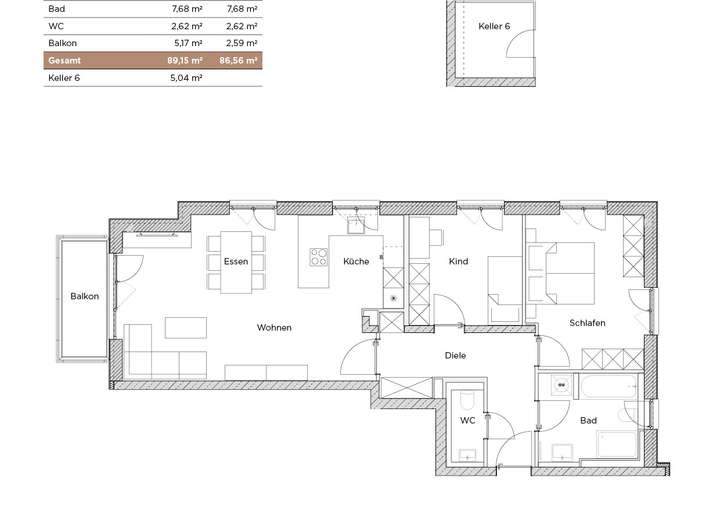
3-Zimmer-Wohnung in Neubau-Wohnanlage (Haus1/Whg6)
Sperberstraße 42,
81827 München
Auf Karte anzeigen
Infos
| Wohnungskategorie | Etagenwohnung |
|---|---|
| Etage | 1 von 2 |
| Wohnfläche ca. | 86 m2 |
| Nutzfläche | 89,15 m2 |
| Bezugsfrei ab | 10/25 |
| Zimmer | 3 |
| Schlafzimmer | 2 |
| Badezimmer | 2 |
| Garage/Stellplatz | Tiefgarage |
| Anzahl Garage/Stellplatz | 1 |
Kosten
| Kaltmiete |
2.130 € |
|---|---|
| Nebenkosten | + 340 € |
| Heizkosten | in Nebenkosten enthalten |
| Gesamtmiete | 2.470 € |
| Miete für Garage/Stellplatz | 100 € |
| Kaution o. Genossenschaftsanteile | 6390 |
Weiter mieten oder doch kaufen?
Wer in Miete wohnt, überweist dem Vermieter im Laufe der Jahre hohe Summen, die sich
auch in die eigenen vier Wände investieren lassen könnten.
Bausubstanz & Energieausweis
| Baujahr | 2025 |
|---|---|
| Objektzustand | Erstbezug |
| Qualität der Austattung | Gehoben |
| Heizungsart | Wärmepumpe |
| Energieausweis | liegt vor |
| Energieausweistyp | Bedarfsausweis |
| Energieverbrauchskennwert | 9,9 kWh/(m²*a) |
| Energieeffizienzklasse | A+ |
9,9
kWh/(m²*a)
Energieeffizienzklasse A+
- A+
- A
- B
- C
- D
- E
- F
- G
- H
- 0
- 25
- 50
- 75
- 100
- 125
- 150
- 175
- 200
- 225
- >250
Beschreibung des Objekts
Ausstattung
Die Wohnung überzeugt durch eine hochwertige Ausstattung, die Komfort und Stil vereint. Der Wohnbereich ist mit edlem Parkettdielenboden ausgestattet, während die Badezimmer durch elegante Fliesenböden glänzen. Das großzügige Tageslichtbad bietet eine moderne Dusche, eine Badewanne sowie ein Fenster, das für angenehme Lichtverhältnisse und gute Belüftung sorgt.
Ein Personenaufzug ermöglicht den direkten Zugang zur Wohnung, während die dazugehörige Tiefgarage Ihnen eine sichere und wettergeschützte Parkmöglichkeit bietet. Diese Kombination aus Funktionalität und ästhetischem Wohnkomfort macht die Wohnung ideal für anspruchsvolle Mieter.
Lage
Optimale Verkehrsanbindung:
Die Immobilie ist hervorragend an den öffentlichen Nahverkehr angebunden. Die Bushaltestelle (Sperberstraße) ist 200 Meter entfernt. Mit der Bus-Linie 185 erreichen Sie den Truderinger Bahnhof in nur 12 Minuten. Von dort aus gelangen Sie mit der S-Bahn oder U-Bahn schnell in die Münchener Innenstadt oder in andere Stadtteile.
Sonstige Angaben
Einkaufsmöglichkeiten und Infrastruktur:
In unmittelbarer Umgebung finden sich zahlreiche Einkaufsmöglichkeiten für den täglichen Bedarf, darunter Supermärkte, Bäckereien und Drogerien.
Zusätzlich bietet der nahegelegene Ortskern von Trudering weitere Geschäfte, Cafés und Restaurants, die keine Wünsche offenlassen.
Freizeit und Erholung:
Für Erholung und Freizeitgestaltung bieten sich die zahlreichen Parks und Grünflächen in der Umgebung an. Zudem liegt die Immobilie in der Nähe beliebter Rad- und Wanderwege, ideal für sportliche Aktivitäten oder entspannte Spaziergänge.
Familienfreundliche Umgebung:
Die Lage ist besonders für Familien attraktiv. In der Nähe gibt es Kindergärten, Schulen und Spielplätze, die ein rundum angenehmes Wohnumfeld bieten. Nutzen Sie diese hervorragende Lage und sichern Sie sich ein attraktives Wohnobjekt in der beliebten Sperberstraße 42.
Weitere Dokumente
Haus1-6Grundriss
Grundrissblätter-Haus1-6
>
>
Adresse
Sperberstraße 42, 81827 München
Interessante Orte
Preis- und Lageinformationen
Preistrend für Bestandsimmobilien in Trudering