Diese charmante Immobilie mit 5-Zimmern hat eine Wohnfläche von ca. 120 m² und liegt in idyllischer Feldrandlage in Tülau (Landkreis Gifhorn).
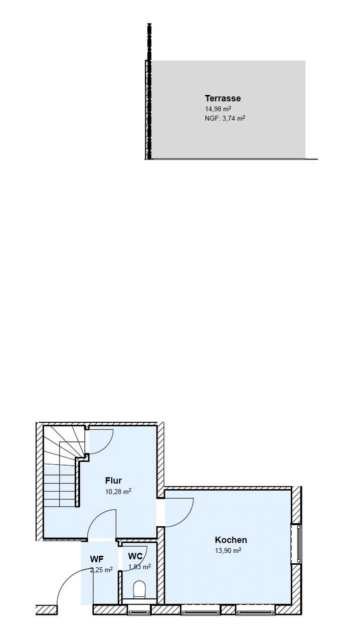
Das Erdgeschoss verfügt über eine geräumige Einbauküche sowie ein Gäste-WC.
Nach dem Aufgang ins Obergeschoss besticht dieses bereits durch einen großen Flur, der je nach Ihren Wünschen Platz für Möbel wie einen Tisch, Kommode oder eine kleine Sitzecke bietet.
Insgesamt verfügt das Obergeschoss über 4 Zimmer, die viel Gestaltungsspielraum bieten: Ein helles Arbeitszimmer mit Panorama-Blick in die Natur (Süd-Ausrichtung), ein Schlafzimmer mit Süd-West-Ausrichtung sowie zwei Kinderzimmer. Im Obergeschoss befindet sich zudem ein Badezimmer mit Badewanne.
Die Wohnung verfügt weiterhin über
eine 15m² große Terrasse und einen kleinen Garten, den Sie nach Ihren Wünschen individuell gestalten können. Ein Keller ist ebenfalls vorhanden.
Wohnhaus (5 Zimmer) mit Terrasse & Garten im Grünen, 2 Stellplätze
Bahnhofstr. 14,
38474 Tülau
Auf Karte anzeigen
Infos
| Haustyp | Sonstige |
|---|---|
| Etagenzahl | 2 |
| Wohnfläche ca. | 118 m2 |
| Grundstücksfläche | 915 m2 |
| Bezugsfrei ab | August 2025 |
| Zimmer | 5 |
| Haustiere | Ja |
| Garage/Stellplatz | Außenstellplatz |
| Anzahl Garage/Stellplatz | 2 |
Kosten
| Kaltmiete |
962 € |
|---|---|
| Nebenkosten | + 68 € |
| Heizkosten | + 190 € |
| Gesamtmiete | 1.220 € |
| Kaution o. Genossenschaftsanteile | 2886 |
Weiter mieten oder doch kaufen?
Wer in Miete wohnt, überweist dem Vermieter im Laufe der Jahre hohe Summen, die sich
auch in die eigenen vier Wände investieren lassen könnten.
Bausubstanz & Energieausweis
| Objektzustand | Gepflegt |
|---|---|
| Qualität der Austattung | Normal |
| Heizungsart | Fernwärme |
| Wesentliche Energieträger | Fernwärme |
| Energieausweis | liegt vor |
| Energieausweistyp | Verbrauchsausweis |
| Energieverbrauchskennwert | 226,7 kWh/(m²*a) |
| Energieeffizienzklasse | G |
226,7
kWh/(m²*a)
Energieeffizienzklasse G
- A+
- A
- B
- C
- D
- E
- F
- G
- H
- 0
- 25
- 50
- 75
- 100
- 125
- 150
- 175
- 200
- 225
- >250
Beschreibung des Objekts
Ausstattung
Erdgeschoss:
• großzügige Küche
• Gäste-WC
Obergeschoss:
• großzügiger Flur
• Arbeitszimmer mit Panorama Blick
• Schlafzimmer
• zwei Kinderzimmer
• Badezimmer mit Badewanne
Außenbereich:
• Terrasse
• Garten
Praktische Extras:
• 2 Außenstellplätze
• Keller
Lage
Das Haus befindet sich in ruhiger und idyllischer Lage von Tülau, einer charmanten Gemeinde im Landkreis Gifhorn. Umgeben von Natur, bietet die Umgebung beste Voraussetzungen für Spaziergänge, Radtouren und Erholung im Grünen. Gleichzeitig sind alle wichtigen Einrichtungen des täglichen Bedarfs gut erreichbar. Die Stadt Wolfsburg erreichen Sie mit dem Auto in 25 Minuten.
Sonstige Angaben
Dieses Objekt eignet sich ideal für Familien oder Paare. Im historisch interessanten Gebäudekomplex befand sich früher die Volksbank in Tülau - in der angebotenen Immobilie lebte seinerzeit der Bankdirektor.
Vereinbaren Sie gerne einen Besichtigungstermin und überzeugen Sie sich selbst von den Vorzügen dieses Hauses!
Grundriss
Grundriss Erdgeschoss
>
>
Grundriss Obergeschoss
>
>
Grundriss Kellergeschoss
>
>
Adresse
Bahnhofstr. 14, 38474 Tülau
Interessante Orte
Preis- und Lageinformationen
Preistrend für Bestandsimmobilien in Tülau