Stadtnah und doch im Grünen liegt dieses historische 9-Familien-Haus, erbaut 1895.
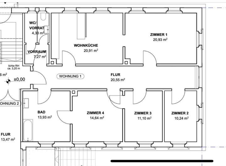
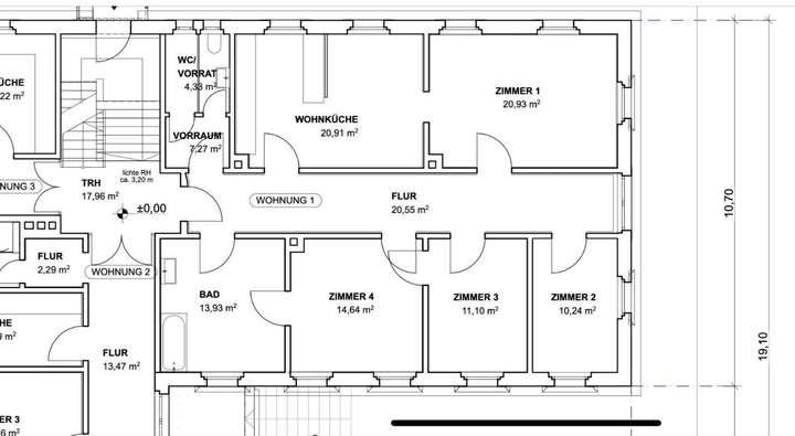
Die im Hochparterre liegende Wohnung hat neben Flur, sep. WC und Abstellraum vier Zimmer, eine große Küche mit zusätzlichem Platz für einen Essbereich und ein Bad mit Badewanne.
Sie wurde nach Auszug der Mieter aktuell saniert. Hohe Decken, originale Türen und die Lamperie im Flur vermitteln die wunderschöne Atmosphäre eines historischen Altbaus.
Ein Teilstück des Gartens steht den Mietern zur gemeinschaftlichen Nutzung zur Verfügung.
Zusätzlich gehört ein Kellerabteil zur Wohnung; ein Außenstellplatz kann ebenfalls mit angemietet werden.
Die Immobilie liegt im Ensembleschutzbereich der Stadt Coburg, ein Energieausweis ist daher nicht erforderlich, beheizt wird mittels einer Öl-Zentralheizung.
Der Vermieter wünscht sich ein längerfristiges Mietverhältnis von mindestens einem Jahr sowie keine Haustiere.
Im ausführlichen Exposé steht Ihnen ein 360°-Rundgang zur Verfügung.
Wunderschöne, renovierte Altbauwohnung im Hochparterre… die Veste Coburg zum Greifen nah
96450 Coburg
Die vollständige Adresse der Immobilie erhalten Sie vom Anbieter.
Auf Karte anzeigen
Die vollständige Adresse der Immobilie erhalten Sie vom Anbieter.
Infos
| Wohnungskategorie | Erdgeschosswohnung |
|---|---|
| Etagenzahl | 3 |
| Wohnfläche ca. | 123 m2 |
| Bezugsfrei ab | sofort |
| Zimmer | 4 |
| Schlafzimmer | 4 |
| Badezimmer | 1 |
| Haustiere | Nein |
| Anzahl Garage/Stellplatz | 1 |
Kosten
| Kaltmiete |
1.085 € |
|---|---|
| Nebenkosten | + 300 € |
| Heizkosten | keine Angabe |
| Gesamtmiete | 1.435 € (zzgl. Heizkosten) |
| Miete für Garage/Stellplatz | 50 € |
| Kaution o. Genossenschaftsanteile | 2.270 € |
Weiter mieten oder doch kaufen?
Wer in Miete wohnt, überweist dem Vermieter im Laufe der Jahre hohe Summen, die sich
auch in die eigenen vier Wände investieren lassen könnten.
Bausubstanz & Energieausweis
| Baujahr | 1895 |
|---|---|
| Letzte Sanierung | 2024 |
| Objektzustand | Saniert |
| Qualität der Austattung | Normal |
| Heizungsart | Zentralheizung |
| Wesentliche Energieträger | Öl |
| Energieausweis | laut Gesetz nicht erforderlich |
Beschreibung des Objekts
Ausstattung
Das Wichtigste in Kürze:
* ruhige Lage direkt am Hofgarten
* saniert
* Parkettböden
* Stellplatz am Haus möglich
Lage
Die Wohnung liegt direkt am Hofgarten, nur wenige Gehminuten von Marktplatz und Schloßplatz entfernt in ruhiger und bevorzugter Wohnlage.
Coburg spannt den Bogen zwischen Geschichte und Moderne, verbindet Altes gekonnt mit Neuem.
Nicht umsonst lautet das Stadt-Motto „Werte und Wandel“. Hier hat man ein ebenso feines Gespür für Tradition wie auch für Innovation - im wirtschaftlichen sowie im kulturellen Bereich.
In Coburg versteht man es, nicht nur erfolgreich zu arbeiten, sondern auch vorzüglich zu leben.
Die kreisfreie Hochschul- und Europastadt Coburg im Norden Bayerns ist ein Oberzentrum und hat knapp 41.000 Einwohner. Bis 1918 war Coburg Residenzstadt der Herzöge von Sachsen-Coburg. Hier findet sich auch die zweitgrößte erhaltene Burg Deutschlands, die Veste Coburg.
Coburg ist Zentrum einer Vielzahl von Einrichtungen der beruflichen und schulischen Weiterbildung sowie Erwachsenenbildung und verfügt über vielfältige Freizeiteinrichtungen.
Verkehrstechnisch hat Coburg Anschluss in alle Richtungen über Bundes- Staats- und Gemeindestraßen.
Der Autobahnanschluss ist über die A73 Bamberg-Suhl abgedeckt.
Sonstige Angaben
Neugierig? Gerne können Sie das entsprechende Exposé anfordern und nach Absprache die Wohnung besichtigen.
Bitte senden Sie uns hierfür Ihre Anfrage per eMail über das Kontaktformular dieser Anzeige. Außerdem benötigen wir im Anschluss das ausgefüllte Formular „Freiwillige Selbstauskunft“.
Wir setzen uns nach Erhalt Ihrer Unterlagen kurzfristig mit Ihnen in Verbindung.
Grundriss
Grundriss
>
>
Grundriss
>
>
Adresse
96450 Coburg
Interessante Orte
Preis- und Lageinformationen
Preistrend für Bestandsimmobilien in Zentrum