Dieses exklusive Zweifamilienhaus wurde als Effizienzhaus 40 EE in Drochtersen erbaut. Die Hauptwohnung hat eine Wohnfläche von ca. 135m² und verfügt über 5,5 Zimmer, welche sich über 2 Ebenen verteilen. Das Haus und die Terrasse sind Richtung S/W ausgerichtet und laden zum Entspannen und Verweilen ein. Versorgt wir die Immobilie mit Fernwärme.
Das Objekt wird als Zweitbezug vermietet und bietet Ihnen eine hochwertige Ausstattung. Für die Anmietung ist ein gesichertes und geregeltes Einkommen erforderlich. Eine Tierhaltung ist nach Absprache möglich. Die Mindestmietzeit beträgt 2 Jahre.
Das Haus ist sehr liebevoll geplant und schlau durchdacht. Hier lässt es sich wirklich gut leben. Wir freuen uns über Ihre Anfragen und machen gern mit Ihnen einen Besichtigungstermin aus.
Perfekt für Ihre Familie - großzügiges Haus in ruhiger und kinderfreundlicher Lage!
21706 Drochtersen
Die vollständige Adresse der Immobilie erhalten Sie vom Anbieter.
Auf Karte anzeigen
Die vollständige Adresse der Immobilie erhalten Sie vom Anbieter.
Infos
| Haustyp | Mehrfamilienhaus |
|---|---|
| Wohnfläche ca. | 135 m2 |
| Grundstücksfläche | 300 m2 |
| Bezugsfrei ab | nach Vereinbarung |
| Zimmer | 5,5 |
| Schlafzimmer | 4 |
| Badezimmer | 1 |
| Garage/Stellplatz | Außenstellplatz |
| Anzahl Garage/Stellplatz | 2 |
Kosten
| Kaltmiete |
1.450 € |
|---|---|
| Nebenkosten | + 300 € |
| Heizkosten | in Nebenkosten enthalten |
| Gesamtmiete | 1.750 € |
| Miete für Garage/Stellplatz | 25 € |
| Kaution o. Genossenschaftsanteile | 4.350,- € |
Weiter mieten oder doch kaufen?
Wer in Miete wohnt, überweist dem Vermieter im Laufe der Jahre hohe Summen, die sich
auch in die eigenen vier Wände investieren lassen könnten.
Bausubstanz & Energieausweis
| Baujahr | 2023 |
|---|---|
| Objektzustand | Neuwertig |
| Heizungsart | Fernwärme |
| Wesentliche Energieträger | Fernwärme |
| Energieausweis | liegt vor |
| Energieausweistyp | Bedarfsausweis |
| Energieverbrauchskennwert | 36,0 kWh/(m²*a) |
| Energieeffizienzklasse | A |
36,0
kWh/(m²*a)
Energieeffizienzklasse A
- A+
- A
- B
- C
- D
- E
- F
- G
- H
- 0
- 25
- 50
- 75
- 100
- 125
- 150
- 175
- 200
- 225
- >250
Beschreibung des Objekts
Ausstattung
- inklusive Küche (Spülmaschine, Backofen und Ceranfeld)
- inklusive Bodenbeläge (Fliesen und Laminat)
- Terrasse
- 2 Stellplätze (mtl. 50,- €)
- Fußbodenheizung
- Be- und Entlüftungsanlage
- Fenster 3-fach verglast
- Garten
- Vollbad mit 90x90 Dusche
- weiße Innentüren
- Glasfaseranschluss
Lage
Das Objekt liegt in Drochtersen. In der Umgebung befindet sich Glückstadt. Wenige Gehminuten von der Immobilie entfernt gibt es einige Bäckereien, zwei Supermärkte, einen Arzt und ein Restaurant. Ein paar Fitnessstudios, zwei Apotheken, ein Modegeschäft und eine Postannahmestelle sind ebenso in der Nähe gelegen. Einige Museen sowie verschiedene Erholungsmöglichkeiten (u. a. eine Grün- und Parkanlage) gibt es schließlich ebenfalls im größeren Umkreis.
Sonstige Angaben
Geschäftsbedingungen für die Immobilienvermittlung
1. Unsere Angebote und Informationen sind vertraulich und dürfen nicht an Dritte weitergegeben werden. Die Informationen beruhen auf Angaben des/der Eigentümer/s, wir können für die Richtigkeit und Vollständigkeit keine Gewähr übernehmen. Die Angebote sind freibleibend, Zwischenverkauf oder Vermietung bleibt vorbehalten.
2. Es fällt keine Mietercourtage an.
3. Entsteht uns durch die unbefugte Weitergabe vertraulicher Informationen ein Schaden, ist uns dieser durch denjenigen, an den wir unsere Informationen auf Anfrage übermittelt haben, zu ersetzen. Die pauschalierte Höhe des Ersatzanspruches richtet sich nach Ziff. 2 dieser Bedingungen.
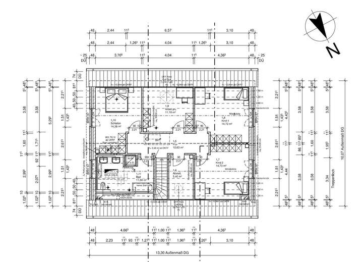
Grundriss
Erdgeschoss
>
>
Dachgeschoss
>
>
Adresse
21706 Drochtersen
Interessante Orte
Preis- und Lageinformationen
Preistrend für Bestandsimmobilien in Drochtersen