Attraktive Immobilie in Planung. Mietkauf möglich. Machen Sie den Check: Jetzt prüfen ob Sie Miet-Kauf berechtigt sind!
Raus aus der Alt-Immobilie - Rein in die eigenen vier Wände
- Ohne Eigenkapital
- Trotz Schulden
Vereinbaren Sie jetzt Ihren Termin mit unseren Miet-Kauf-Spezialisten!
Preiswerte Mietkaufimmobilie abzugeben. Ohne Eigenkapital möglich.
53902 Bad Münstereifel
Die vollständige Adresse der Immobilie erhalten Sie vom Anbieter.
Auf Karte anzeigen
Die vollständige Adresse der Immobilie erhalten Sie vom Anbieter.
Infos
| Haustyp | Doppelhaushaelfte |
|---|---|
| Wohnfläche ca. | 120 m2 |
| Nutzfläche | 0 m2 |
| Grundstücksfläche | 1.400 m2 |
| Zimmer | 4 |
| Schlafzimmer | 1 |
| Badezimmer | 1 |
| Anzahl Garage/Stellplatz | 0 |
Kosten
| Kaltmiete |
1.970 € |
|---|---|
| Nebenkosten | keine Angabe |
| Heizkosten | keine Angabe |
| Gesamtmiete | 1.970 € |
Weiter mieten oder doch kaufen?
Wer in Miete wohnt, überweist dem Vermieter im Laufe der Jahre hohe Summen, die sich
auch in die eigenen vier Wände investieren lassen könnten.
Bausubstanz & Energieausweis
| Baujahr | 2025 |
|---|---|
| Qualität der Austattung | Gehoben |
| Heizungsart | Wärmepumpe |
Beschreibung des Objekts
Ausstattung
Jedes unserer Fertighäuser wird speziell für Sie geplant und ist perfekt auf die Anforderungen und Vorgaben Ihres Bauvorhabens angepasst – Bebauungspläne, eine besondere Grundstückslage und die gewünschten Eigenleistungen werden im Detail geprüft und berücksichtigt.
Jedes technik-fertige Danhaus verfügt standardmäßig über:
- massive Klinkerfassade im Standard enthalten, auf Wunsch auch mit Holz- oder Putzfassade lieferbar
- Heizungstechnik auf Ihre Wünsche hin konfigurierbar
- auf Wunsch auch mit Fußbodenheizung mit Kühleffekt im Sommer lieferbar
- Kontrollierte Be- und Entlüftung fertig installiert
- Elektroinstallation fertig hergestellt
- Hochwertige Ausstattung mit Markenfabrikaten
- 3-Scheiben-Wärmeschutzglas
- Rollläden im Standard enthalten, auf Wunsch auch mit Elektroantrieb lieferbar
- Schwimmender Estrich mit Wärmedämmung verlegt
- Sanitär-Rohinstallation (ohne Sanitär-Objekte) enthalten
Diesem Angebot liegt die beliebte Danhaus-Ausbaustufe "technik-fertig" zugrunde. Diese kann selbstverständlich noch entsprechend Ihrer geplanten Eigenleistungen angepasst werden.
Lage
Die Immobilie befindet sich in einer ruhigen und dennoch zentralen Lage, nur wenige Minuten von Einkaufsmöglichkeiten, Schulen und öffentlichen Verkehrsmitteln entfernt. Der gepflegte Garten lädt zum Entspannen im Freien ein und bietet Platz für gemütliche Grillabende mit Familie und Freunden.
Überzeugen Sie sich selbst von diesem Traumhaus und vereinbaren Sie noch heute einen Besichtigungstermin!
Sonstige Angaben
Die Finanzierung Ihres Traumhauses ist ohne Eigenkapital möglich, bestehende Schulden sind kein Hindernis – Bonität vorausgesetzt.
Rufen Sie noch heute an und fragen Sie nach unserem Miet-Kauf-Modell.
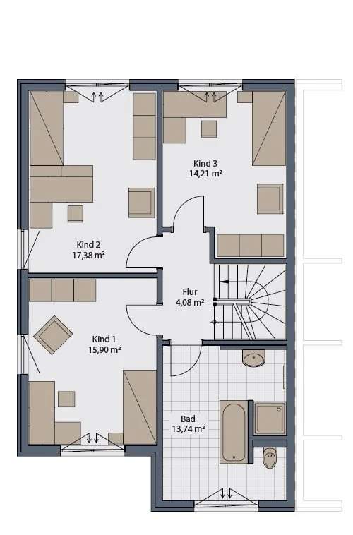
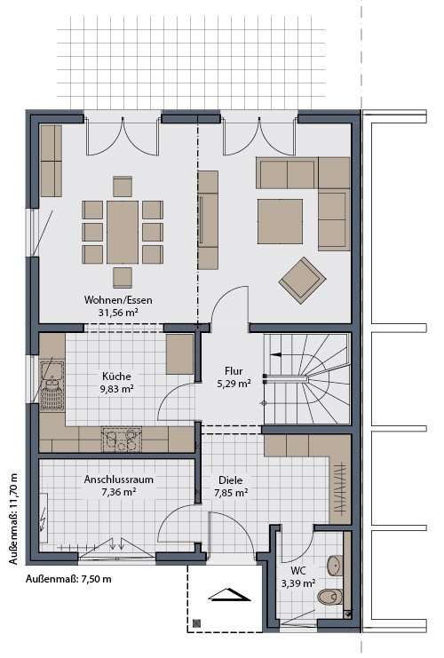
Die dargestellten Bilder und Grundrisse sind Beispiele und können Sonderausstattungen enthalten, die nicht im Preis enthalten sind. Die Kaufnebenkosten sind nicht im Preis enthalten. Alle Angaben ohne Gewähr.
Bitte haben Sie Verständnis, dass nur vollständig ausgefüllte Anfragen bearbeitet werden können.
Anbauteile, Carport, Garage und Keller können Extras sein, die als Sonderausstattung angeboten werden. Abbildungen, Grundrisse und Flächenangaben sind beispielhaft und können Extras zeigen. Flächenangaben nach DIN 277.
Grundriss
Grundriss
>
>
Grundriss
>
>
Vorschlag
>
>
Vorschlag
>
>
Vorschlag
>
>
Adresse
53902 Bad Münstereifel
Interessante Orte
Preis- und Lageinformationen
Preistrend für Bestandsimmobilien in Bad Münstereifel