Ab dem 01.03.2026 steht das freundliche, einstöckige Einfamilienhaus zum Erstbezug nach umfassender – auch energetischer – Sanierung bereit.
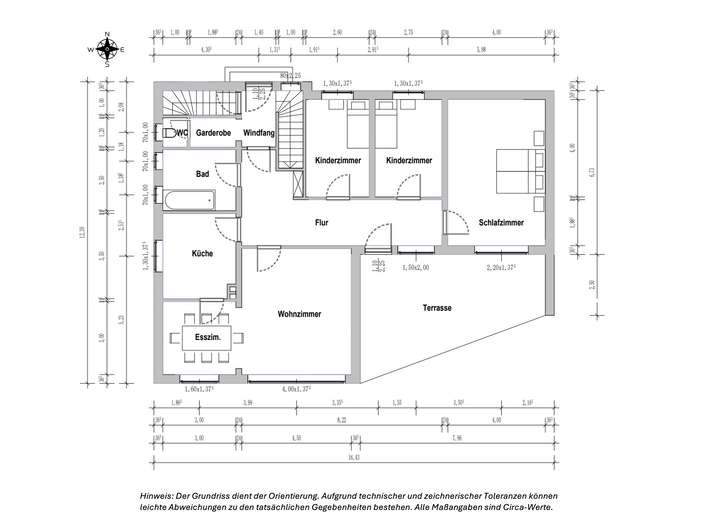
Im Erdgeschoss erwarten Sie der großzügige Wohn-/Essbereich, drei weitere helle Zimmer, eine Küche, ein Badezimmer sowie ein separates Gäste-WC. Es sind keine Einbauten in der Küche.
Das Grundstück beeindruckt mit einer Fläche von knapp 1.000 m². Die teilüberdachte, windgeschützte Südterrasse schafft einen behaglichen Außenbereich, der viele Monate im Jahr zum Verweilen einlädt. Der weitläufige Garten eröffnet vielfältige Gestaltungsmöglichkeiten und bietet reichlich Platz für Freizeit, Spiel und Hobby. Dank seiner Größe ist er ideal für Familien sowie für alle, die gerne viel Zeit im Freien genießen.
Keller:
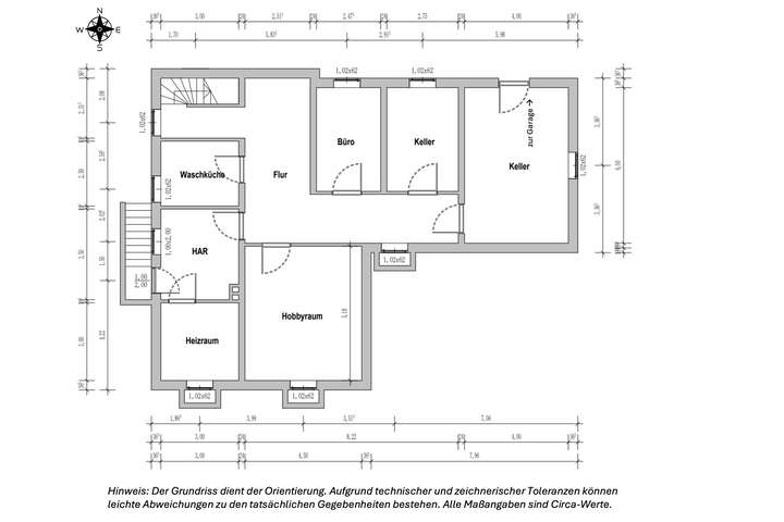
Der vorhandene Keller umfasst einen beheizbaren Waschraum mit Dusche und WC, ein Büro oder Gästezimmer sowie weitere Räume, die sich ideal als Hobby‑, Abstell‑ oder Werkstatträume eignen. Zudem ist der Keller über eine Außentreppe direkt vom Garten aus zugänglich.
Heizung:
Beheizt wird das Haus über eine Gas-Zentralheizung. Die moderne Gas-Brennwert-Therme wurde 2018 installiert.
Garage:
Zum Objekt gehören eine Einzelgarage mit direktem Zugang zum Keller sowie zwei Außenstellplätze. Die Garagen-/Stellplatzmiete von EUR 100,- pro Monat ist nicht in der Nettokaltmiete enthalten.
Außenanlagen:
Die Außenanlagen – einschließlich Pflasterarbeiten an Einfahrt und Wegen, Terrassenbelag und Bepflanzung – werden im Laufe des Jahres 2026 fertiggestellt.
Nebenkosten:
Die Nebenkosten-/Betriebskostenvorauszahlung beträgt EUR 150,- pro Monat. Heiz- und Stromkosten sind nicht enthalten und werden vom Mieter direkt mit den Versorgern abgerechnet. Gleiches gilt für Telefon und Internet.
Erstbezug nach Sanierung: 5-Zimmer-Einfamilienhaus in Ingolstadt-West
Steinäckerstraße 19,
85049 Ingolstadt
Auf Karte anzeigen
Infos
| Haustyp | Einfamilienhaus |
|---|---|
| Etagenzahl | 1 |
| Wohnfläche ca. | 138 m2 |
| Nutzfläche | 165 m2 |
| Grundstücksfläche | 996 m2 |
| Bezugsfrei ab | 1.3.2026 |
| Zimmer | 5 |
| Schlafzimmer | 4 |
| Badezimmer | 1 |
| Haustiere | Nein |
| Anzahl Garage/Stellplatz | 3 |
Kosten
| Kaltmiete |
1.650 € |
|---|---|
| Nebenkosten | + 150 € |
| Heizkosten | keine Angabe |
| Gesamtmiete | 1.800 € (zzgl. Heizkosten) |
| Miete für Garage/Stellplatz | 100 € |
| Kaution o. Genossenschaftsanteile | 4500,00 EUR |
Weiter mieten oder doch kaufen?
Wer in Miete wohnt, überweist dem Vermieter im Laufe der Jahre hohe Summen, die sich
auch in die eigenen vier Wände investieren lassen könnten.
Bausubstanz & Energieausweis
| Baujahr | 1970 |
|---|---|
| Letzte Sanierung | 2026 |
| Objektzustand | Erstbezug nach Sanierung |
| Qualität der Austattung | Normal |
| Heizungsart | Zentralheizung |
| Wesentliche Energieträger | Gas |
| Energieausweis | liegt vor |
| Energieausweistyp | Bedarfsausweis |
| Energieverbrauchskennwert | 89,0 kWh/(m²*a) |
| Energieeffizienzklasse | C |
89,0
kWh/(m²*a)
Energieeffizienzklasse C
- A+
- A
- B
- C
- D
- E
- F
- G
- H
- 0
- 25
- 50
- 75
- 100
- 125
- 150
- 175
- 200
- 225
- >250
Beschreibung des Objekts
Ausstattung
- Badezimmer mit Dusche, Badewanne und WC
- Separates Gäste-WC
- Fußbodenheizung im Bad und im Gäste WC
- zusätzlicher Heizkörper im Badezimmer
- Einbauschrank im Flur
- Gas-Zentralheizung
- Zentrale Lüftungsanlage mit Wärmerückgewinnung
- Neue 3-fach verglaste Fenster sowie neue Rollläden
- Neu gedämmte Fassade sowie oberste Geschossdecke
- Waschraum mit Anschlüssen für Waschmaschine und Trockner sowie Dusche und WC
- Einzelgarage sowie 2 zusätzliche Außenstellplätze
- Vorbereitung zur Installation einer Wallbox (16A) in der Garage
- Glasfaser-Internetanschluss (COM-IN) und zentrale Netzwerkverteilung
- LAN: Gigabit Ethernet im Wohnbereich und in allen Schlafräumen
- SAT-TV im Wohn- und in allen Schlafzimmern
- Vollständig unterkellert
- Außensteckdose(n) sowie Außenwasserhahn
Lage
Die Immobilie befindet sich in Ingolstadt West, im ruhigen Ortsteil Pettenhofen.
Die Buslinie (werktags im 30-Minutentakt) ist fußläufig schnell zu erreichen. Im Nachbarort gibt es Kindergarten und Grundschule. Zum Klinikum Ingolstadt sind es gut 10 Minuten mit dem Auto bzw. ca. 20 Minuten per Bus.
Im Ort sowie in den umliegenden Gemeinden stehen vielfältige Freizeit‑ und Sportangebote durch zahlreiche Vereine zur Verfügung. In der näheren Umgebung finden Sie zudem ein breites Spektrum an Einkaufsmöglichkeiten, Banken und medizinischer Versorgung.
Die umliegende Landschaft bietet schnellen Zugang zur Natur und lädt zu erholsamen Spaziergängen oder Radtouren ein.
Sonstige Angaben
Nur an Nichtraucher zu vermieten.
Vermietung direkt vom Eigentümer. Keine Makleranfragen – auch nicht zur Akquise.
Die in den Grundrissen dargestellten Einbauten/Möbel dienen
lediglich der Illustration und entsprechen nicht in jedem Fall dem
tatsächlichen Ausstattungsumfang.
Keine Haftung für die Richtigkeit oder Vollständigkeit der
Angaben.
Weitere Dokumente
EnergieausweisGrundriss
Grundriss EG
>
>
Grundriss KG
>
>
Adresse
Steinäckerstraße 19, 85049 Ingolstadt
Interessante Orte
Preis- und Lageinformationen
Preistrend für Bestandsimmobilien in West