Der großzügige und liebevoll angelegte Einfahrtsbereich, der nachts dezent beleuchtet ist, führt Sie direkt zum modernen und repräsentativen Entree der Villa.
Mit ca. 364 m² Wohnfläche erstreckt sich dieses Objekt der Spitzenklasse über zwei Etagen mit einer Raumhöhe von 2,75 m.
Das Gesamterscheinungsbild vermittelt ein gehobenes, exklusives, lichtdurchflutetes Wohnambiente.
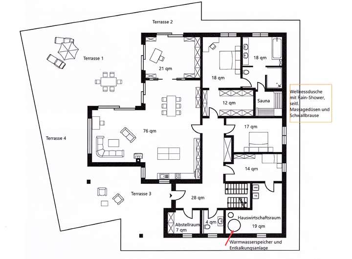
Ansprechende Architektur, Verschmelzung von Moderne und Wärme und viele Glasfronten mit Blick in den Park bestimmen die Atmosphäre des Anwesens. Insgesamt vier Terrassen bieten vielfältige Möglichkeiten, das Wohnen auf den Park und seine Ruhe auszudehnen.
Den Mittelpunkt der ersten Wohnebene bilden das Ensemble einer luxuriösen Küche mit Granitarbeitsplatten, der designte Wohnbereich mit einem Kaminofen für romantische Abende und der Essbereich mit viel Platz für Familie und Gäste. Eine Schiebetüre ermöglicht ungestörtes Arbeiten im angrenzenden Büroraum mit hochwertigen Holzeinbauten und zwei Glasfronten nach Süd und West. Auch hier bestimmt der Blick in die Ruhe des Parks das Wohlfühlklima.
Puristisch-elegant ist der Weg über die Ankleide mit exquisiten Einbauten in den Master Bedroom, von dem aus man auch hier direkt in den Park gelangt. Das Master Bad mit Wellnessdusche und integrierter Sauna erfüllt allerhöchste Ansprüche an Funktionalität und Stil.
In die zweite Ebene gelangt man über den formschönen Treppenaufgang. Das große Studio mit ca. 60 m² wird durch die Loggia lichtdurchflutet und lässt Wohnen auf höchstem Niveau zu. Ein modernes Bad ermöglicht eine weitere Privatsphäre.
Eine großzügige Doppelgarage mit zusätzlichem Platz für Motor- oder Fahrräder, andere Sportgeräte und selbstverständlich einer Lademöglichkeit für Ihr E-Bike, macht das tägliche Ankommen leicht und inspiriert dazu, den Tag entsprechend sportlich abgerundet ausklingen zu lassen.
Work-Life-Balance - Villa im eigenen Park - in unmittelbarer Nähe von Golfplatz und See
82340 Feldafing
Die vollständige Adresse der Immobilie erhalten Sie vom Anbieter.
Auf Karte anzeigen
Die vollständige Adresse der Immobilie erhalten Sie vom Anbieter.
Infos
| Haustyp | Villa |
|---|---|
| Etagenzahl | 2 |
| Wohnfläche ca. | 364 m2 |
| Nutzfläche | 80 m2 |
| Grundstücksfläche | 2.549 m2 |
| Bezugsfrei ab | 1.6.2026 |
| Zimmer | 8 |
| Schlafzimmer | 4 |
| Badezimmer | 2 |
| Haustiere | Ja |
| Garage/Stellplatz | Garage |
| Anzahl Garage/Stellplatz | 2 |
Kosten
| Kaltmiete |
9.200 € |
|---|---|
| Nebenkosten | + 660 € |
| Heizkosten | in Nebenkosten enthalten |
| Gesamtmiete | 9.860 € |
| Miete für Garage/Stellplatz | 290 € |
| Kaution o. Genossenschaftsanteile | 27.600,00 |
Weiter mieten oder doch kaufen?
Wer in Miete wohnt, überweist dem Vermieter im Laufe der Jahre hohe Summen, die sich
auch in die eigenen vier Wände investieren lassen könnten.
Bausubstanz & Energieausweis
| Baujahr | 2013 |
|---|---|
| Letzte Sanierung | 2023 |
| Objektzustand | Neuwertig |
| Qualität der Austattung | Gehoben |
| Heizungsart | Gas-Heizung |
| Wesentliche Energieträger | Gas |
| Energieausweis | liegt vor |
Beschreibung des Objekts
Lage
Das sonnige parkähnliche Anwesen mit altem Baumbestand und einer Fläche von ca. 2.550 m² befindet sich in unmittelbarer Nähe des Starnberger Sees. Der aufwändig angelegte Garten bietet ein Maximum an Privatsphäre und Ruhe.
Nur einen Steinwurf entfernt liegt einer der schönsten Golfplätze Deutschlands. Das nahe gelegene Ufergelände des Starnberger Sees, das sogenannte Paradies, bietet mit einer Größe von 150 ha vielfältige Sport- und Freizeitmöglichkeiten, wie Segeln, Golfen, Schwimmen und Joggen. Der weitläufige Park und die vorgelagerte Roseninsel, auf der sich schon König Ludwig II und Kaiserin Elisabeth von Österreich getroffen haben, laden zu einem Spaziergang ein.
Der Starnberger See gilt weit über die Landesgrenzen Bayerns hinaus als außergewöhnlicher Ort der Erholung mit großer Wohn- und Lebensqualität.
Am Westufer liegt der idyllische Ort Feldafing mit etwa 4.300 Einwohnern in eine intakte Natur eingebettet. Als Perle des Starnberger Sees bietet der Ort einen traumhaften Blick auf den See und die gesamte Alpenkette.
Feldafing ist eine bevorzugte Wohngemeinde mit perfekten Bedingungen für Golfer, Radfahrer, Wassersportler, Wanderer und Naturfreunde.
Die Infrastruktur der Gemeinde bietet neben Schulen, Kindergärten, Geschäften des täglichen Bedarfs sowie Ärzten und Apotheken einen Golf- und Segelclub und Restaurants.
Eine schnelle Anbindung an das öffentliche Verkehrsnetz ist durch den fußläufig erreichbaren S-Bahnhof gegeben. Ein umfangreiches Angebot an Handel, Dienstleistungen, Fachärzten und Kliniken bieten das nahegelegene Tutzing bzw. die Stadt Starnberg.
Sonstige Angaben
Highlights: - Vermietung provisionsfrei -
° Repräsentatives parkähnliches Grundstück
mit 2.549 m²
° Maximum an Privatsphäre
° exklusive Lage nahe See und Golfplatz
° stilvolle Teilmöblierung: z. B. Küche, Ankleide, Garderobe
° schwenkbarer Kaminofen
° hochwertige einbruchhemmende Holz-Alu-
Fenster/Türen mit Jalousien/Rollläden
° Fußbodenheizung
° Echtholzparkett, Designbelag, Marmor
° Bad en Suite am Master Bedroom mit Sauna
und Zugang zum Garten
° designtes Gäste-WC im Entree
° Studio mit Loggia und modernem Bad
in der zweiten Ebene
° 2,75 m Raumhöhe
° vier Terrassen
° Video Gegensprechanlage
° Elektrisch gesteuertes Einfahrtstor
° Großzügige Doppelgarage und
Außenstellplätze
° geräumige Gartenhütte
Ein ausführliches Exposé mit Bildern der Innenräume erhalten Sie auf qualifizierte Anfrage. Bitte bewerben Sie sich mit einer aktuellen Schufa Auskunft und aktuellem Einkommensnachweis.
Adresse
82340 Feldafing
Interessante Orte
Preis- und Lageinformationen
Preistrend für Bestandsimmobilien in Feldafing