Diese Doppelhaushälfte steht ab dem 01.01.2026 zur Vermietung und wird für Sie frisch renoviert!!
Zu den 1300,00 € meldet der Mieter Gas + Strom + Wasser selber an!
Entscheiden Sie bei der Auswahl des Bodenbelages, der Fliesen und der Raumfarbe mit.
Es wird eine neue Heizungsanlage verbaut, weshalb sich ein Einzugstermin erst ab Herbst 2025 realisieren lassen wird.
Zuvor wurde das Objekt als Zwei-Parteien-Haus genutzt. Durch ein Treppenhaus sind beide ehemaligen Wohnungen miteinander verbunden.
Aufteilung:
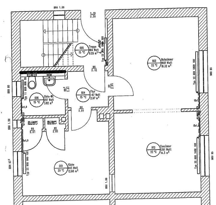
Erdgeschoss
Wohnzimmer, Schlafzimmer, Bad mit Dusche und Fenster, Küche, Wohnungsflur und Hausflur
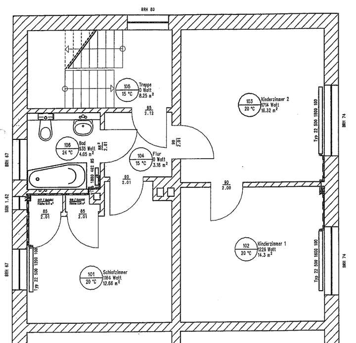
Obergeschoss
3 Zimmer (1 Durchgangszimmer - ehemalige Küche wird zum Zimmer ausgebaut), Bad mit Dusche und Fenster, Wohnungsflur und Hausflur
Dachboden
Lagerfläche (nicht ausgebaut)
Keller
Waschkeller und weitere Räume
Infos
| Haustyp | Doppelhaushaelfte |
|---|---|
| Etagenzahl | 2 |
| Wohnfläche ca. | 130 m2 |
| Nutzfläche | 130,6 m2 |
| Grundstücksfläche | 930 m2 |
| Bezugsfrei ab | 01.01.2026 |
| Zimmer | 5 |
| Schlafzimmer | 4 |
| Badezimmer | 2 |
| Haustiere | Nein |
| Garage/Stellplatz | Außenstellplatz |
| Anzahl Garage/Stellplatz | 2 |
Kosten
| Kaltmiete |
1.202 € |
|---|---|
| Nebenkosten | + 98 € |
| Heizkosten | keine Angabe |
| Gesamtmiete | 1.300 € (zzgl. Heizkosten) |
| Kaution o. Genossenschaftsanteile | 2 Nettokaltmieten |
Weiter mieten oder doch kaufen?
Wer in Miete wohnt, überweist dem Vermieter im Laufe der Jahre hohe Summen, die sich
auch in die eigenen vier Wände investieren lassen könnten.
Bausubstanz & Energieausweis
| Baujahr | 1927 |
|---|---|
| Objektzustand | Gepflegt |
| Qualität der Austattung | Normal |
| Heizungsart | Zentralheizung |
| Wesentliche Energieträger | Gas |
| Energieausweis | liegt zur Besichtigung vor |
Beschreibung des Objekts
Ausstattung
+ Bäder EG/OG mit Dusche und Fenster
+ Kunststofffenster 2-fach verglast
+ Garten mit Schuppen
+ Vollkeller
+ Dachboden
+ Mietbindung: 4 Jahre
Lage
Das Objekt liegt in Gardelegen. In Laufnähe des Objekts sind die Buslinien 600 und 610 vorhanden. Überregionale Ziele sind durch die nahe verkehrende Bahnlinie RB 35 gut erreichbar. Wenige Gehminuten von der Immobilie entfernt gibt es ein paar Restaurants, Bäckereien, zwei Cafés, zwei Ärzte und ein Einkaufszentrum. Verschiedene Modegeschäfte, Grün- und Parkanlagen, Fitnessstudios, eine Bar und eine Buchhandlung sind ebenso in der Nähe vorhanden.
Sonstige Angaben
Gerne stehen wir Ihnen für einen gemeinsamen Besichtigungstermin und weitere Informationen zur Verfügung.
Alle Angaben ohne Gewähr. Irrtum vorbehalten.
Sie erreichen uns von montags bis freitags zwischen 08.00 bis 16.00 Uhr unter:
Büro 03907 / 42169
Mobil 0170 / 3476375
Mail info@betreuungpur.de
Ihr H. Schwarzlose Immobilien Team
Bahnhofstraße 23, 39638 Gardelegen
www.schwarzlose-immobilien.de
Grundriss
Grundriss EG
>
>
Grundriss OG
>
>
Adresse
Freiligrathstraße 3, 39638 Gardelegen
Interessante Orte
Preis- und Lageinformationen
Preistrend für Bestandsimmobilien in Gardelegen