Altbauen sind nicht nur optische Highlights in vielen Stadtbildern, sie verkörpern auch eine besondere Wohnkultur. Wer in einem sanierten Altbau wohnt, genießt die historische Architektur und die handwerklichen Details vergangener Epochen, ohne auf modernen Wohnkomfort verzichten zu müssen. Sie verbinden den Charme vergangener Zeiten mit den Annehmlichkeiten des modernen Lebens, wie einer verbesserten Energieeffizienz, modernisierten Bädern und neuer Haustechnik.
2,5 ZKB:
Räumlichkeiten:
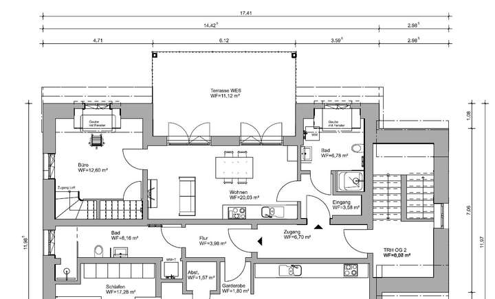
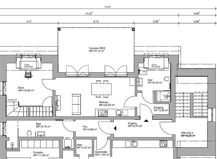
OG: Garderobe, Wohnküche mit EBK, gr. Terrassen-Balkon (Süd), Büro, Abstsllraum, Bad: bodentiefe Dusche, WC, Waschtisch + Unterschrank, HHK, Waschmaschinenanschluss
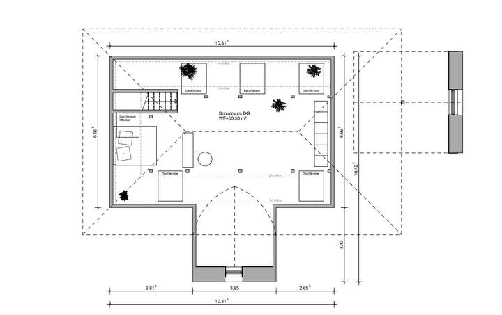
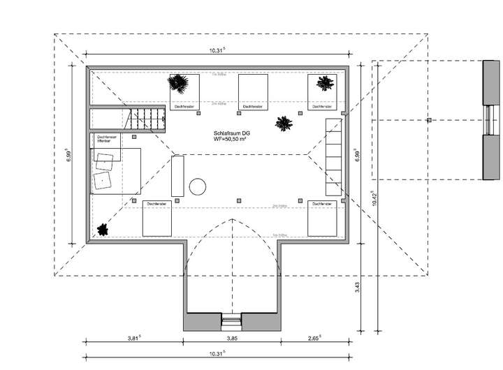
DG: großes Wohnstudio mit Schlafbereich
Sonstiges: Kellerabteil, Kfz-Stellplatz, Carport (auf Wunsch kann ein weiteres Carport angemietet werden)
Fakten:
- Luftwärmepumpe + PV-Anlage
- Komplett Fußbodenheizung mit Einzelraumsteuerung
- Kunststofffenster 3-fach verglast mit elektrischen Rollläden
- Massivbauweise + 20 cm WDVS
- Wasser-Enthärtungsanlage
- Dezentrale Be- u. Entlüftungsanlage
- Kassetten-Türen in Weiß
- Böden: Vinyl Fischgräte in Holzoptik, Fliesen 60 x 60 cm
- Einbauküche inkl. Elektrogeräte für 45,-- € im Monat
- Carport für 45,-- € im Monat
- Kfz-Stellplatz für 25,-- € im Monat
- Lan- u. TV-Anschlüsse in allen Zimmern
- Deckenspots im Bad
- Komplette Badausstattung
- Hausmeister und Hausverwaltung vorhanden
uvm.
MIETVORAUSSETZUNG:
- Unbefristeter Arbeitsvertrag oder Rentenbescheid
- max. 2 Personenhaushalt
Historie trifft Moderne: Bezaubernde Maisonette-Wohnung mit EBK u. Carport in saniertem Altbau
Kevenhüller Str. 2,
92339 Beilngries
Auf Karte anzeigen
Infos
| Wohnungskategorie | Maisonette |
|---|---|
| Wohnfläche ca. | 100 m2 |
| Bezugsfrei ab | 01.03.2026 (oder auf Absprache) |
| Zimmer | 2,5 |
| Schlafzimmer | 2 |
| Badezimmer | 1 |
| Haustiere | Nach Vereinbarung |
| Garage/Stellplatz | Carport |
| Anzahl Garage/Stellplatz | 2 |
Kosten
| Kaltmiete |
1.080 € |
|---|---|
| Nebenkosten | + 190 € |
| Heizkosten | in Nebenkosten enthalten |
| Gesamtmiete | 1.270 € |
| Kaution o. Genossenschaftsanteile | 3.510,-- € |
Weiter mieten oder doch kaufen?
Wer in Miete wohnt, überweist dem Vermieter im Laufe der Jahre hohe Summen, die sich
auch in die eigenen vier Wände investieren lassen könnten.
Bausubstanz & Energieausweis
| Baujahr | 1920 |
|---|---|
| Objektzustand | Neuwertig |
| Qualität der Austattung | Gehoben |
| Heizungsart | Fußbodenheizung |
| Wesentliche Energieträger | Erdwärme |
| Energieausweis | liegt vor |
| Energieausweistyp | Bedarfsausweis |
| Energieverbrauchskennwert | 15,8 kWh/(m²*a) |
| Energieeffizienzklasse | A+ |
15,8
kWh/(m²*a)
Energieeffizienzklasse A+
- A+
- A
- B
- C
- D
- E
- F
- G
- H
- 0
- 25
- 50
- 75
- 100
- 125
- 150
- 175
- 200
- 225
- >250
Beschreibung des Objekts
Lage
Der staatlich anerkannte Erholungsort Beilngries wird auch die "Perle des Altmühltales" bezeichnet. Mit ca. 10.000 Einwohnern liegt die Stadt - umgeben von bewaldeten Höhen - im Norden am Main-Donau-Kanal und im Süden am Zusammenfluß von Sulz und Altmühl, inmitten des Naturparks Altmühltal. Zur A9 München-Nürnberg sind es 10 km.
Der historische Altstadtkern mit seinen breiten, behäbigen Bürgerhäusern und Gaststätten und seinen engen Gäßchen ist von einer weitgehend erhaltenen Stadtmauer umgeben. Durch die gepflegte Gastronomie sowie seine zentrale und verkehrsgünstige Lage im Altmühltal bzw. Bayern hat sich Beilngries in den letzten Jahren zu einem Schwerpunkt des Fremdenverkehrs entwickelt.
Überragt wird Beilngries vom Barockschloß Hirschberg. Diese ehemalige Sommerresidenz der Eichstätter Fürstbischöfe mit den wuchtigen Türmen einer früheren Grafenburg dient heute als Exerzitienhaus der Diözese Eichstätt.
Beilngries bietet viele Möglichkeiten zur Freizeitgestaltung:
Hallen- und Freibad, Tennis, Angeln, Reiten, Motor- u. Segelflugplatz, Jachthafen, ausgedehntes Wanderwegnetz und den Radwanderweg Eichstätt-Beilngries-Kelheim. Ein Golfplatz (9-Loch) ist auch vorhanden.
Als Zentrum bietet Beilngries alle Einkaufsmöglichkeiten. Auch industriell ist Beilngries führend im Altmühltal. Entsprechend sind auch Arbeitsplätze vorhanden.
Drei Kindergärten, Grund-, Mittel-, Realschule und Gymnasium runden die gesunde Struktur ab und gewährleisten somit ein sehr gutes Wohnumfeld.
Mehr Informationen über Beilngries und Umfeld unter www.beilngries.de
Sonstige Angaben
Wir würden uns freuen, Sie bei einem persönlichen Besichtigungstermin begrüßen zu dürfen.
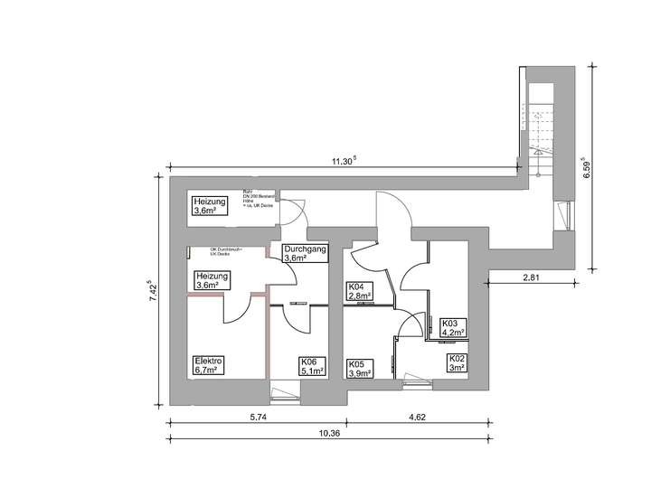
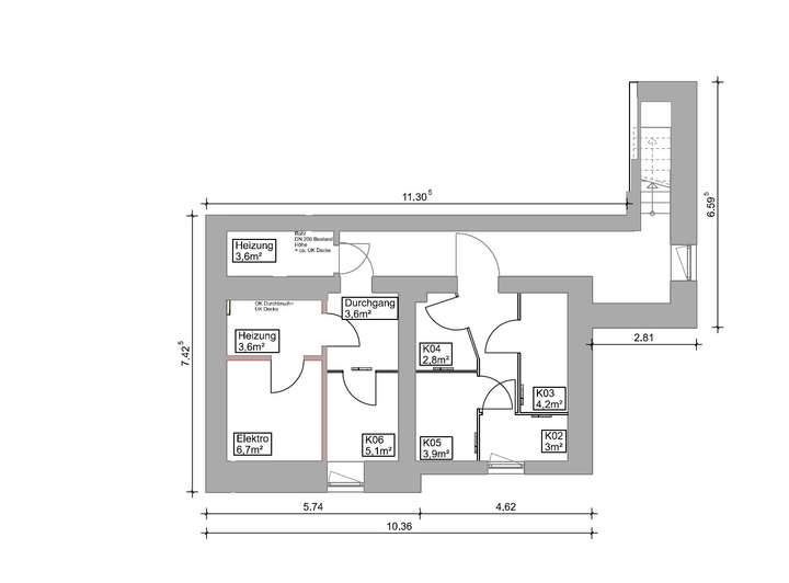
Grundriss
Grundriss OG W6
>
>
Grundriss DG
>
>
WE06 Gesamt Vermietung Grundri
>
>
Grundriss Keller
>
>
Adresse
Kevenhüller Str. 2, 92339 Beilngries
Interessante Orte
Preis- und Lageinformationen
Preistrend für Bestandsimmobilien in Beilngries