+++Bitte nutzen Sie zur Erstkontaktaufnahme ausschließlich das Kontaktanfrageformular des Immobilienportals und stellen sich schriftlich vor.+++
Freuen Sie sich auf Ihr neues, freistehendes Einfamilienhaus in Lich!
In einem bereits gewachsenen Wohnumfeld mit überwiegend 1- und 2-Familienhäusern befindet sich dieses schmucke Einfamilienhaus, welches im Jahr 2022 mit viel Liebe zum Detail kernsaniert wurde. Mit einem durchdachten Energiekonzept wurde ein hoher Energiestandard erreicht. Auch die restliche Ausstattung lässt keine Wünsche offen.
Die wichtigsten Merkmale im Überblick:
- in fußläufiger Entfernung zu Einkaufsmöglichkeiten gelegen
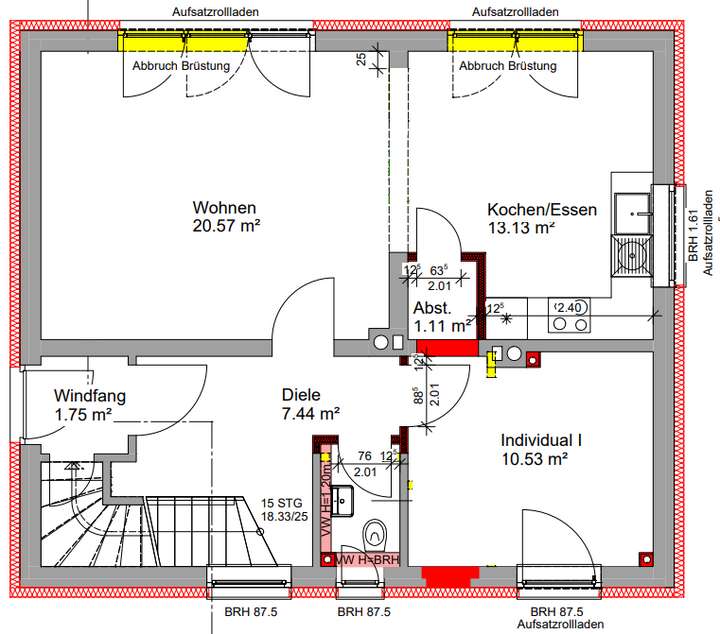
- moderne Grundrissgestaltung mit offener Küche
- praktische Abstellkammer nahe der Küche
- Tageslicht-Gäste-WC im Eingangsbereich
- offener Wohn-/Ess-/Küchenbereich mit Terrassenzugang
- wertige Einbauküche kann gegen Abstandszahlung vom Vormieter übernommen werden
- große Südterrasse und pflegeleicht angelegter Garten (sichtgeschützt; "Garten an Garten")
- ca. 10,5m² großer Individualraum im EG, ideal als Gäste-Zimmer oder Büro nutzbar
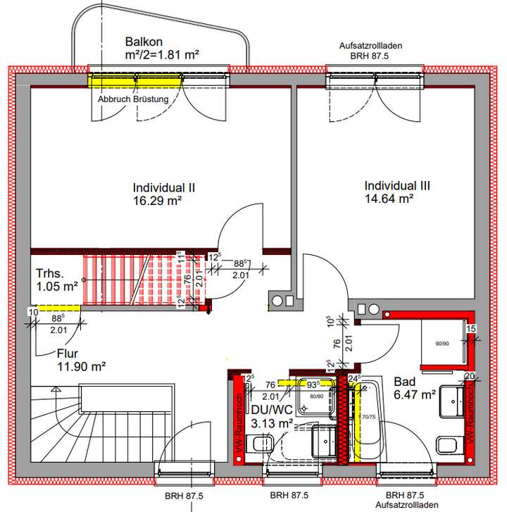
- zwei große Schlafzimmer mit ca. 16m² und 14,5m² (eines davon mit Balkon) im OG
- zwei moderne Tageslichtbäder im OG
- großes Studiozimmer mit zusätzlichen Dachflächenfenster im DG
- überwiegend breite und bodentiefe Fensterfronten bieten optimale Belichtung
- großer Keller mit Waschküche und Lagerfläche
- Zugang des Kellers auch von außen (ideal für Fahrräder)
- inkl. 1 Einzelgarage
- niedrige Heiz- und Warmwasserkosten dank energieeffizientem Gebäudestandard
- frei ab sofort oder nach Absprache
Hinweis zum Mietvertrag: Mindestmietdauer 2 Jahre, gerne länger.
EnEV: B: 31,6 kWh/m²a, Bj. 1950/2023, Strom, A.
Das Haus wird auch zum Verkauf angeboten. Sobald ein Mieter gefunden ist, werden die Verkaufsaktivitäten eingestellt und es wird dann auch kein Verkauf mehr angestrebt.
Sie haben weitere Fragen oder wünschen einen Besichtigungstermin? Ich freue mich auf Ihre Kontaktaufnahme!
Kernsaniertes Einfamilienhaus in der Kernstadt Lich zur langfristigen Miete!
Mengesstraße 63,
35423 Lich
Auf Karte anzeigen
Infos
| Haustyp | Einfamilienhaus |
|---|---|
| Etagenzahl | 3 |
| Wohnfläche ca. | 138 m2 |
| Nutzfläche | 56 m2 |
| Grundstücksfläche | 452 m2 |
| Bezugsfrei ab | sofort oder nach Absprache |
| Zimmer | 5 |
| Schlafzimmer | 4 |
| Badezimmer | 2 |
| Garage/Stellplatz | Garage |
| Anzahl Garage/Stellplatz | 1 |
Kosten
| Kaltmiete |
1.750 € |
|---|---|
| Nebenkosten | + 400 € |
| Heizkosten | in Nebenkosten enthalten |
| Gesamtmiete | 2.150 € |
| Kaution o. Genossenschaftsanteile | 3 Monatskaltmieten |
Weiter mieten oder doch kaufen?
Wer in Miete wohnt, überweist dem Vermieter im Laufe der Jahre hohe Summen, die sich
auch in die eigenen vier Wände investieren lassen könnten.
Bausubstanz & Energieausweis
| Baujahr | 1950 |
|---|---|
| Letzte Sanierung | 2022 |
| Objektzustand | Neuwertig |
| Qualität der Austattung | Gehoben |
| Heizungsart | Wärmepumpe |
| Wesentliche Energieträger | Strom |
| Energieausweis | liegt vor |
| Energieausweistyp | Bedarfsausweis |
| Energieverbrauchskennwert | 31,6 kWh/(m²*a) |
| Energieeffizienzklasse | A |
31,6
kWh/(m²*a)
Energieeffizienzklasse A
- A+
- A
- B
- C
- D
- E
- F
- G
- H
- 0
- 25
- 50
- 75
- 100
- 125
- 150
- 175
- 200
- 225
- >250
Beschreibung des Objekts
Ausstattung
- wertiger Bodenbelag
- elektrisch bedienbare Rollläden
- 3-fach-verglaste Kunststofffenster
- SAT-TV-Anschluss in jedem Zimmer
- beheizt wird das Haus über eine moderne Luft-/Wasserwärmepumpe
- Vollwärmeschutz
- Fußbodenheizung
- 6,66kWp-Photovoltaikanlage
Lage
35423 Lich, Mengesstraße 63.
Die Stadt Lich ist bekannt und beliebt durch Ihre malerische Innenstadt mit tollen Fachwerkhäusern, das Schloß und dem dazugehörigen Park und natürLICH auch durch das heimische Bier. Die Licher Innenstadt bietet Ihnen alle Möglichkeiten zum Einkaufen, Bummeln, Entspannen und Schlemmen. Dafür sorgen zahlreiche Geschäfte, Cafes und Restaurants. Die Infrastruktur der Stadt kann man als sehr gut bezeichnen. Sie erreichen in wenigen Minuten die Autobahnen A5 Frankfurt-Kassel, sowie auch die A45 Hanau-Dortmund. Auch für Familien mit Kindern ist Lich sehr attraktiv. In der Kernstadt befinden sich drei Schulen für die Klassen 1-10 und fünf Kindergärten. Die nähere Umgebung von Lich lädt zur Erkundung ein. Zum Erholungspark Hoher Vogelsberg ist es nicht weit. Die Stadt Giessen ist in ca. 10 Minuten mit dem Auto zu erreichen und bietet Ihnen weitere Einkaufs- und Unterhaltungsmöglichkeiten. Freizeit und Sportaktivitäten gibt es in Lich zu genüge. Einen neuen modernen Golfplatz gibt es direkt vor den Toren der Stadt.
Sonstige Angaben
Exklusiv für Immobilieneigentümer:
Sie planen den Verkauf Ihrer Immobilie und sind unsicher über den zu erwartenden Kaufpreis? Eine Online-Ersteinschätzung erhalten sie völlig kostenlos und sofort unter www.iwes24.de! Für eine detaillierte Beratung stehe ich Ihnen gerne unter 0641-9660750 oder seibert@iwes24.de zur Verfügung.
Weitere Angebote finden Sie unter www.iwes24.de!
Dieses Exposé wurde nach bestem Wissen erstellt. Grundlage der vorstehenden Angaben sind Informationen und/oder Unterlagen, welche uns seitens des Eigentümers/Vermieters oder Dritter zur Verfügung.
Grundriss
Grundriss EG
>
>
Grundriss OG
>
>
Grundriss DG
>
>
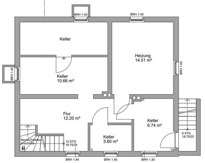
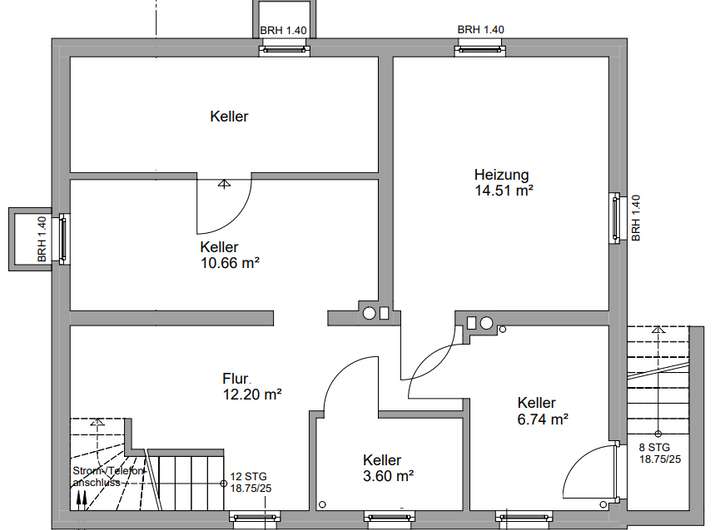
Grundriss KG
>
>
Adresse
Mengesstraße 63, 35423 Lich
Interessante Orte
Preis- und Lageinformationen
Preistrend für Bestandsimmobilien in Lich