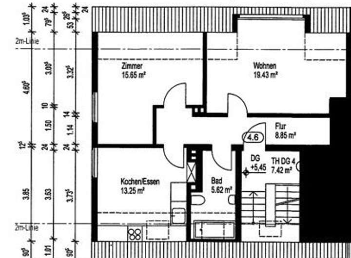
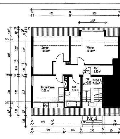
Diese gepflegte 2-Zimmer-Wohnung mit ca. 62,8 m² Wohnfläche befindet sich im 3. Obergeschoss eines Mehrfamilienhauses in Solingen-Wald. Das Baujahr ist 1958 und die Wohnung verfügt über eine normale Innenausstattung. Ein Badezimmer sowie eine eigene Gas-Etagenheizung sind vorhanden. Ein Keller bietet zusätzlichen Stauraum. Die Wohnung ist ab sofort verfügbar.
Die in diesem Exposé dargestellten Bilder dienen der besseren Veranschaulichung. Teilweise handelt es sich um Visualisierungen bzw. beispielhafte Darstellungen. Maßgeblich ist der tatsächliche Zustand der Immobilie.
Infos
| Wohnungskategorie | Dachgeschoss |
|---|---|
| Etage | 3 von 3 |
| Wohnfläche ca. | 62 m2 |
| Bezugsfrei ab | ab sofort |
| Zimmer | 2 |
| Schlafzimmer | 2 |
| Badezimmer | 1 |
| Haustiere | Nein |
Kosten
| Kaltmiete |
490 € |
|---|---|
| Nebenkosten | + 140 € |
| Heizkosten | keine Angabe |
| Gesamtmiete | 630 € (zzgl. Heizkosten) |
| Kaution o. Genossenschaftsanteile | 1470 |
Weiter mieten oder doch kaufen?
Wer in Miete wohnt, überweist dem Vermieter im Laufe der Jahre hohe Summen, die sich
auch in die eigenen vier Wände investieren lassen könnten.
Bausubstanz & Energieausweis
| Baujahr | 1958 |
|---|---|
| Objektzustand | Gepflegt |
| Qualität der Austattung | Normal |
| Heizungsart | Etagenheizung |
| Wesentliche Energieträger | Gas |
| Energieausweis | liegt vor |
| Energieausweistyp | Verbrauchsausweis |
| Energieverbrauchskennwert | 157,5 kWh/(m²*a) |
| Energieeffizienzklasse | E |
157,5
kWh/(m²*a)
Energieeffizienzklasse E
- A+
- A
- B
- C
- D
- E
- F
- G
- H
- 0
- 25
- 50
- 75
- 100
- 125
- 150
- 175
- 200
- 225
- >250
Beschreibung des Objekts
Ausstattung
- Tageslichtbad
- geräumige Küche
- große, helle Zimmer
- perfekt für Singles oder Paare
Lage
Die Immobilie befindet sich in belebter Wohnlage in Solingen Wald. In unmittelbarer Umgebung des Objekts verkehren einige Buslinien. In Laufnähe gibt es einige Supermärkte, Restaurants, Cafés, zwei Bäckereien und einen Arzt. Ein paar Fitnessstudios, Grün- und Parkanlagen, zwei Modegeschäfte, eine Buchhandlung und eine Reinigung finden Sie ebenfalls vor Ort.
Sonstige Angaben
Wir bemühen uns, schnellstmöglich auf Ihre Anfragen zu reagieren. Bitte machen Sie es uns einfacher Ihnen einen Besichtigungstermin anbieten zu können und übermitteln Sie uns folgende Angaben:
- Ihr gewünschter Einzugstermin
- Anzahl einziehender Personen
- Etwas zu Ihrer Person
- Ihr Beruf
- Ihr monatliches Netto-Einkommen
Herzlichen Dank!
Weitere Dokumente
Core Selbstauskunft VermietungGrundriss
Grundriss
>
>
Adresse
Dürerstr. 4, 42719 Solingen
Interessante Orte
Preis- und Lageinformationen
Preistrend für Bestandsimmobilien in Wald