Gelegen in einer einzigartigen Stadtvilla aus dem 20. Jahrhundert präsentiert sich diese besondere Dachgeschosswohnung als stilvoller Rückzugsort für Liebhaber klassischer Architektur und großzügiger Raumaufteilung. Es erwartet Sie ein Wohnerlebnis der Extraklasse – mit viel Charakter, Charme und einer Ausstattung, die keine Wünsche offenlässt.
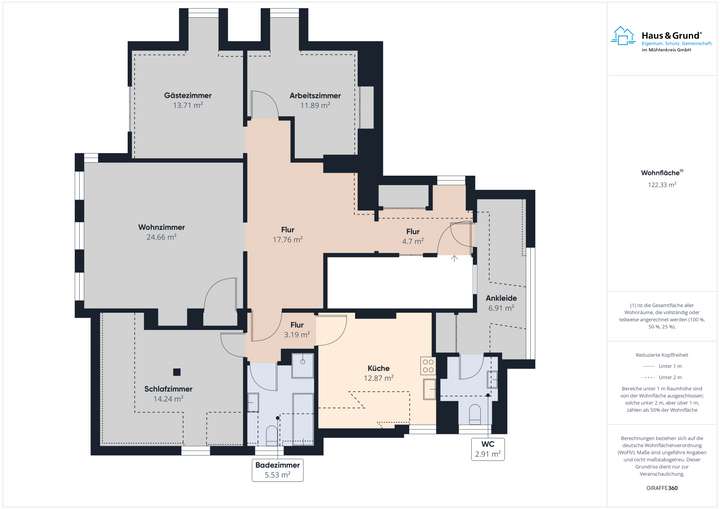
Das lichtdurchflutete Wohnzimmer bildet das Herzstück dieser Wohnung und gewährt einen tollen Ausblick über die Stadt. Die Küche ist mit einer Einbauküche inkl. Herd, Backofen, Kühlschrank und Geschirrspüler ausgestattet. Im hellen Tageslichtbad genießen Sie den Komfort von Badewanne und Dusche. Zudem gibt es ein separates WC für Ihre Gäste. Als weitere Räumlichkeiten bieten ein Schlafzimmer, ein Arbeitszimmer, eine Ankleide sowie ein Gästezimmer viel Raum für individuelle Ansprüche.
Das Wohnzimmer, das Gästezimmer, das Arbeitszimmer sowie die Ankleide und der Flur sind jeweils mit maßgefertigten Wandschränken ausgestattet, die sich harmonisch in das Raumkonzept einfügen und praktischen Stauraum bieten.
Abgerundet wird dieses besondere Wohnangebot durch einen eigenen Kellerraum sowie einen PKW-Stellplatz, der im Mietangebot enthalten ist.
Wohnen mit Stil und Geschichte - Exklusive Single-Dachgeschosswohnung in eleganter Altbauvilla
32427 Minden
Die vollständige Adresse der Immobilie erhalten Sie vom Anbieter.
Auf Karte anzeigen
Die vollständige Adresse der Immobilie erhalten Sie vom Anbieter.
Infos
| Wohnungskategorie | Dachgeschoss |
|---|---|
| Etage | 2 von 2 |
| Wohnfläche ca. | 122 m2 |
| Nutzfläche | 15 m2 |
| Bezugsfrei ab | nächstmöglicher Termin |
| Zimmer | 4,5 |
| Schlafzimmer | 1 |
| Badezimmer | 1 |
| Haustiere | Nein |
| Garage/Stellplatz | Außenstellplatz |
| Anzahl Garage/Stellplatz | 1 |
Kosten
| Kaltmiete |
800 € |
|---|---|
| Nebenkosten | + 150 € |
| Heizkosten | keine Angabe |
| Gesamtmiete | 950 € (zzgl. Heizkosten) |
| Kaution o. Genossenschaftsanteile | 2 Monatskaltmieten |
Weiter mieten oder doch kaufen?
Wer in Miete wohnt, überweist dem Vermieter im Laufe der Jahre hohe Summen, die sich
auch in die eigenen vier Wände investieren lassen könnten.
Bausubstanz & Energieausweis
| Baujahr | 1912 |
|---|---|
| Objektzustand | Vollständig Renoviert |
| Qualität der Austattung | Gehoben |
| Heizungsart | Etagenheizung |
| Wesentliche Energieträger | Erdgas leicht |
| Energieausweis | liegt zur Besichtigung vor |
Beschreibung des Objekts
Ausstattung
- 4,5 ZKB
- Einbauküche
- Wandschränke
- Gäste-WC
- Ankleide
- Video-Türsprechanlage
- Holzdielenboden, Fliesen, Teppichboden
- sep. Gastherme
- PKW-Stellplatz
- Kellerraum
- Reinigungsservice für Treppenhaus und Fenster
Lage
Die Wohnung befindet sich in Minden. In näherer Umgebung gibt es einige Restaurants, Ärzte, Bäckereien, Cafés und Supermärkte. Die Mindener Innenstadt erreichen Sie zu Fuß in wenigen Minuten. Auch die umliegenden Städte und Gemeinden sowie die Autobahn A2 sind von hier aus gut zu erreichen.
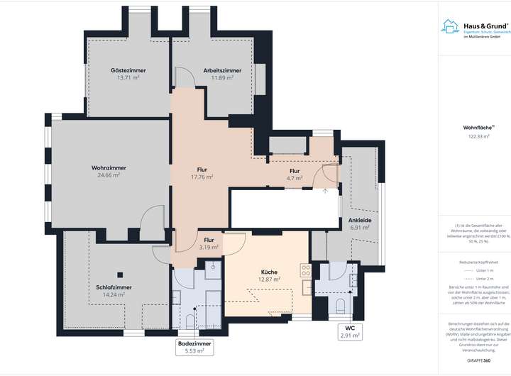
Grundriss
Grundriss
>
>
Adresse
32427 Minden
Interessante Orte
Preis- und Lageinformationen
Preistrend für Bestandsimmobilien in Minden