Exklusive Wohnung direkt am Rathausplatz!
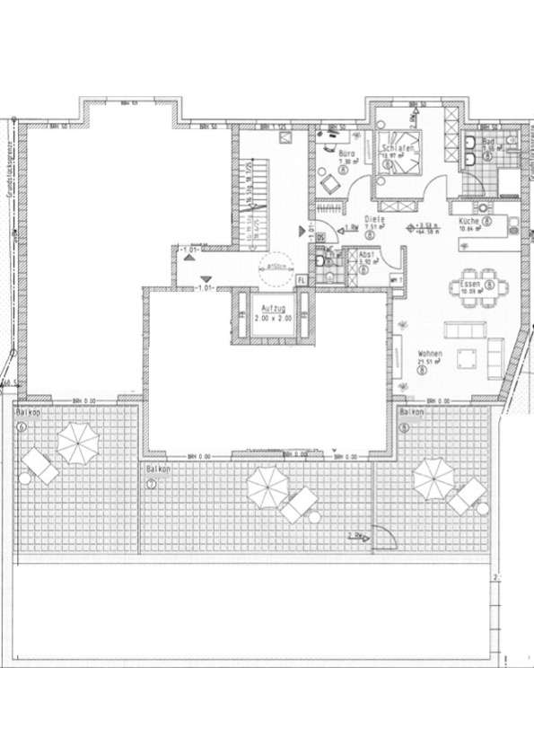
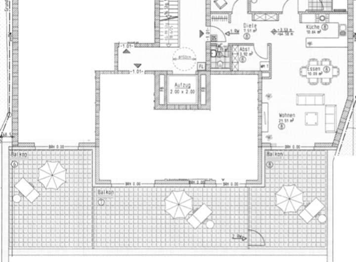
In absolut zentraler Lage – direkt am Rathausplatz und in direkter Nachbarschaft zum Stadtpark – erwartet Sie diese hochwertige, barrierefreie Neubauwohnung mit einer großzügigen Wohnfläche. Hier wohnen Sie mitten im Geschehen – und genießen dennoch Ihre private Ruheoase mit einer beeindruckenden 30 m² großen Terrasse, hochwertig gefliest in eleganter Natursteinoptik.
Die Wohnung liegt im 1. Obergeschoss eines modernen Mehrfamilienhauses mit Aufzug und bietet neben großzügigem Wohnkomfort auch höchste Energieeffizienz nach KfW 40-Standard. Beheizt wird das Gebäude über eine Erdwärmepumpe – besonders nachhaltig und kosteneffizient. Strom und Wärme rechnen Sie direkt mit den Versorgern ab.
Raumaufteilung:
- Großzügiges Wohn- und Esszimmer mit offener Küche und Zugang zur Terrasse
- Elternschlafzimmer
- Kinderzimmer (alternativ Büro oder Gästezimmer) Hinweis: Das Zimmer ist relativ klein!
- Diele
- Hochwertig ausgestattetes Badezimmer
- Separater Abstellraum (direkt in der Wohnung)
- Hochwertiges, modernes Gäste WC
Aber vor allem: Die Terrasse ist ein echtes Highlight – mit ihren 30 m² bietet sie Platz für Lounge, Essbereich und Pflanzen – ein echtes zweites Wohnzimmer unter freiem Himmel.
Infos
| Wohnungskategorie | Terrassenwohnung |
|---|---|
| Etage | 1 von 3 |
| Wohnfläche ca. | 97 m2 |
| Bezugsfrei ab | 01.01.2026 |
| Zimmer | 3 |
| Schlafzimmer | 2 |
| Badezimmer | 1 |
| Haustiere | Nach Vereinbarung |
Kosten
| Kaltmiete |
1.295 € |
|---|---|
| Nebenkosten | + 150 € |
| Heizkosten | + 0 € |
| Gesamtmiete | 1.445 € (zzgl. Heizkosten) |
| Kaution o. Genossenschaftsanteile | 4500 |
Weiter mieten oder doch kaufen?
Wer in Miete wohnt, überweist dem Vermieter im Laufe der Jahre hohe Summen, die sich
auch in die eigenen vier Wände investieren lassen könnten.
Bausubstanz & Energieausweis
| Baujahr | 2024 |
|---|---|
| Objektzustand | Neuwertig |
| Qualität der Austattung | Gehoben |
| Heizungsart | Fußbodenheizung |
| Wesentliche Energieträger | Erdwärme |
| Energieausweis | liegt zur Besichtigung vor |
Beschreibung des Objekts
Ausstattung
Hochwertige Ausstattung:
- Massivbauweise
- Energieeffizienzhaus 40 mit Erdwärmepumpe
- Allgemeinstrom über eigene PV-Anlage
- Vinyl-Bodenbelag in Holzoptik
- Hochwertige 60x60 Fliesen (Bäder)
- Großformatige Feinsteinzeugfliesen in Natursteinoptik (Terasse/ Balkon)
- Einzelraumgesteuerte Fußbodenheizung
- Kunststofffenster mit Dreifachverglasung und elektrischen Rollläden
- Netzwerkanschlüsse und Glasfaser
- Videogegensprechanlage
- Sicherer Fahrrad/ E-Bike Raum im EG
- optionaler Garagenstellplatz
- Komplett barrierefrei
Hinweis zur Küche: Eine hochwertige Einbauküche kann auf Wunsch übernommen bzw. nach Absprache zusätzlich erworben werden. Alternativ können Sie natürlich auch eine eigene Küche, ganz nach Ihren Vorstellungen einbauen lassen.
Lage
Ortszentrum von Wegberg. Direkt am Rathausplatz und Stadtpark gelegen. Nahversorger, Ärzte, Cafés etc., alles fußläufig erreichbar. Diese Lage spricht für sich!
Grundriss
WE 8
>
>
Adresse
Rathausplatz 11, 41844 Wegberg
Interessante Orte
Preis- und Lageinformationen
Preistrend für Bestandsimmobilien in Wegberg