Die Reihenhäuser werden in zentrumsnaher Lage von Elmshorn errichtet. Jedes Reihenhaus verfügt über 5 Zimmer auf drei Etagen mit einer Wohnfläche von ca. 135,42 m².
Die Bezugsfertigkeit ist für den 01. Dezember 2025 geplant.
Neubau - Mittelreihenhaus in ruhiger Lage von Elmshorn unweit des Liether Walds
Hermann-Weyl-Straße 74,
25336 Elmshorn
Auf Karte anzeigen
Infos
| Haustyp | Reihenmittelhaus |
|---|---|
| Wohnfläche ca. | 135 m2 |
| Grundstücksfläche | 151 m2 |
| Bezugsfrei ab | 01.12.2025 |
| Zimmer | 5 |
| Haustiere | Nein |
| Garage/Stellplatz | Außenstellplatz |
| Anzahl Garage/Stellplatz | 1 |
Kosten
| Kaltmiete |
1.695 € |
|---|---|
| Nebenkosten | + 160 € |
| Heizkosten | keine Angabe |
| Gesamtmiete | 1.855 € (zzgl. Heizkosten) |
| Kaution o. Genossenschaftsanteile | 5.085 € |
Weiter mieten oder doch kaufen?
Wer in Miete wohnt, überweist dem Vermieter im Laufe der Jahre hohe Summen, die sich
auch in die eigenen vier Wände investieren lassen könnten.
Bausubstanz & Energieausweis
| Objektzustand | Erstbezug |
|---|---|
| Qualität der Austattung | Gehoben |
| Heizungsart | Wärmepumpe |
| Wesentliche Energieträger | Strom |
| Energieausweis | liegt vor |
| Energieausweistyp | Bedarfsausweis |
| Energieverbrauchskennwert | 17,2 kWh/(m²*a) |
Beschreibung des Objekts
Ausstattung
Das Mittelreihenhaus verfügt über 5 großzügig geschnittene Zimmer, eine offene Wohnküche, ein großzügiges Duschbad sowie ein Gäste-WC. Die Raumaufteilung entnehmen Sie gern den Grundrissen.
Lassen Sie sich in der Küche von modernen Ausstattungsmerkmalen wie einem BORA-Kochfeld, einer Kühl-/Gefrierkombination sowie einer Geschirrspülmaschine überzeugen. Zudem punktet die Küche mit ausreichend Staumöglichkeiten sowie großzügigen Arbeitsflächen.
Vinylplanke in Holzoptik schafft in allen Wohn- und Schlafzimmern, den Fluren sowie der Küche eine gemütliche Atmosphäre. Der Hauswirtschaftsraum, das Duschbad und das Gäste-WC sind hell gefliest.
Das Tageslichtbad im Obergeschoss ist mit einer bodengleichen Dusche ausgestattet. Zwei Waschtische bieten Familien mit Kindern zusätzlichen Komfort. Die Bäder sind mit wertigen Sanitärobjekten und Armaturen von Markenherstellern ausgestattet.
Abstellmöglichkeiten bieten sich im Hauswirtschaftsraum im Erdgeschoss sowie im Abstellraum im Dachgeschoss. Ein Geräteschuppen im Außenbereich bietet Stauraum für Fahrräder und Gartenmöbel.
Ihre Waschmaschine und Trockner können in einer dafür vorgesehenen Nische im Badezimmer aufgestellt werden.
Genießen Sie wohlige Wärme ganz nach Ihren Bedürfnissen über die raumweise regelbare Fußbodenheizung. Einzig im Dachgeschoss sind Heizkörper verbaut.
Die Terrasse hat eine Südwest-Ausrichtung. Ihren PKW können Sie auf dem Parkplatz am Haus abstellen.
Lage
Die Hermann-Weyl-Straße liegt in einem ruhigen Wohngebiet im südlichen Teil von Elmshorn. Die Straße befindet sich in einer verkehrsberuhigten Zone mit überwiegend Einfamilien- und Reihenhäusern, was sie besonders attraktiv für Familien macht.
Einkaufsmöglichkeiten für den täglichen Bedarf wie zum Beispiel Supermärkte, Bäcker oder Apotheken sind in wenigen Minuten erreichbar. Auch Kindergärten, Schulen und Ärzte befinden sich in der näheren Umgebung.
Der Bahnhof Elmshorn ist von hier in ca. 10 Minuten mit dem Fahrrad oder dem Bus erreichbar und bietet regelmäßige Verbindungen nach Hamburg. Die A23 ist ebenfalls nur wenige Fahrminuten entfernt und ermöglicht eine hervorragende Anbindung an die Metropolregion Hamburg sowie Richtung Heide/Nordsee.
Naherholungsgebiete wie der Liether Wald sind ebenfalls gut erreichbar und laden zu ausgedehnten Spaziergängen im Grünen ein.
Die Hermann-Weyl-Straße kombiniert alle Vorzüge ruhigen Wohnens mit denen des stadtnahen Wohnens – ein ideales Wohnumfeld für alle, die nach einem Rückzugsort suchen, der dennoch mitten im täglichen Leben liegt.
Sonstige Angaben
Bitte beachten Sie, dass es sich bei dem angebotenen Mittelreihenhaus um eine Beispielwohnung handelt und es damit zu Änderungen in der endgültigen Ausführung kommen kann.
Die Innenaufnahmen stammen von einem Vergleichsobjekt und spiegeln nicht die tatsächliche räumliche Situation wider.
Ein baugleiches Mittelreihenhaus befindet sich in der Hermann-Weyl-Straße 82.
Die Kosten für Strom, Wasser und Abwasser werden vom Mieter mit dem jeweiligen Versorger abgerechnet. Die Nebenkostenvorauszahlung wurde anhand von Vergleichsobjekten geschätzt.
Bei Vertragsabschluss wird ein gegenseitiger Kündigungsausschluss von zwei Jahren gewünscht. Zudem werden sechs Staffelmietanpassungen in Höhe von 3% in jedem zweiten Vertragsjahr vereinbart.
Wir bitten um Verständnis, dass wir nur Anfragen berücksichtigen können, die vollständige Angaben zu Name und Adresse sowie eine Telefonnummer, unter der Sie tagsüber erreichbar sind, enthalten.
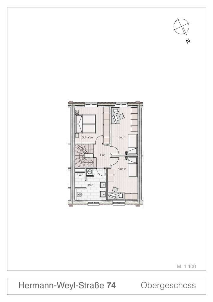
Grundriss
Grundriss EG
>
>
Grundriss OG
>
>
Grundriss DG
>
>
Adresse
Hermann-Weyl-Straße 74, 25336 Elmshorn
Interessante Orte
Preis- und Lageinformationen
Preistrend für Bestandsimmobilien in Elmshorn