Brauchen Sie eine Pause vom stressigen Alltag oder sehnen Sie sich einfach nach ein bisschen Erholung direkt am Strand?
Sollte eher die gewerbliche Anmietung im Fokus stehen ist dies selbstverständlich auch zu realisieren. Ob für
Ihre Hotelmitarbeiter, Pflegekräfte oder anderes Personal, wir bieten die passende Unterkunft.
Bei diesem Vermietungsangebot handelt es sich um ein Einfamilienhaus mit Wintergarten im wunderschönen Graal-Müritz direkt an der Ostsee. Das Haus enthält zudem eine weitere, separate Wohneinheit im Obergeschoss. Insgesamt beträgt die Gesamtwohnfläche ca. 132m² verteilt auf 8 Zimmer und 3 Bäder, zwei davon mit Dusche oder Wanne.
Das insgesamt idyllisch gelegene Objekt ist umgeben von Wald und befindet sich nur ca. 10 min fußläufig vom Ostseestrand.
Zusammengefasst:
- komplettes Haus zur Miete
- nur 10 Minuten Fußweg vom Ostseestrand
- ca. 132m² Wohnfläche
- 3 Bäder, Dusche und Wanne
- 2 Küchen
- 8 Zimmer
- 3 Etagen
- Kellergeschoss vorhanden
- moderner Wintergarten mit Gartenblick
- Stellplatz / Garage
- ruhige Lage
Bitte beachten Sie, dass es sich um eine befristete Vermietung handelt (vorerst 3 Jahre max. mit Option).
Für weitere Fragen stehen wir Ihnen jederzeit gern zur Verfügung!
" frisch, engagiert, solide "
Die Künne Immobilien Gruppe ist professioneller Dienstleister der Immobilienbranche und steht Ihnen in den Bereichen Projektentwicklung, Verkauf, Vermietung, Verwaltung und Facility Management zur Verfügung.
Für weitere Informationen und Einblicke besuchen Sie unsere Homepage: www.kuenne-gruppe.de Sie wollen Ihre Immobilie verkaufen? Egal ob Mehrfamilien- oder Einfamilienhaus, Eigentumswohnung, Grundstück oder Neubau- bzw. Bauträgerprojekt. Wir vermitteln kompetent, transparent und zügig Ihre Immobilie, bundesweit.
Ihr eigenes Haus direkt an der OSTSEE! Mit Wintergarten, Einbauküche und Einliegerwohnung!
Friedhofsweg 3,
18181 Graal-Müritz
Auf Karte anzeigen
Infos
| Wohnungskategorie | Etagenwohnung |
|---|---|
| Etage | 0 von 3 |
| Wohnfläche ca. | 132 m2 |
| Bezugsfrei ab | sofort |
| Zimmer | 8 |
| Garage/Stellplatz | Garage |
| Anzahl Garage/Stellplatz | 1 |
Kosten
| Kaltmiete |
0 € |
|---|---|
| Nebenkosten | keine Angabe |
| Heizkosten | in Nebenkosten enthalten |
| Gesamtmiete | 2.700 € (zzgl. Nebenkosten) |
| Kaution o. Genossenschaftsanteile | 2 Mieten |
Weiter mieten oder doch kaufen?
Wer in Miete wohnt, überweist dem Vermieter im Laufe der Jahre hohe Summen, die sich
auch in die eigenen vier Wände investieren lassen könnten.
Bausubstanz & Energieausweis
| Baujahr | 1931 |
|---|---|
| Objektzustand | Gepflegt |
| Heizungsart | Zentralheizung |
| Wesentliche Energieträger | Erdgas leicht |
| Energieausweis | liegt vor |
| Energieausweistyp | Bedarfsausweis |
| Energieverbrauchskennwert | 265,5 kWh/(m²*a) |
| Energieeffizienzklasse | H |
265,5
kWh/(m²*a)
Energieeffizienzklasse H
- A+
- A
- B
- C
- D
- E
- F
- G
- H
- 0
- 25
- 50
- 75
- 100
- 125
- 150
- 175
- 200
- 225
- >250
Beschreibung des Objekts
Lage
Das Seeheilbad Graal-Müritz ist mit rund 4.000 Einwohnern eine amtsfreie Gemeinde im Landkreis Rostock in Mecklenburg-Vorpommern und erstreckt sich über eine Länge von 5 Kilometern den Ostseestrand entlang. Der Ort ist gekennzeichnet durch die Rockstocker Heide, die idyllische Lage als Tor zum Darß und die Nähe zur Hansestadt Rockstock. Die Architektur wird wie in vielen anderen Kur- und Badeorten an der Ostseeküste durch zahlreiche Bauten im Stil der norddeutschen Bäderarchitektur geprägt. Graal-Müritz liegt an der Landesstraße L 22 zwischen Rostock und Ribnitz-Damgarten. Die nächstgelegene Autobahnanschlussstelle ist Rostock-Nord an der A 19. Der Bahnhof Graal-Müritz liegt an der Bahnstrecke Rövershagen–Graal-Müritz und wird von der Regionalbahnlinie RB 12 bedient.
Als Erholungsort bietet Graal-Müritz nicht nur eine attraktive Natur- und Küstenlandschaft, sondern auch diverse Freizeitaktivitäten in unmittelbarer Nähe.
Sonstige Angaben
Alle Angaben sind ohne Gewähr und basieren ausschließlich auf Informationen, die uns von unserem Auftraggeber zur Verfügung gestellt wurden. Wir übernehmen keine Gewähr für die Vollständig, Richtigkeit und Aktualität dieser Angaben
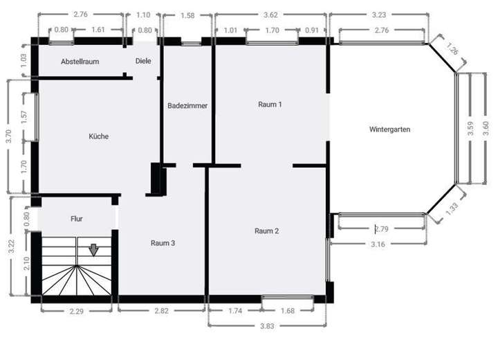
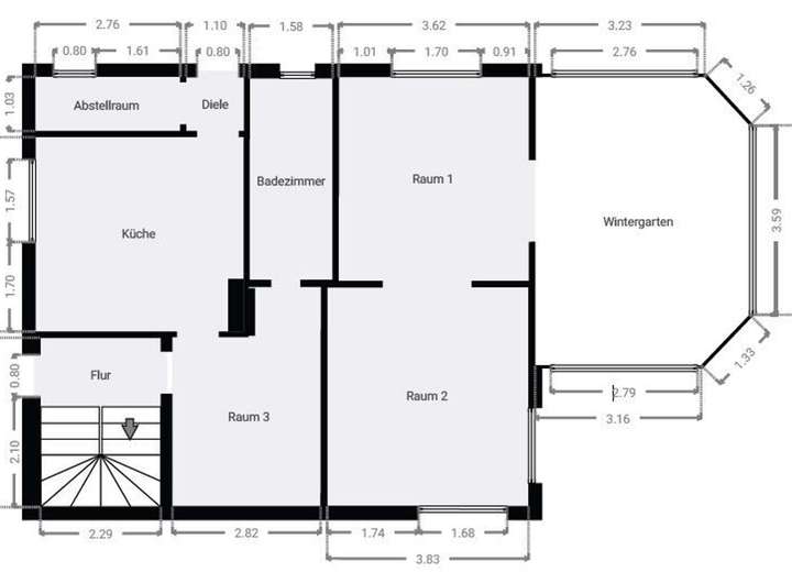
Grundriss
Grundriss EG
>
>
Grundriss 1.OG
>
>
Grundriss 2.OG
>
>
Grundriss Keller
>
>
Adresse
Friedhofsweg 3, 18181 Graal-Müritz
Interessante Orte
Preis- und Lageinformationen
Preistrend für Bestandsimmobilien in Graal-Müritz