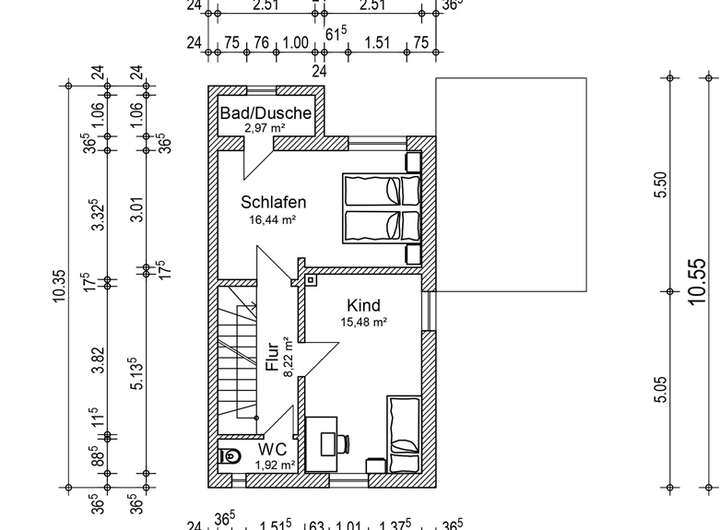
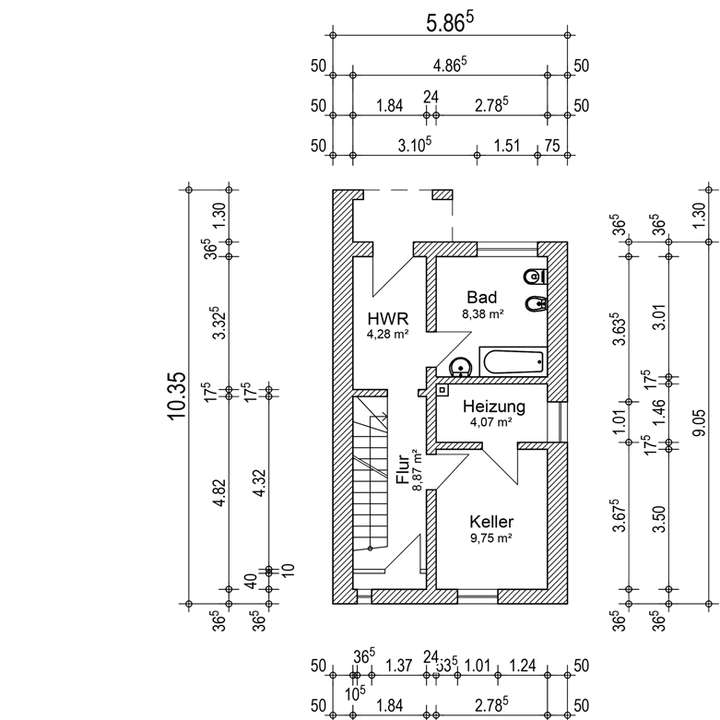
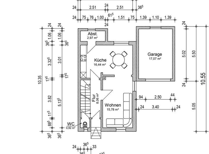
Das schmucke Nachkriegsgebäude präsentiert sich mit einer Wohnfläche von ca. 145 qm als wahres Raumwunder, dass im Jahr 2023 einer aufwendigen und liebevollen Renovierung unterzogen wurde, die auch eine Dachdämmung beinhaltete, deren Effizienz sich auch im Energieausweis widerspiegelt. So wurde zeitgemäßer Wohnraum auf drei Etagen geschaffen, der Platz in Hülle und Fülle bietet. Auf Eingangsebene sprich Hochparterre befinden sich in großzügiger Auslegung und in offenem Übergang der Küchen- und Wohnbereich sowie ein Gäste-WC. Das Obergeschoss birgt den Master-Bedroom mit Badezimmer en-suite und ein weiteres Schlafzimmer mit nebengelagertem Badezimmer. Highlight der Immobilie ist der das Dachgeschoss dominierende große, helle Arbeitsbereich, ergänzend zwei Abstellräume. Eine Bereicherung des Wohnkomforts ist die an der Gebäuderückseite befindliche Terrasse. Auch die praktischen Komponenten kommen nicht zu kurz, so verfügt das Gebäude über eine Vollunterkellerung, eine direkt am Gebäude anschließende Garage mit vorgelagerter Stellfläche. Und rundet zudem den hohen Nutzwert perfekt ab. In Summe, beste Wohnqualität in aufstrebender und zentraler Lage der Stadt Siegen.
City-Domizil am Siegufer
57072 Siegen
Die vollständige Adresse der Immobilie erhalten Sie vom Anbieter.
Auf Karte anzeigen
Die vollständige Adresse der Immobilie erhalten Sie vom Anbieter.
Infos
| Haustyp | Doppelhaushaelfte |
|---|---|
| Wohnfläche ca. | 145 m2 |
| Grundstücksfläche | 127 m2 |
| Bezugsfrei ab | 01.09.2025 |
| Zimmer | 4 |
| Schlafzimmer | 2 |
| Badezimmer | 2 |
| Garage/Stellplatz | Garage |
| Anzahl Garage/Stellplatz | 1 |
Kosten
| Kaltmiete |
1.300 € |
|---|---|
| Nebenkosten | + 100 € |
| Heizkosten | keine Angabe |
| Gesamtmiete | 1.400 € |
| Miete für Garage/Stellplatz | 50 € |
| Kaution o. Genossenschaftsanteile | 2.700,00 |
Weiter mieten oder doch kaufen?
Wer in Miete wohnt, überweist dem Vermieter im Laufe der Jahre hohe Summen, die sich
auch in die eigenen vier Wände investieren lassen könnten.
Bausubstanz & Energieausweis
| Baujahr | 1948 |
|---|---|
| Letzte Sanierung | 2023 |
| Objektzustand | Modernisiert |
| Qualität der Austattung | Gehoben |
| Heizungsart | Gas-Heizung |
| Wesentliche Energieträger | Gas |
| Energieausweis | liegt vor |
| Energieverbrauchskennwert | 93,0 kWh/(m²*a) |
Beschreibung des Objekts
Lage
Das Reihenendhaus befindet sich in zentraler Lage der Stadt Siegen, im Quartier Hammerhütte, einem Stadtbereich mit historischen Wurzeln und stetig wachsender Beliebtheit. Einkaufsmöglichkeiten für den täglichen Bedarf sowie für den gehobenen Bedarf – in der City-Galerie - und alle kulturellen Annehmlichkeiten des Stadtzentrums wie das Apollo Theater oder die Siegerlandhalle, befinden sich in direktem Umfeld. Gleiches gilt für ein breitgefächertes gastronomisches Angebot für jeden Geschmack. Diverse Schultypen wie Grundschule, Gesamtschule, Waldorfschule und Gymnasium sind in wenigen Minuten erreichbar, ein vergleichbarer Zeitaufwand gilt für die Universität Siegen mit dem Campus Unteres Schloss. Der Campus Haardter Berg erfordert einen Anfahrweg von rund 10-15 Minuten. Die Autobahnen A 45 und A 4 sind über die B54N (HTS) schnell erreichbar, was eine gute und direkte Anbindung an Städte wie Köln, Dortmund und auch Frankfurt bedeutet.
Grundriss
Erdgeschoss
>
>
Obergeschoss
>
>
Dachgeschoss
>
>
Kellergeschoss
>
>
Adresse
57072 Siegen
Interessante Orte
Preis- und Lageinformationen
Preistrend für Bestandsimmobilien in Siegen