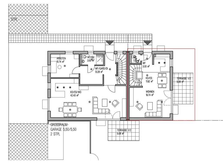
Willkommen in Ihrem stilvollen Zuhause mit traumhaftem Bergblick! Diese moderne Doppelhaushälfte bietet auf ca. 102 m² Wohnfläche eine durchdachte Raumaufteilung mit drei Zimmern, einem großzügigem Bad und einer hochwertigen Ausstattung. Die südwestlich ausgerichtete Terrasse sowie der Garten laden zum Entspannen ein. Das Haus ist fertiggestellt, bezugsbereit und überzeugt mit moderner Technik wie Fußbodenheizung, Wärmepumpe und elektrischen Rollläden. Hier erwartet Sie ein Zuhause, das Komfort, Qualität und eine attraktive Lage perfekt vereint.
Bergpanorama inklusive! Moderne Doppelhaushälfte ideal für Paare
83075 Bad Feilnbach
Die vollständige Adresse der Immobilie erhalten Sie vom Anbieter.
Auf Karte anzeigen
Die vollständige Adresse der Immobilie erhalten Sie vom Anbieter.
Infos
| Etagenzahl | 3 |
|---|---|
| Wohnfläche ca. | 102 m2 |
| Nutzfläche | 153,74 m2 |
| Grundstücksfläche | 300 m2 |
| Bezugsfrei ab | Ab sofort bezugsfrei |
| Zimmer | 3 |
| Schlafzimmer | 2 |
| Badezimmer | 1 |
| Haustiere | Ja |
| Anzahl Garage/Stellplatz | 2 |
Kosten
| Kaltmiete |
1.890 € |
|---|---|
| Nebenkosten | + 180 € |
| Heizkosten | in Nebenkosten enthalten |
| Gesamtmiete | 2.070 € |
| Miete für Garage/Stellplatz | 0 € |
Weiter mieten oder doch kaufen?
Wer in Miete wohnt, überweist dem Vermieter im Laufe der Jahre hohe Summen, die sich
auch in die eigenen vier Wände investieren lassen könnten.
Bausubstanz & Energieausweis
| Baujahr | 2025 |
|---|---|
| Objektzustand | Erstbezug |
| Qualität der Austattung | Gehoben |
| Heizungsart | Fußbodenheizung |
| Wesentliche Energieträger | Umweltwärme |
| Energieausweis | liegt vor |
| Energieausweistyp | Bedarfsausweis |
| Energieverbrauchskennwert | 14,8 kWh/(m²*a) |
| Energieeffizienzklasse | A+ |
14,8
kWh/(m²*a)
Energieeffizienzklasse A+
- A+
- A
- B
- C
- D
- E
- F
- G
- H
- 0
- 25
- 50
- 75
- 100
- 125
- 150
- 175
- 200
- 225
- >250
Beschreibung des Objekts
Ausstattung
- Hochwertige Massivbauweise – Haus fertiggestellt (2025)
- Elektrische Rollläden
- Hochwertige Ausstattung
- Fußbodenheizung EG/OG (außer Galerie) - Keller Hobbyraum
- Luftwärmepumpe für effiziente Energieversorgung
- 1 Tageslichtbad und 1 Gäste-WC
- Terrasse & Garten Südseite
- 2 Außenstellplätze inklusive
Lage
- Schöne Ortslage in Dettendorf bei Bad Feilnbach
- Unverbauter Blick auf die Alpen
- Gute ÖPNV-Anbindung & Nähe zur A8 (ca. 5 Fahrminuten)
- Rosenheim, München & Salzburg schnell erreichbar
- Einkaufsmöglichkeiten & Schulen in 10–15 Minuten
- Vielfältige Freizeitangebote: Wandern, Skifahren, Therme, Radwege
Sonstige Angaben
- Bezugsfertig – sofort verfügbar
- Provisionsfrei direkt vom Bauträger
- Hochwertige Innenausstattung
- Jetzt besichtigen & einziehen!
Adresse
83075 Bad Feilnbach
Interessante Orte
Preis- und Lageinformationen
Preistrend für Bestandsimmobilien in Bad Feilnbach